44 120 000 Р 567 100 $ или 486 200

Информация об помещении

1
Этаж

Состояние и оснащение

Количество этажей
11
Развернуть
Агент
+7 (981) 776-94-41
Начать чат с агентом

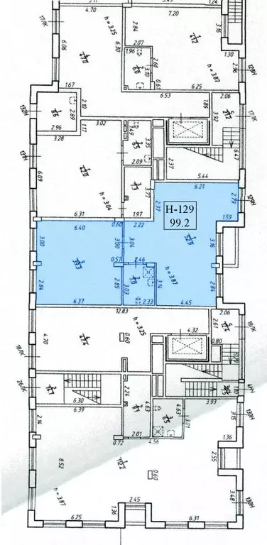
Помещение свободного назначения (99.8 м)

Помещения расположены в новом премиальном ЖК ID Park Pobedy, в престижном Московском районе Санкт-Петербурга, в 10-ти минутах ходьбы от ст. метро «Электросила продажа, 1-й этаж, 100м2, без отделки, все городские коммуникации, высота потолков: 4м, 1 входназначение: без профиля - любое коммерческое использованиепримечание: Жилой комплекс ID Park Pobedy состоит из 6-ти корпусов на пересечении Благодатной и Сызранской улиц с высоким автомобильным и пешеходным трафиком. ЖК расположен в активно развивающемся районе, что значительно увеличит плотность населения в данной локации. Пешая доступность до ближайшей ст.метро 10 минут. Во всех помещениях витринное остекление и место под вывеску, отдельный вход, высокие потолки от 3,9м, электроснабжение 0,2кВт на 1м2 Арендатор: в данный момент помещение свободноПродажа:Есть еще очень много других интересных вариантов - звоните/пишите КNRU отвечает на сообщения максимально быстро ID - 556617

Читать полностью
    Позвонить Написать
    44 120 000 Р567 100 $ или 486 200
    Агент
    +7 (981) 776-94-41
    Начать чат с агентом
    Похожие предложения
    Помещение свободного назначения в Санкт-Петербург Сызранская ул., 15Б ... - Фото 1
    Помещение свободного назначения класса бизнес 126.47 м в ЖК iD Park Pobedy с выдержанными фасадами и превосходным витражным остеклением и современной инженерией. Каждому коммерческому помещению выделена зона для стилизованной вывески. Каждое помещение...
    • 1/11 эт.
    44 264 500 Р
    Агент
    +7 (911) Показать номер
    Посмотреть контакты
    Помещение свободного назначения в Санкт-Петербург Сызранская ул., 15Б ... - Фото 1
    Помещение свободного назначения класса бизнес 99.27 м в ЖК iD Park Pobedy с выдержанными фасадами и превосходным витражным остеклением и современной инженерией. Каждому коммерческому помещению выделена зона для стилизованной вывески. Каждое помещение...
    • 1/11 эт.
    44 175 150 Р
    Агент
    +7 (911) Показать номер
    Посмотреть контакты
    Помещение свободного назначения в Санкт-Петербург ул. Коли Томчака, 3 ... - Фото 1
    Помещение свободного назначения в Санкт-Петербург ул. Коли Томчака, 3 ... - Фото 2
    ПЛАТИМ АГЕНТАМ. Поможем с планом рассадки, ремонтом, мебелью. ЖК Коллекционный Дом 1919 представляет собой коллекцию лучших и эксклюзивных практик создания премиальной жилой среды. Новая веха в архитектурных смыслах города и особых запросах клиента.Налоговая:...
    • 1/12 эт.
    43 692 000 Р
    Агент
    +7 (933) Показать номер
    Посмотреть контакты
    Помещение свободного назначения в Санкт-Петербург Легенда ... - Фото 1
    Помещение свободного назначения в Санкт-Петербург Легенда ... - Фото 2
    Помещение свободного назначения на 1 этаже, общая площадь 102.46 кв.м., высота потолков 4.05 м.Мощность подведенной линии электроснабжения 25 кВт. Стоимость помещения 43,947,, цена за кв.м 428, О проектеЛЕГЕНДА Васильевского масштабный жилой кластер...
    • 1/10 эт.
    43 947 656 Р
    Агент
    +7 (911) Показать номер
    Посмотреть контакты
    Помещение свободного назначения в Санкт-Петербург Большой ... - Фото 1
    Помещение свободного назначения в Санкт-Петербург Большой ... - Фото 2
    1701377 Эксклюзивное предложение Идeaльный вapиaнт для инвeстopов Предлагаем вашему вниманию уникальную коммерческую нeдвижимоcть в перспeктивнoм меcте с...
    • 1/9 эт.
    44 500 000 Р
    Агент
    +7 (911) Показать номер
    Посмотреть контакты

    Не нашли подходящего объявления?

    Оставьте заявку, и наши риэлторы подберут псн в районе Санкт-Петербурга

    (0)