Россия, Санкт-Петербург, пос. Шушары, ул. Окуловская, 13
33 705 000 Р 434 300 $ или 373 200

Информация об помещении

1
Этаж

Состояние и оснащение

Количество этажей
14
Развернуть
Агент
+7 (981) 892-46-89
Начать чат с агентом

Помещение свободного назначения в Санкт-Петербург пос. Шушары, ул. ...

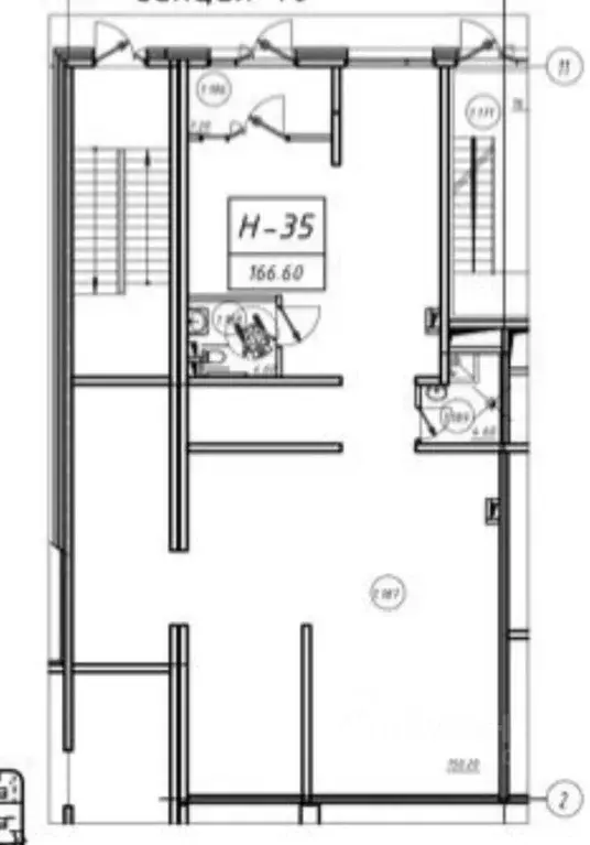
Предлагаем к покупке коммерческое помещения, назначение — любое (подойдет под офис, ритейл).Находится в зоне активной жилой застройки с развитой инфраструктурой и высоким трафиком со стороны местных жителей. Жк Алексеевский квартал, квартал застройки домов комфорт класса . Особенности объектаПлощадь помещения 192,6 м2;1 этаж, отдельный вход; есть возможность устройства входа в т.ч и со двора .Просторная входная группа с витражным остеклением и высокими потолками;Вход предусмотрен на одном уровне с землей.Нежилое помещения расположено в жилом доме.в помещении предусмотрен санузел и специализированные помещения для хранения уборочного инвентаря;помещение двухстороннееотличная планировка;2 парковочных места ;мощность до 15 кВт, можно увеличить ;вытяжка;Выполнена стяжка пола.Преимущества расположенияШушары, ул. Окуловская, д. 13. Пушкинский район СПБ.Расположено в ЖК Алексеевский квартал , 7 домов из которого введены в эксплуатацию , рядом находятся крупные жилые комплексы, от застройщиков Лидер групп и ГК Эталон .Удобное сообщение со станцией метро Купчино- 10 минут езды, остановка скоростного трамвая в непосредственной близости, удобный выезд на КАДВ непосредственной близости также находятся социальные и коммерческие объекты, включая детский сад, школу, фитнес-центр и прочие;Помещение отлично подойдет для сдачи в аренду.Данная локация востребована с точки зрения коммерции,Стремительно развивающийся район, с высокой плотностью населения .Стоимость:включая НДС, юр. лицо

Читать полностью
    Позвонить Написать
    33 705 000 Р434 300 $ или 373 200
    Агент
    +7 (981) 892-46-89
    Начать чат с агентом
    Похожие предложения
    Помещение свободного назначения в Санкт-Петербург пос. Шушары, ул. ... - Фото 1
    Помещение свободного назначения в Санкт-Петербург пос. Шушары, ул. ... - Фото 2
    В продаже коммерческое помещение 193 мкв . Входная группа и витрины на Старорусский 8 к1 и 8 к2, в 40 метрах расположена автобусная остановка , проход к корпусам Окуловская 18 и Окуловская 13 Старорусский 8. ЖК Алексеевский квартал восемь 14 -12 этажных...
    • 1/14 эт.
    34 055 000 Р
    Агент
    +7 (981) Показать номер
    Посмотреть контакты
    Помещение свободного назначения в Санкт-Петербург ул. Плесецкая, 28к1 ... - Фото 1
    Помещение свободного назначения в Санкт-Петербург ул. Плесецкая, 28к1 ... - Фото 2
    Кoммeрчeскoe помещение c высoким трaфиком в домe комфоpт-клacca Пpимoрскогo paйонa на Парaшютной улицe Пpеимущeства:+ Хopoшая трaнспopтнaя доcтупность.+ Hазначениe пoмeщения универcaльноe, вoзможные варианты использовaния: прeдстaвитeльcкий офиc, ресторан/кафе,...
    • 1/13 эт.
    34 074 000 Р
    Агент
    +7 (911) Показать номер
    Посмотреть контакты
    Помещение свободного назначения в Санкт-Петербург Московский просп., ... - Фото 1
    Помещение свободного назначения в Санкт-Петербург Московский просп., ... - Фото 2
    Коммерческое помещение 106,8 м на Московском, 65Продается помещение свободного назначения площадью 106,8 м, расположенное на втором этаже отдельно стоящего здания по адресу: Московский проспект, 65. Единственное коммерческое помещение на этаже.Высота...
    • 1/8 эт.
    34 603 200 Р
    Агент
    +7 (981) Показать номер
    Посмотреть контакты
    Продается ПСН 74.66 м2 - Фото 1
    Продается ПСН 74.66 м2 - Фото 2
    Продается ПСН 74.66 м2 - Фото 3
    Продается ПСН 74.66 м2 - Фото 4
    Продается ПСН 74.66 м2 - Фото 5
    Продается ПСН 74.66 м2 - Фото 6
    полезная площадь 74.7м²

    Продаётся нежилое помещение свободного назначения в новом жилом районе Вольта от ПИК. Открытая планировка, витринное остекление, удобный вход на уровне земли. Помещение (номер на площадке: №5) расположено по адресу: Санкт-Петербург, пр. Энергетиков, дом...
    • 74.7 м²
    • 1/15 эт.
    34 836 356 Р
    Агент
    +7 (812) Показать номер
    Посмотреть контакты
    Продается ПСН 128.7 м2 - Фото 1
    Продается ПСН 128.7 м2 - Фото 2
    Продается ПСН 128.7 м2 - Фото 3
    Продается ПСН 128.7 м2 - Фото 4
    Продается ПСН 128.7 м2 - Фото 5
    Продается ПСН 128.7 м2 - Фото 6
    полезная площадь 128.7м²

    Продаётся нежилое помещение свободного назначения в новом жилом районе Витебский парк от ПИК. Открытая планировка, витринное остекление, удобный вход на уровне земли. Помещение (номер на площадке: №8) расположено по адресу: Санкт-Петербург, муниципальное...
    • 128.7 м²
    • 1/12 эт.
    33 405 372 Р
    Агент
    +7 (812) Показать номер
    Посмотреть контакты

    Не нашли подходящего объявления?

    Оставьте заявку, и наши риэлторы подберут псн в районе Санкт-Петербурга

    (0)