Реализация объекта недвижимости приостановлена

Информация об помещении

1
Этаж

Состояние и оснащение

Количество этажей
10
Развернуть

Помещение свободного назначения в Санкт-Петербург Партизанская ул., 5 ...

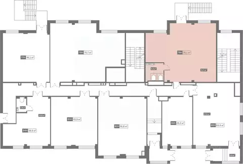
Продаётся помещение свободного назначения площадью 39.7 кв. м. в новостройке ЖК Большая Охта по адресу Санкт-Петербург, Красногвардейский, Партизанская улица, 5. Стоимость помещения — Способы оплаты и более подробная информация по телефону.

Читать полностью

    Реализация объекта недвижимости приостановлена

    Не нашли подходящего объявления?

    Оставьте заявку, и наши риэлторы подберут псн в районе Санкт-Петербурга

    (0)