46 999 999 Р 583 000 $ или 503 000

Информация об помещении

1
Этаж

Состояние и оснащение

Количество этажей
8
Развернуть
Агент
+7 (911) 965-42-76
Начать чат с агентом

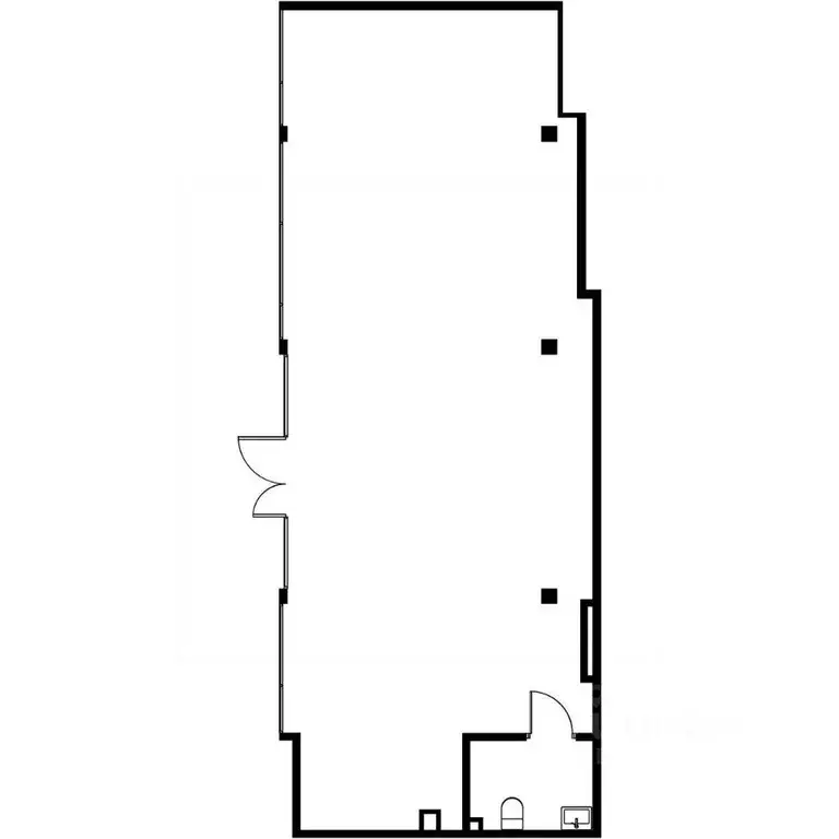
Помещение свободного назначения в Санкт-Петербург Детская ул., 18 (144 ...

Продаётся коммерческое помещение свободного назначения с отдельным входом.Выполнен дизайнерский ремонт из высококачественных материалов. высота потолков 3 метра, электрическая мощность 15 кВт. Помещён оборудовано : кухня, мебель, кондиционер.Место расположение: Васильевский Остров, ул. Детская, д.18, до ст.метро Горный институт 900 метров, до выезда на ЗСД 8 минут на машине, до аэропорта Пулково 35 минут. Налоговая: 16. Вентиляция: Приточно-вытяжная. Безопасность: Круглосуточный доступ, Система пожаротушений, Видеонаблюдение. Парковка: Наземная. Помещение подойдет под офис продаж, сферу услуг, медицинский центр и другое, коворкинг.Помещение свободно. Торг, срочная продажа

Читать полностью
    Позвонить Написать
    46 999 999 Р583 000 $ или 503 000
    Агент
    +7 (911) 965-42-76
    Начать чат с агентом
    Похожие предложения
    Помещение свободного назначения в Санкт-Петербург просп. Бакунина, 33 ... - Фото 1
    Помещение свободного назначения в Санкт-Петербург просп. Бакунина, 33 ... - Фото 2
    Продается универсальное коммерческое помещение площадью 116,6 м в клубном доме Бакунина 33 от застройщика ГК ПСК.Характеристики помещения:•площадь — 116,6 м;•отдельный вход со двора;•2 этаж клубного дома бизнес-класса;•потолки — 3 метра, позволяет создать...
    • 2/9 эт.
    46 640 000 Р
    Агент
    +7 (911) Показать номер
    Посмотреть контакты
    Помещение свободного назначения в Санкт-Петербург Литовская ул., 16 ... - Фото 1
    Помещение свободного назначения в Санкт-Петербург Литовская ул., 16 ... - Фото 2
    РАБОТАЕМ С АГЕНТАМИ. РЕНТАВИК— участник ассоциации КОКОН. На территории 3,5 га запланировано строительство технопарка общей площадью 25 313 м2, начало строительства-май 2025 года, ввод в эксплуатацию 2 квартал 2026 года. Комплекс будет включать в себя...
    • 2/3 эт.
    46 000 000 Р
    Агент
    +7 (933) Показать номер
    Посмотреть контакты
    Помещение свободного назначения в Санкт-Петербург Легенда ... - Фото 1
    Помещение свободного назначения в Санкт-Петербург Легенда ... - Фото 2
    Помещение свободного назначения на 1 этаже, общая площадь 111.23 кв.м., высота потолков 4.05 м.Мощность подведенной линии электроснабжения 30 кВт. Стоимость помещения 47,709,, цена за кв.м 428, О проектеЛЕГЕНДА Васильевского масштабный жилой кластер...
    • 1/10 эт.
    47 709 328 Р
    Агент
    +7 (911) Показать номер
    Посмотреть контакты
    Помещение свободного назначения в Санкт-Петербург Московский просп., ... - Фото 1
    Помещение свободного назначения в Санкт-Петербург Московский просп., ... - Фото 2
    МОСКО — проект уровня 4* на Московском проспекте, 115В, в Московском районе Санкт-Петербурга. Современное 10-этажное здание объединяется с объектом культурного наследия — кузовным цехом 1913 года. В исторической части разместятся бутики, ресторан, мини-маркет...
    • 2/3 эт.
    47 752 000 Р
    Агент
    +7 (939) Показать номер
    Посмотреть контакты
    Помещение свободного назначения в Санкт-Петербург Исполкомская ул., 17 ... - Фото 1
    Помещение свободного назначения в Санкт-Петербург Исполкомская ул., 17 ... - Фото 2
    Арт.Коммерческое помещение с арендатором в центре города.Локация с активной инфраструктурой и ежегодным приростом жилой недвижимости в ближайшем радиусе. Долгосрочный договор аренды.Арендатор ведет успешную деятельность более 3 лет с высоким открытым...
    • 1/9 эт.
    47 000 000 Р
    Агент
    +7 (911) Показать номер
    Посмотреть контакты

    Не нашли подходящего объявления?

    Оставьте заявку, и наши риэлторы подберут псн в районе Санкт-Петербурга

    (0)