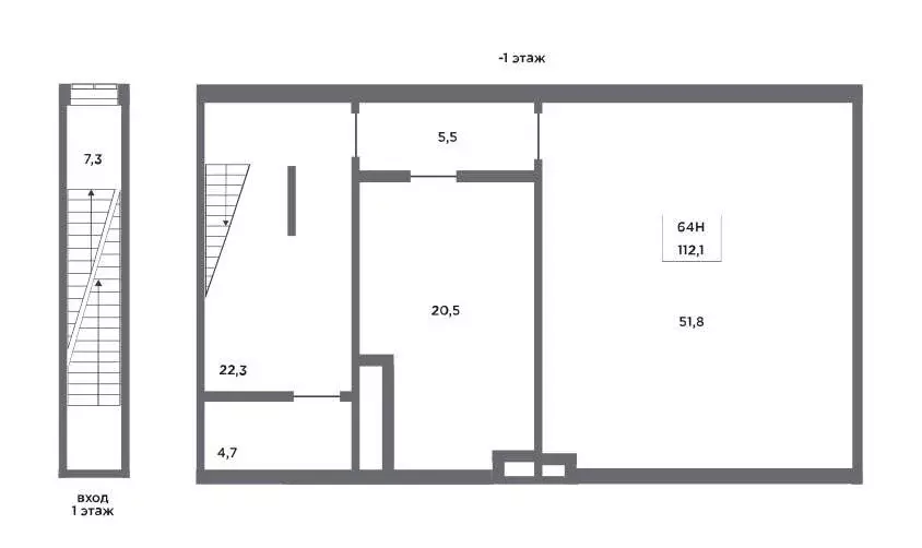
Продажа помещения коммерческого назначения в ЖК «Северная корона Адрес: Санкт-Петербург, наб. реки Карповки, д. 31Этаж: -1Общая площадь: 112,1 кв. мВысота потолков: 3 мСтоимость: (/кв.м)Условия покупки•При 100 оплате предоставляется скидка 5 .•Рассрочка на 1 год: первоначальный взнос 50 , оставшаяся сумма вносится ежеквартально равными долями. Цена при рассрочке не увеличивается.Характеристики помещения•Формат: свободная планировка.•Состояние: без отделки (возможность реализовать дизайн под индивидуальные задачи).•Проведены инженерные коммуникации: водоснабжение, отопление, канализация.•Высота потолков 3 м позволяет создать просторное и статусное пространство.Помещение подходит для организации: офисного или выставочного пространства, шоу-рума, бутика, салона красоты, развивающего или образовательного центров.Локация и трафикЖК «Северная коронаасположен в парадной части Петроградской стороны — на пересечении Каменноостровского проспекта и набережной реки Карповки. Это одно из самых престижных мест Санкт-Петербурга.•Плотная жилая застройка. Плотность локации в радиусе 20-минутной пешей доступности — около 20 тыс. жителей. •Население района: Петроградский район — 127,7 тыс. человек. В шаговой доступности расположены университеты, научные центры, престижные клиники, галереи, рестораны и офисы.•Соседние районы обеспечивают сильный трафик:•Василеостровский — 205 тыс. чел.•Приморский — 510 тыс. чел.•Центральный — 214 тыс. чел.•Адмиралтейский — 160 тыс. чел.•Выборгский — 445 тыс. чел.•Калининский — 505 тыс. чел.Совокупная численность ближайших районов превышает человек, что гарантирует высокий потенциал для бизнеса.Транспортная доступность: 5 минут до станции метро «Петроградская и 10 минут до метро «Чкаловская , удобные выезды во все районы города и СЗАД.Это предложение для тех, кто ценит престижное расположение, имиджевую архитектуру и высокий уровень окружения. Помещение в «Северной короне — это статусный актив, подчеркивающий уровень вашего бизнеса.ЗастройщикГК ПСК — один из крупнейших девелоперов Санкт-Петербурга с более чем 18-летней историей.Компания реализует проекты во всех сегментах недвижимости — от премиальных жилых комплексов до масштабных кварталов комфорт-класса и апарт-отелей.По данным портала ЕРЗ.РФ, ПСК входит в ТОП-10 крупнейших застройщиков Санкт-Петербурга по объему текущего строительства. Портфель компании насчитывает более кв. м жилой и коммерческой недвижимости. Все объекты сдаются строго в срок и отличаются высоким уровнем архитектуры и инженерных решений. (AQID
Оставьте заявку, и наши риэлторы подберут псн в районе Санкт-Петербурга