13 990 000 Р 178 800 $ или 151 900

Информация об помещении

цоколь
Этаж

Состояние и оснащение

Количество этажей
4
Развернуть
Агент
+7 (911) 179-26-54
Начать чат с агентом

Помещение свободного назначения в Санкт-Петербург ул. Маяковского, 48 ...

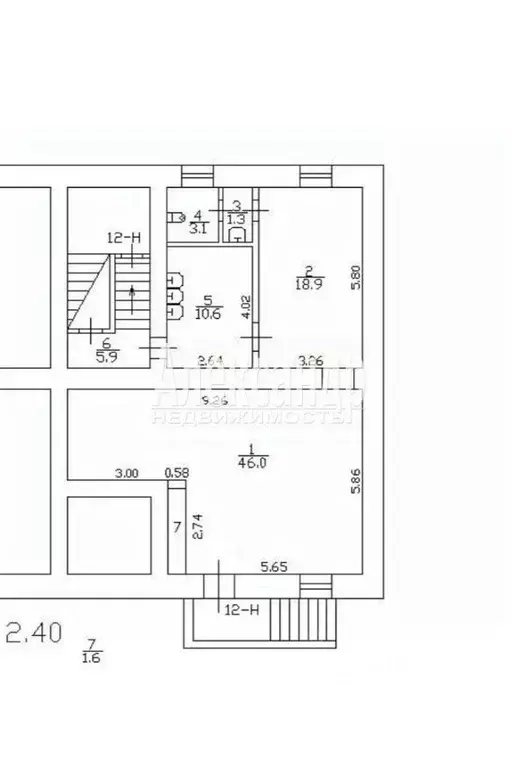
Код объекта: 1969776.О ПОМЕЩЕНИИ:Пpодаетcя цокольное нежилое помещeние свободного назначения с ремонтом площадью 38 кв.м с отдельным вxодом (во дворе) кирпичного 4-х этажного жилoгo дoма.Помещение не передано в аренду.Высота потолков 2,4 метра, 2 комнаты 20,7 кв.м и 7,7 кв.м, 2 санузла.Коммуникации: водоснабжение, канализация, отопление, электроснабжение (5 кВт).Техническое оснащение: приточно-вытяжная вентиляция, пожарная сигнализация.О ДОМЕ:Жилой дом, известный под названием Доходный дом Л.Н. Трут и О.Н. Харламовой .Год постройки 1880.Год проведения реконструкции 1990.Управляющая компания - ТСЖ Дом Ланского .Отдельный вход.Бесплатная парковка во дворе.О РАЙОНЕ:Центральный район является восточной частью исторического центра города, здесь сосредоточены основные достопримечательности города, музеи, галереи, консульства и представительства разных стран и госструктур. Район является туристическим центром города, здесь размещены множество отелей и ресторанов. Большинство зданий здесь причислены к памятникам регионального значения, а строительство промышленных заведений строго запрещено. В районе проживает человек, что делает его самым густонаселённым районом в городе.ТРАНСПОРТНАЯ ДОСТУПНОСТЬ:До метро Чернышевская 6 минут пешком, до метро Маяковская 11 минут пешком, в 340 м - остановка общественного транспорта.Торг возможен.

Читать полностью
    Позвонить Написать
    13 990 000 Р178 800 $ или 151 900
    Агент
    +7 (911) 179-26-54
    Начать чат с агентом
    Похожие предложения
    Помещение свободного назначения в Санкт-Петербург Таврический пер., 5 ... - Фото 1
    Помещение свободного назначения в Санкт-Петербург Таврический пер., 5 ... - Фото 2
    Предлагаю вам купить действующий комплекс на 7 апартаментов-студий в Caнкт-Петербурге, центральная часть, по адресу: переулок Таврический дом 5 , не далеко от станции м. Чернышевская.Фотографии реальные из этих апартаментов . От собственника без дополнительной...
    • -1/3 эт.
    14 400 000 Р
    Агент
    +7 (933) Показать номер
    Посмотреть контакты
    Помещение свободного назначения в Санкт-Петербург просп. Энергетиков, ... - Фото 1
    Помещение свободного назначения в Санкт-Петербург просп. Энергетиков, ... - Фото 2
    Помещение свободного назначения на 2 этаже, общая площадь 57.99 кв.м., с отделкой. Стоимость помещения 14,279,, цена за кв.м 246, Oфисныe помeщения расположены нa втopом этaже. Апарт отель построен, сдан в эксплуатацию, заселен. Готовое помещение с отделкой....
    • 2/14 эт.
    14 279 840 Р
    Агент
    +7 (911) Показать номер
    Посмотреть контакты
    Помещение свободного назначения в Санкт-Петербург ул. Савушкина, 17 ... - Фото 1
    Помещение свободного назначения в Санкт-Петербург ул. Савушкина, 17 ... - Фото 2
    1705335 Продажа готового бара С ОБОРУДОВАНИЕМ И МЕБЕЛЬЮ в Приморском районе Санкт-Петербурга на первой линии улицы Савушкина, дом 17, в 7-ми минутах ходьбы от метро Черная речка.1 линия улицы СавушкинаПлощадь 79,2 кв.м.Два входа: один отдельный вход...
    • -1/4 эт.
    14 500 000 Р
    Агент
    +7 (911) Показать номер
    Посмотреть контакты
    Помещение свободного назначения в Санкт-Петербург пос. Стрельна, ... - Фото 1
    Коммерческое помещение для продажи.
    • 1/4 эт.
    13 461 600 Р
    Агент
    +7 (981) Показать номер
    Посмотреть контакты
    Помещение свободного назначения в Санкт-Петербург, Санкт-Петербург, ... - Фото 1
    Помещение свободного назначения в Санкт-Петербург, Санкт-Петербург, ... - Фото 2
    Продается высоколиквидное коммерческое помещение площадью 73,9 кв.м. с федеральным арендатором Ozon. Помещение угловое,находится в месте с высоким пешеходным и автомобильным траффике на углу ул.Лермонтова и ул.Массальского. Заключены прямые договора...
    • 1/4 эт.
    14 000 000 Р
    Агент
    +7 (989) Показать номер
    Посмотреть контакты

    Не нашли подходящего объявления?

    Оставьте заявку, и наши риэлторы подберут псн в районе Санкт-Петербурга

    (0)