156 156 547 Р 2 022 900 $ или 1 705 600

Информация об помещении

1
Этаж

Состояние и оснащение

Количество этажей
27
Развернуть
Агент
+7 (933) 786-94-18
Начать чат с агентом

Помещение свободного назначения в Санкт-Петербург ул. Кустодиева, 7к1 ...

ПЛАТИМ АГЕНТАМ. Поможем с планом рассадки, ремонтом, мебелью. Жилой комплекс Байрон расположен вдоль зеленой и тихой ул. Кустодиева в Выборгском районе Санкт-Петербурга. Оригинальное архитектурное решение предполагает наличие разновысотных секций от 15 до 25 этажей, малоэтажных секций до 5-ти этажей.Налоговая: 17. Лифты: Есть. Вентиляция: . Кондиционирование: . Безопасность: Контроль доступа, Видеонаблюдение. Парковка: Наземная. Описание помещения: Блок трех помещений 174.5 м2, 177.9 м2, 150.8 м2 с панорамными окнами.Оснащены всеми необходимыми коммуникациями и системами.В каждом помещении отдельный вход и собственные санузлы.Электрическая мощность 75.79 кВт.Планировка: открытая. Под чистовую отделку. Высота потолка: 3.35м. Тип налогообложения: УСН. Лот

Читать полностью
    Позвонить Написать
    156 156 547 Р2 022 900 $ или 1 705 600
    Агент
    +7 (933) 786-94-18
    Начать чат с агентом
    Похожие предложения
    Помещение свободного назначения в Санкт-Петербург ул. Орджоникидзе, ... - Фото 1
    Помещение свободного назначения в Санкт-Петербург ул. Орджоникидзе, ... - Фото 2
    Продаётся помещение свободного назначения площадью 536.35 кв. м. в новостройке Апарт-отель Vertical Московская по адресу Санкт-Петербург, Московский, ул. Орджоникидзе, д. 44а. Окна с видом на улицу. Высота потолков 5.81 м. Отдельный вход с улицы. Стоимость...
    • 1/26 эт.
    164 123 100 Р
    Агент
    +7 (981) Показать номер
    Посмотреть контакты
    Помещение свободного назначения в Санкт-Петербург наб. Реки Каменки, ... - Фото 1
    Помещение свободного назначения в Санкт-Петербург наб. Реки Каменки, ... - Фото 2
    Продажа коммерческого помещения с действующим арендатором — магазин Магнит .Адрес: ЖК FRIENDS, г. Санкт-Петербург, Приморский район,, наб. реки Каменки, д. 1315Общая площадь: 577,5 кв. мВысота потолков: 3,14 4,57 мВходы: 4 отдельных входа с улицыКоммуникации:...
    • 1/25 эт.
    158 812 500 Р
    Агент
    +7 (911) Показать номер
    Посмотреть контакты
    Помещение свободного назначения в Санкт-Петербург Выборгское ш., 17к2 ... - Фото 1
    Помещение свободного назначения в Санкт-Петербург Выборгское ш., 17к2 ... - Фото 2
    Помещение находится в густонаселенном квартале в ЖК Озерки Тауэр , ТЦ Авеню Площадь комплекса 405,5 м. Помещение клиники 304,8м2. Помещение ресторана 100,7м2. Технический этаж площадью - 70 кв.м..Вы покупаете ВСЁ необходимое для немедленного старта:1....
    • 1/23 эт.
    160 000 000 Р
    Агент
    +7 (911) Показать номер
    Посмотреть контакты
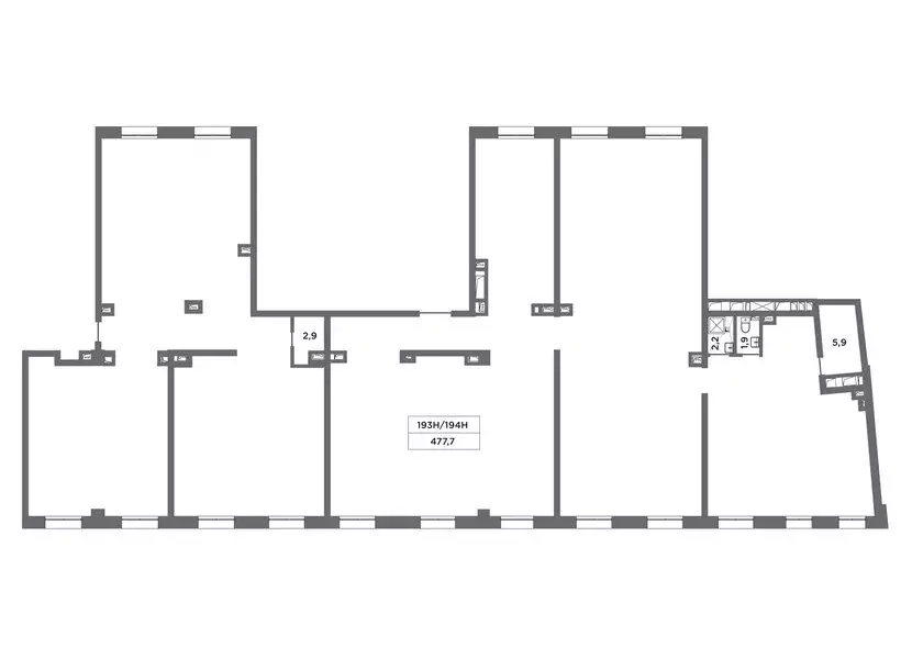
    Помещение свободного назначения (477.7 м) - Фото 1
    Помещение свободного назначения (477.7 м) - Фото 2
    Продажа помещения коммерческого назначения в ЖК «Северная корона Адрес: Санкт-Петербург, наб. реки Карповки, д. 31Этаж: 2Общая площадь: 477,7 кв. мВысота потолков: 3 мСтоимость: (/кв.м)Условия покупки•При 100 оплате предоставляется скидка 5 .•Рассрочка...
    • 2/8 эт.
    167 195 008 Р
    Агент
    +7 (812) Показать номер
    Посмотреть контакты
    Помещение свободного назначения в Санкт-Петербург просп. ... - Фото 1
    Помещение свободного назначения в Санкт-Петербург просп. ... - Фото 2
    Продаётся коммерческое помещение c сетевым арендатором Maгнит . ВАЖНО что помещение находиться внутри КАДА.ДЕЙСТВУЮЩИЙ подписанный долгосрочный договор аренды От метро Озерки и метро Парнас всего 15 минут на автомобиле, около помещения есть бесплатная...
    • 1/12 эт.
    157 000 000 Р
    Агент
    +7 (981) Показать номер
    Посмотреть контакты

    Не нашли подходящего объявления?

    Оставьте заявку, и наши риэлторы подберут псн в районе Санкт-Петербурга

    (0)