Россия, Санкт-Петербург, пос. Стрельна, просп. Буденного, 18к3
22 047 930 Р 281 800 $ или 239 400

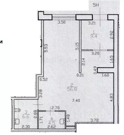
Информация об помещении

1
Этаж

Состояние и оснащение

Количество этажей
4
Развернуть
Агент
+7 (981) 886-46-96
Начать чат с агентом

Помещение свободного назначения в Санкт-Петербург пос. Стрельна, ...

Продается помещение в ЖК Дворцовый фасад коммерческое площадью 66.21 м2. Помещение расположено рядом с метро Проспект Ветеранов. Расстояние до метро 25 Мин.на транспорте. Корпус сдается в 2026. Без отделки.

Читать полностью
    Позвонить Написать
    22 047 930 Р281 800 $ или 239 400
    Агент
    +7 (981) 886-46-96
    Начать чат с агентом
    Похожие предложения
    Помещение свободного назначения в Санкт-Петербург просп. Буденного, ... - Фото 1
    Помещение свободного назначения в Санкт-Петербург просп. Буденного, ... - Фото 2
    Номер объявления: 20727 - назовите его оператору. В продаже коммерческое помещение в проходном месте Красносельский район, динамично развивающийся новый микрорайон Солнечный город, в окружении дома высокой степени готовности, готовые к передаче и заселению...
    • 1/9 эт.
    21 000 000 Р
    Агент
    +7 (911) Показать номер
    Посмотреть контакты
    Помещение свободного назначения в Санкт-Петербург пос. Стрельна, ... - Фото 1
    Коммерческое помещение для продажи.
    • 1/4 эт.
    21 045 000 Р
    Агент
    +7 (981) Показать номер
    Посмотреть контакты
    Помещение свободного назначения в Санкт-Петербург 11-я Васильевского ... - Фото 1
    Помещение свободного назначения в Санкт-Петербург 11-я Васильевского ... - Фото 2
    Очень удобное расположение коммерческого помещения. Васильевский остров, 11 линия, д. 56. Дом сдан.уютный Жилой Комплекс и сам двор.Помещение находится во дворе дома.Помещение 77,3 м2, на первом этаже, свободной планировки и свободного назначения.Центральное...
    • 1/7 эт.
    22 509 760 Р
    Агент
    +7 (911) Показать номер
    Посмотреть контакты
    Помещение свободного назначения в Санкт-Петербург наб. Миклухо-Маклая, ... - Фото 1
    Помещение свободного назначения в Санкт-Петербург наб. Миклухо-Маклая, ... - Фото 2
    Продаётся помещение свободного назначения площадью 58.22 кв. м. в новостройке ЖК Морская набережная (Бульвар+SeaView) по адресу Санкт-Петербург, Василеостровский, набережная Миклухо-Маклая, 3к1. Окна с видом во двор и на улицу. Высота потолков 4.45...
    • 1/17 эт.
    21 318 660 Р
    Агент
    +7 (911) Показать номер
    Посмотреть контакты
    Помещение свободного назначения в Санкт-Петербург наб. Миклухо-Маклая, ... - Фото 1
    Помещение свободного назначения в Санкт-Петербург наб. Миклухо-Маклая, ... - Фото 2
    Продаётся помещение свободного назначения площадью 60.32 кв. м. в новостройке ЖК Морская набережная (Бульвар+SeaView) по адресу Санкт-Петербург, Василеостровский, набережная Миклухо-Маклая, 3к1. Окна с видом во двор. Высота потолков 4.45 м. Отдельный...
    • 1/17 эт.
    21 026 610 Р
    Агент
    +7 (911) Показать номер
    Посмотреть контакты

    Не нашли подходящего объявления?

    Оставьте заявку, и наши риэлторы подберут псн в районе Санкт-Петербурга

    (0)