242 166 000 Р 3 066 900 $ или 2 662 000

Информация об помещении

2
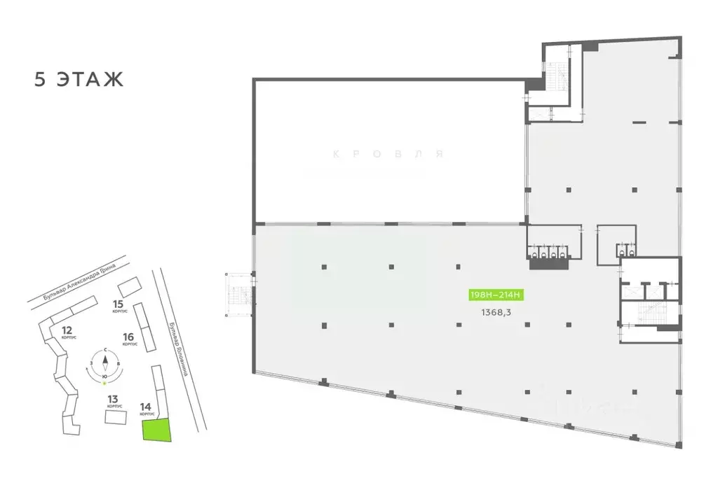
Этаж

Состояние и оснащение

Количество этажей
9
Развернуть
Агент
+7 (981) 864-95-44
Начать чат с агентом

Помещение свободного назначения (403 м)

Бизнес-центр расположен в самом сердце Петроградского района, одного из самых престижных и деловых кварталов Санкт-Петербурга. В окружении головные офисы ведущих компаний, лучшие рестораны и арт-пространства, создающие атмосферу высокого уровня жизни и работы. Описание помещения: Помещение оснащено всеми необходимыми коммуникациями и системами.Высокие потолки, панорамное остекление и отсутствие несущих стен создают ощущение простора и свободы. Отдельный вход. Этаж: 2. Планировка: открытая ( open space ). Под чистовую отделку. Высокие потолки. Высота потолка: 3.65м. Тип налогообложения: С НДС. Налоговая: 25. Лифты: Есть. Вентиляция: Приточно-вытяжная. Кондиционирование: Центральное. Безопасность: Круглосуточная охрана, Контроль доступа, Система пожаротушений, Видеонаблюдение. Провайдеры: . Парковка: Подземная, Наземная. Лот

Читать полностью
    Позвонить Написать
    242 166 000 Р3 066 900 $ или 2 662 000
    Агент
    +7 (981) 864-95-44
    Начать чат с агентом
    Похожие предложения
    Помещение свободного назначения (6525 м) - Фото 1
    Помещение свободного назначения (6525 м) - Фото 2
    ПОКАЗ В УДОБНЫЙ ДЕНЬ И ЧАС. Агентам оплатим вознаграждение за клиента. Бизнес- центр на ул. Лёни Голикова, 29касположен недалеко от метро - Проспект Ветеранов, Ленинский проспект, Автово. Хорошая транспортная доступность, близко выезды на КАД и ЗСД....
    • 1/7 эт.
    245 000 000 Р
    Агент
    +7 (983) Показать номер
    Посмотреть контакты
    Помещение свободного назначения (2600 м) - Фото 1
    Помещение свободного назначения (2600 м) - Фото 2
    Готовый арендный бизнес (ГАБ). Доходность 7 , окупаемость до 13.89 лет. Здание построено в стиле - Сталинский неоклассицизм в 1953 году. Расположено в Колпинском районе, поселок Металлострой. Сейчас в здании находится гостиница. Описание помещения: ...
    • 1/3 эт.
    250 000 000 Р
    Агент
    +7 (983) Показать номер
    Посмотреть контакты
    Помещение свободного назначения (1331 м) - Фото 1
    Помещение свободного назначения (1331 м) - Фото 2
    Историческое здание известное под названием Особняк Богомолова, построенное в стиле - Конструктивизм, архитектор - А. С. Никольский. Развитая инфраструктура района, хорошая транспортная доступность. Описание помещения: Здание имеет 1, 2 этажи и мансарда.2...
    • 1/3 эт.
    250 000 000 Р
    Агент
    +7 (983) Показать номер
    Посмотреть контакты
    Помещение свободного назначения в Санкт-Петербург бул. Головнина, 4 ... - Фото 1
    Помещение свободного назначения в Санкт-Петербург бул. Головнина, 4 ... - Фото 2
    INSIDE - бизнес-центр, расположенный на Васильевском острове в пятистах метрах от Финского залива.Общий метраж: 4 514 мОфисные помещения с 5 по 8 этажиОфисные помещения сдаются в формате Shell Core, что позволяет создать уникальное планировочное решение...
    • 5/8 эт.
    246 390 298 Р
    Агент
    +7 (911) Показать номер
    Посмотреть контакты
    Помещение свободного назначения в Санкт-Петербург бул. Головнина, 4 ... - Фото 1
    Помещение свободного назначения в Санкт-Петербург бул. Головнина, 4 ... - Фото 2
    INSIDE - бизнес-центр, расположенный на Васильевском острове в пятистах метрах от Финского залива.Общий метраж: 4 514 мОфисные помещения с 5 по 8 этажиОфисные помещения сдаются в формате Shell Core, что позволяет создать уникальное планировочное решение...
    • 6/8 эт.
    247 141 077 Р
    Агент
    +7 (911) Показать номер
    Посмотреть контакты

    Не нашли подходящего объявления?

    Оставьте заявку, и наши риэлторы подберут псн в районе Санкт-Петербурга

    (0)