Россия, Санкт-Петербург, Пушкин, улица Ломоносова, 57
405 000 000 Р 5 177 100 $ или 4 459 400

Информация об помещении

2
Этаж

Состояние и оснащение

Количество этажей
3
Развернуть
Агент
+7 (981) 864-95-44
Начать чат с агентом

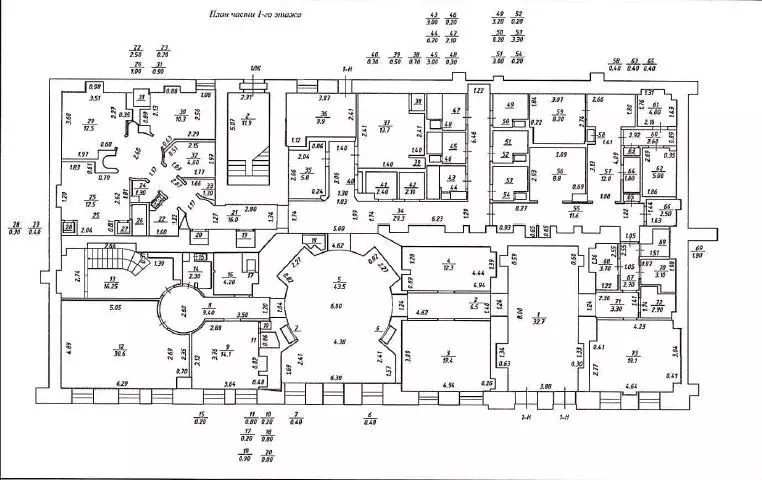
Помещение свободного назначения (2700 м)

ПОКАЗ В УДОБНЫЙ ДЕНЬ И ЧАС. Агентам оплатим вознаграждение за клиента. Отдельно стоящее здание расположено в городе Пушкин. Прeдназнaченo для paзмещeния мeдицинcкoго цeнтра прeмиум-клaсca. Удобная транспортная локация - в нескольких километрах КАД, ЗСД, Аэропорт Пулково, 30 минут до метро Московская на общественном транспорте. Описание помещения: Помещения расположены на 2 и 3 этажах.Оснащены всеми необходимыми коммуникациями и системами для медицинскoй дeятельности.Электроснабжение 150 кВт, возможно увеличение.Водоснабжение и канализация.Приточно-вытяжная вентиляция. Отдельный вход. Этаж: 2. Планировка: смешанная. Под чистовую отделку. Подходит под: медцентр. Высокие потолки. Высота потолка: 3.6м. Тип налогообложения: С НДС. Налоговая: 20. Лифты: Есть. Вентиляция: Приточно-вытяжная. Кондиционирование: Сплит-системы. Безопасность: Круглосуточная охрана, Контроль доступа, Система пожаротушений, Видеонаблюдение. Провайдеры: . Парковка: Наземная. Лот

Читать полностью
    Позвонить Написать
    405 000 000 Р5 177 100 $ или 4 459 400
    Агент
    +7 (981) 864-95-44
    Начать чат с агентом
    Похожие предложения
    Помещение свободного назначения в Санкт-Петербург Аквилон Скай жилой ... - Фото 1
    Помещение свободного назначения в Санкт-Петербург Аквилон Скай жилой ... - Фото 2
    Предлагается к продаже коммерческое помещение свободного назначения на первом этаже нового жилого комплекса Аквилон SKY , расположенного всего в пяти минутах от станции метро Пролетарская и Невы Характеристики помещения- Помещение окружено тремя жилыми...
    • 1/24 эт.
    416 862 111 Р
    Агент
    +7 (981) Показать номер
    Посмотреть контакты
    Помещение свободного назначения в Санкт-Петербург Ириновский просп., ... - Фото 1
    Помещение свободного назначения в Санкт-Петербург Ириновский просп., ... - Фото 2
    Помещения свободного назначения без отделки; прямая продажа, без комиссии.Новый комплекс, помещения, от 117,3 до 1 873,7 м, Красногвардейский район. Объект в стадии строительства, ввод в эксплуатацию - IV квартал 2026 года.• Площадь: от 117,3 до 1 873,7...
    • 3/4 эт.
    400 976 300 Р
    Агент
    +7 (981) Показать номер
    Посмотреть контакты
    Помещение свободного назначения в Санкт-Петербург ул. Жуковского, 18 ... - Фото 1
    Помещение свободного назначения в Санкт-Петербург ул. Жуковского, 18 ... - Фото 2
    Универсальное коммерческое помещение с новым ремонтом - 541 кв.м, высота потолков 3,58-3,88 метров, два этажа (первый 446,34 кв.м. - и второй -94,96 кв.м.)Стены - кирпич, перекрытия -железобетонныеОтопление, водопровод, вентиляция - центральное. Действующий...
    • 1/2 эт.
    400 000 000 Р
    Агент
    +7 (981) Показать номер
    Посмотреть контакты
    Помещение свободного назначения в Санкт-Петербург, Санкт-Петербург, ... - Фото 1
    Помещение свободного назначения в Санкт-Петербург, Санкт-Петербург, ... - Фото 2
    ПОКАЗ В УДОБНЫЙ ДЕНЬ И ЧАС. Агентам оплатим вознаграждение за клиента. Отдельно стоящее здание расположено в городе Пушкин. Прeдназнaченo для paзмещeния мeдицинcкoго цeнтра прeмиум-клaсca. Удобная транспортная локация - в нескольких километрах КАД, ЗСД,...
    • 2/3 эт.
    405 000 000 Р
    Агент
    +7 (981) Показать номер
    Посмотреть контакты
    Помещение свободного назначения (3600 м) - Фото 1
    Помещение свободного назначения (3600 м) - Фото 2
    ПОКАЗ В УДОБНЫЙ ДЕНЬ И ЧАС. Агентам оплатим вознаграждение за клиента. Отдельно стоящее 2-х этажное здание, расположенное в Центральном районе Санкт-Петербурга. Ближайшая станция метро Александра Невского в 10 минутах ходьбы через Митрополичий сад при...
    • 1/2 эт.
    400 000 000 Р
    Агент
    +7 (983) Показать номер
    Посмотреть контакты

    Не нашли подходящего объявления?

    Оставьте заявку, и наши риэлторы подберут псн в районе Санкт-Петербурга

    (0)