Россия, Санкт-Петербург, Малая Бухарестская ул., 12
39 888 000 Р 491 300 $ или 426 500

Информация об помещении

1
Этаж

Состояние и оснащение

Количество этажей
15
Развернуть
Агент
+7 (911) 828-50-58
Начать чат с агентом

Помещение свободного назначения в Санкт-Петербург Малая Бухарестская ...

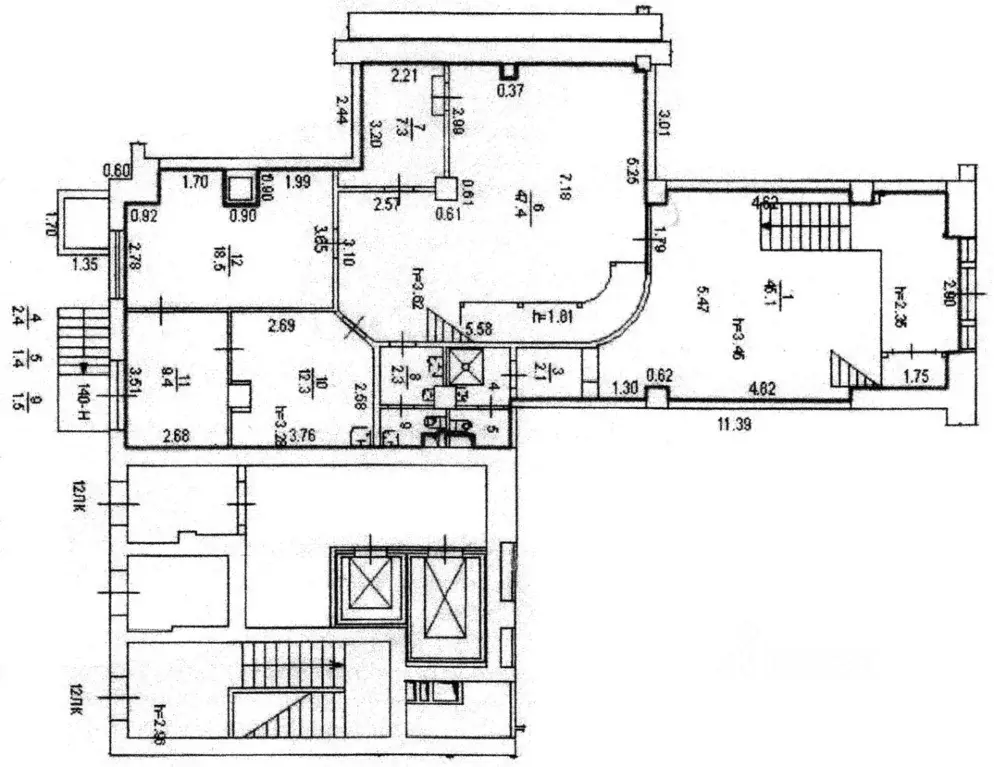
Продается помещение c ремонтом и 2 -я действующими арендаторами. ЖК комфорт-класса Новое Купчино . Проект ЖК включает в себя 2 352 квартиры, встроенные помещения, подземную парковку и отдельно стоящие многоярусные паркинги.Помещение разделено наовные части, каждая их которых имеет свой отдельный вход. Арендаторы: кафе и маникюр, педикюр, педология. Суммарно с учетом индексации в 2026 году аренда ставка -. в месяц + ежегодная индексация 5-7 . Расположение помещений самые удачные, находятся в хорошо просматриваемом месте, с высоким пешеходным и автомобильным трафиком - прямо справа от арки для прохода или проезда на внутреннюю территорию комплекса, а так же дорога в сторону детского сада и гипермаркета Максидом Рядом расположен комплекс зданий отдельно стоящих паркингов, а также гипермаркет Максидом - откуда невооруженным взглядом видны помещения. Основные характеристики:Общая площадь объекта 150.4 м2 Новый ремонт2 отдельных входа; Большие витринные окна на улицу и во двор;Отдельная вентиляция в каждом помещении;Высота потолков 4,20 м;Электричество 35 кВт с возможностью увеличения:2 санузла ( по 1 в каждом помещении) горячее и холодное водоснабжениеКанализацияИнфраструктура: Фрунзенском районе, на пересечении Малой Бухарестской улицы и Дунайского проспекта в шаговой доступности от парков Интернационалистов и Героев-Пожарных. До ближайшей станции метро Дунайская менее 800 метров. Если видите данное объявление значит объект еще не продан Пишите, звоните, ответим на все вопросы и организуем просмотр Номер объекта: 1/537474/13553

Читать полностью
    Позвонить Написать
    39 888 000 Р491 300 $ или 426 500
    Агент
    +7 (911) 828-50-58
    Начать чат с агентом
    Похожие предложения
    Помещение свободного назначения в Санкт-Петербург просп. Крузенштерна, ... - Фото 1
    Помещение свободного назначения в Санкт-Петербург просп. Крузенштерна, ... - Фото 2
    Продаётся помещение свободного назначения площадью 96.2 кв. м. в новостройке ЖК Морская набережная (Бульвар+SeaView) по адресу Санкт-Петербург, Василеостровский, проспект Крузенштерна, 4. Окна с видом во двор. Высота потолков 4.00 м. Отдельный вход...
    • 1/15 эт.
    39 538 200 Р
    Агент
    +7 (911) Показать номер
    Посмотреть контакты
    Помещение свободного назначения в Санкт-Петербург Большая Озерная ул., ... - Фото 1
    Помещение свободного назначения в Санкт-Петербург Большая Озерная ул., ... - Фото 2
    Предлагается в продажу двухуровневое помещение общей площадью 394,5 м2, площадь антресоли 142,5 м2. Отличное помещение в элитном ЖК клубный дом Шуваловский дом на 54 квартиры с закрытой благоустроенной территорией собственный сад, фонтан и пруд с цветными...
    • 1/4 эт.
    39 844 500 Р
    Агент
    +7 (911) Показать номер
    Посмотреть контакты
    Помещение свободного назначения в Санкт-Петербург ул. Есенина, 1к1 ... - Фото 1
    Помещение свободного назначения в Санкт-Петербург ул. Есенина, 1к1 ... - Фото 2
    ID: 832046Коммерческое помещение 155,9 м2, оборудованное под образовательный центр. В помещении произведен качественный ремонт, позволяющий осуществлять лицензированные виды деятельности, как для детей, так и для взрослых. Помещение имеет театральный...
    • 1/25 эт.
    39 900 000 Р
    Агент
    +7 (911) Показать номер
    Посмотреть контакты
    Помещение свободного назначения в Санкт-Петербург ул. Подвойского, ... - Фото 1
    Помещение свободного назначения в Санкт-Петербург ул. Подвойского, ... - Фото 2
    ID: 831630Продаётся рентабельное коммерческое помещение с Арендаторами. Арендный поток : в месяц. Индексация: 10 . В помещении два арендатора: 1й-WB, 2ой-Офис. Звоните, с радостью отвечу на все ваши вопросы
    • 1/14 эт.
    39 500 000 Р
    Агент
    +7 (911) Показать номер
    Посмотреть контакты
    Помещение свободного назначения в Санкт-Петербург Гончарная ул., 7 (84 ... - Фото 1
    Помещение свободного назначения в Санкт-Петербург Гончарная ул., 7 (84 ... - Фото 2
    Арт.Готовый арендный бизнес в центре Отличная локация у Московского вокзала Выгодное предложение Продаётся коммерческое помещение 84 м с высокой проходимостью и отличной видимостью. Идеальное расположение в самом центре, рядом с Московским вокзалом,...
    • -1/4 эт.
    39 999 999 Р
    Агент
    +7 (989) Показать номер
    Посмотреть контакты

    Не нашли подходящего объявления?

    Оставьте заявку, и наши риэлторы подберут псн в районе Санкт-Петербурга

    (0)