188 083 334 Р 2 344 400 $ или 2 044 700

Информация об помещении

4
Этаж

Состояние и оснащение

Количество этажей
5
Развернуть
Агент
+7 (981) 280-01-28
Начать чат с агентом

Помещение свободного назначения в Санкт-Петербург ул. Ворошилова, 5К1 ...

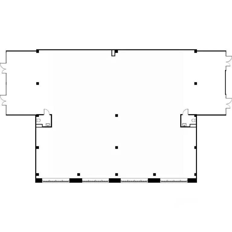
г. Санкт-Петербург, ул. Ворошилова, дом 5, литера А. Предлагаются к продаже отдельно стоящее нежилые здание. Состоит из нежилых помещений 1Н-14Н,16Н-20Н общий площадью 4 287,8 кв.м. кадастровый номер 78:12:0006319:4859, 78:12:0006319:4869, 78:12:0006319:4871, 78:12:0006319:4872, 78:12:0006319:4868, 78:12:0006319:4870, 78:12:0006319:4865, 78:12:0006319:4866, 78:12:0006319:4867 в Невском районе Санкт-Петербурга. Ближайшие станции метро Проспект Большевиков , (20 мин. пешком). В здании пять этажей, цокольный этаж, и подвал. Два лифта (пассажирские), две входные группы. В цокольном этаже организована парковка 231 кв.м. Планировка смешанная, кабинетная и open space. Санузлы на этаже. Высота потолков подвал 2,5 метра, цокольный, 1 - 5 -этажи 4,6 метра. Год постройки: 1997.Обеспечено центральным отоплением, водопроводом, канализацией, электричеством 272,6 кВт.Объекты расположены на Земельном участке площадью 2028 кв.м., кадастровый номер: 78:12:0006319:8.Земельный участок используется на основании долгосрочного договора аренды, сроком до 2047г.Рядом расположены: высотные многоквартирные жилые дома, с коммерческими помещениями на 1 этажах, промзона, парк Боевого Братства, Яблоновский сад. Предположительное использование: арендный бизнес, офисы, услуги, гостиница. Обязательное условие: обратная аренда здания, по фиксированной ставке. Срок аренды 11 (одиннадцать) месяцев, с возможностью пролонгации на срок 6 (шесть) месяцев.Продажа от собственника — ПАО Ростелеком

Читать полностью
    Позвонить Написать
    188 083 334 Р2 344 400 $ или 2 044 700
    Агент
    +7 (981) 280-01-28
    Начать чат с агентом
    Похожие предложения
    Помещение свободного назначения в Санкт-Петербург ул. Ультрамариновая, ... - Фото 1
    Продается помещение в ЖК PULSE Апарт площадью 10660 м2. Корпус сдан. Без отделки.
    • 1/5 эт.
    198 000 000 Р
    Агент
    +7 (981) Показать номер
    Посмотреть контакты
    Помещение свободного назначения в Санкт-Петербург ул. Ультрамариновая, ... - Фото 1
    Помещение свободного назначения в Санкт-Петербург ул. Ультрамариновая, ... - Фото 2
    Продажа ликвидного инвестиционного проекта - здание с земельным участком. Уникальная возможность приобрести объект с утвержденным проектом реставрации и высоким потенциалом доходности в перспективном районе.Ключевые преимущества для инвестора:Утвержденный...
    • 1/5 эт.
    200 000 000 Р
    Агент
    +7 (989) Показать номер
    Посмотреть контакты
    Помещение свободного назначения в Санкт-Петербург просп. Тореза, 77К1 ... - Фото 1
    Помещение свободного назначения в Санкт-Петербург просп. Тореза, 77К1 ... - Фото 2
    ID: 586955Продам коммерческое помещение в доме бизнес-класса ЖК Сосновка Площадь: 600 м, возможно деление на 3 помещения:- 2 помещения по 185 м - 1 помещение 230 м Часть площадей уже сдана в аренду — это готовый арендный бизнес с действующими арендаторами...
    • 1/5 эт.
    180 000 000 Р
    Агент
    +7 (981) Показать номер
    Посмотреть контакты
    Помещение свободного назначения в Санкт-Петербург Вязовая ул., 8 (195 ... - Фото 1
    Помещение свободного назначения в Санкт-Петербург Вязовая ул., 8 (195 ... - Фото 2
    Код объекта: 1978310.В продаже коммерческое помещение на 1 этаже в ЖК Привилегия . Шикарное расположение: 1 линии ул. Вязовая д 8 ,ядом с центральным входом в ЖК Привилегия . что влечет большой трафик состоятельной аудитории.Ключевые преимущества:•...
    • 1/8 эт.
    180 000 000 Р
    Агент
    +7 (981) Показать номер
    Посмотреть контакты
    Помещение свободного назначения в Санкт-Петербург Московский просп., ... - Фото 1
    МОСКО — проект уровня 4* на Московском проспекте, 115В, в Московском районе Санкт-Петербурга. Современное 10-этажное здание объединяется с объектом культурного наследия — кузовным цехом 1913 года. В исторической части разместятся бутики, ресторан, мини-маркет...
    • 2/3 эт.
    181 358 000 Р
    Агент
    +7 (939) Показать номер
    Посмотреть контакты

    Не нашли подходящего объявления?

    Оставьте заявку, и наши риэлторы подберут псн в районе Санкт-Петербурга

    (0)