Реализация объекта недвижимости приостановлена

Информация об помещении

1
Этаж

Состояние и оснащение

Количество этажей
5
Развернуть

Помещение свободного назначения в Санкт-Петербург Яковлевский пер., 10 ...

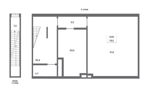
Предлагается к продаже помещение в Московском районе у Парка Победы, на Яковлевском пер. 10.Жилой дом 1938 года постройки, стиль Сталинский неоклассицизм , смешанные перекрытия.Помещение имеет отделный вход, расположено в торце жилого дома, 5 окон выходят на три стороны. Нежилой фонд, общая площадь 95 кв.м, высота потолка 3.18 м, Электричество 15 кВт., две мокрые точки.Универсальное помещение отлично подойдет под: продуктовый магазин, салон красоты, офис и другие цели.Рядом с помещением имеется много бесплатных парковочный мест.Помещение в собственности физического лица, отсутствуют ограничения и обременения. Готовы к быстрой сделке.

Читать полностью

    Реализация объекта недвижимости приостановлена

    Не нашли подходящего объявления?

    Оставьте заявку, и наши риэлторы подберут псн в районе Санкт-Петербурга

    (0)