Реализация объекта недвижимости приостановлена

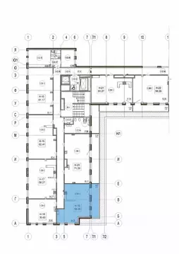
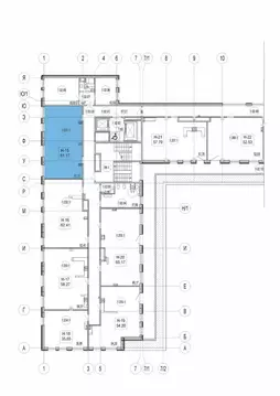
Информация об помещении

1
Этаж

Состояние и оснащение

Количество этажей
12
Развернуть

Помещение свободного назначения в Санкт-Петербург просп. Энгельса, 27Т ...

Помещение свободного назначения класса бизнес 50.45 м в ЖК iD Svetlanovskiy с выдержанными фасадами и превосходным витражным остеклением и современной инженерией. Каждому коммерческому помещению выделена зона для стилизованной вывески. Каждое помещение оборудовано индивидуальным вентиляционным каналом. Высота потолков 4,5 метра. Выделенная мощность 0,2 КВт на 1 метр квадратный.

Читать полностью

    Реализация объекта недвижимости приостановлена

    Не нашли подходящего объявления?

    Оставьте заявку, и наши риэлторы подберут псн в районе Санкт-Петербурга

    (0)