25 900 000 Р 331 200 $ или 285 300

Информация об помещении

1
Этаж

Состояние и оснащение

Количество этажей
5
Развернуть
Агент
+7 (911) 277-01-42
Начать чат с агентом

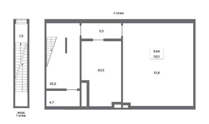
Помещение свободного назначения в Санкт-Петербург Никольский пер., 7 ...

Арт.У Никольского собора и Мариинского театра, на набережной реки Фонтанки, в окружении главных достопримечательностей северной столицы, продаётся большое коммерческое помещение на 1 этаже, общей площадью 186 м.Войти в помещение можно через 2 входа на выбор: первый с Никольского переулка, а второй — со двора.Внутри уже проведены все тяжёлые подготовительные работы: старые межкомнатные перегородки удалены, строительный мусор вывезен, полы выровнены, а стены обработаны пескоструем и готовы для дальнейшей обработки. Черновая отделка даёт возможность создать свой уникальный дизайн и интерьер.Также есть все необходимые коммуникации: электричество 50 кВт, водоснабжение и канализация (2 санузла). Украшение помещения — 14 окон по всему периметру, благодаря чему постоянно поступает естественный свет и свежий воздух. Можно легко установить кондиционеры для создания комфортной рабочей обстановки.Это помещение идеально подходит для открытия нового бизнеса или расширения существующего. Если вы ищете идеальное место для своей компании — смело обращайтесь ко мне

Читать полностью
    Позвонить Написать
    25 900 000 Р331 200 $ или 285 300
    Агент
    +7 (911) 277-01-42
    Начать чат с агентом
    Похожие предложения
    Помещение свободного назначения в Санкт-Петербург пос. Парголово, дор. ... - Фото 1
    Помещение свободного назначения в Санкт-Петербург пос. Парголово, дор. ... - Фото 2
    В продаже помещение от надежного застройщика строительной компании ЦДС.Срок сдачи объекта — 3 кв. 2025 года. В рамках 214 ФЗ, выход на прогулочную улицу.Супер перспективный проект с точки зрения коммерческой недвижимости (арендные ставки в районе варьируются...
    • 1/16 эт.
    25 397 485 Р
    Агент
    +7 (981) Показать номер
    Посмотреть контакты
    Помещение свободного назначения в Санкт-Петербург пос. Парголово, ... - Фото 1
    Помещение свободного назначения в Санкт-Петербург пос. Парголово, ... - Фото 2
    Код объекта: 2040419.Продается готовый арендный бизнес окупаемостью 3.5 года Отдельно стоящее здание (автосервис) расположено в Парголово, на выборгском шоссе. Вблизи - выезд на КАД.Здание состоит из 9 боксов, которые сданы в аренду, арендаторы снимают...
    • 1/2 эт.
    27 000 000 Р
    Агент
    +7 (981) Показать номер
    Посмотреть контакты
    Помещение свободного назначения в Санкт-Петербург Ярославский просп., ... - Фото 1
    Помещение свободного назначения в Санкт-Петербург Ярославский просп., ... - Фото 2
    Арт.Отличное коммерческое помещение Расположено на народной тропе в 4-х минутах пешком от метро УдельнаяВ настоящее время в помещении располагается парикмахерская эконом классаТак же имеется вытяжка ( свеча) Электричество 15 Ква Помещение подойдет практически...
    • 1/2 эт.
    25 500 000 Р
    Агент
    +7 (981) Показать номер
    Посмотреть контакты
    Продается ПСН 83.6 м2 - Фото 1
    Продается ПСН 83.6 м2 - Фото 2
    Продается ПСН 83.6 м2 - Фото 3
    Продается ПСН 83.6 м2 - Фото 4
    Продается ПСН 83.6 м2 - Фото 5
    Продается ПСН 83.6 м2 - Фото 6
    полезная площадь 83.6м²

    Продаётся нежилое помещение свободного назначения в новом жилом районе Витебский парк от ПИК. Открытая планировка, витринное остекление, удобный вход на уровне земли. Помещение (номер на площадке: №8) расположено по адресу: Санкт-Петербург, муниципальное...
    • 83.6 м²
    • 1/12 эт.
    25 832 400 Р
    Агент
    +7 (812) Показать номер
    Посмотреть контакты
    Помещение свободного назначения (126.9 м) - Фото 1
    Помещение свободного назначения (126.9 м) - Фото 2
    Помещения расположены в новом современном ЖК «Amber Club в престижном Василеостровском районе Санкт-Петербурга, ближайшая ст.метро «Приморская продажа, 1-й этаж, 127м2, с отделкой, все городские коммуникации, 25 кВт, высота потолков: 4.3м, 1 входназначение:...
    • 1/12 эт.
    25 132 140 Р
    Агент
    +7 (981) Показать номер
    Посмотреть контакты

    Не нашли подходящего объявления?

    Оставьте заявку, и наши риэлторы подберут псн в районе Санкт-Петербурга

    (0)