Россия, Санкт-Петербург, просп. Большой Васильевского острова, 74
15 500 000 Р 198 100 $ или 168 300

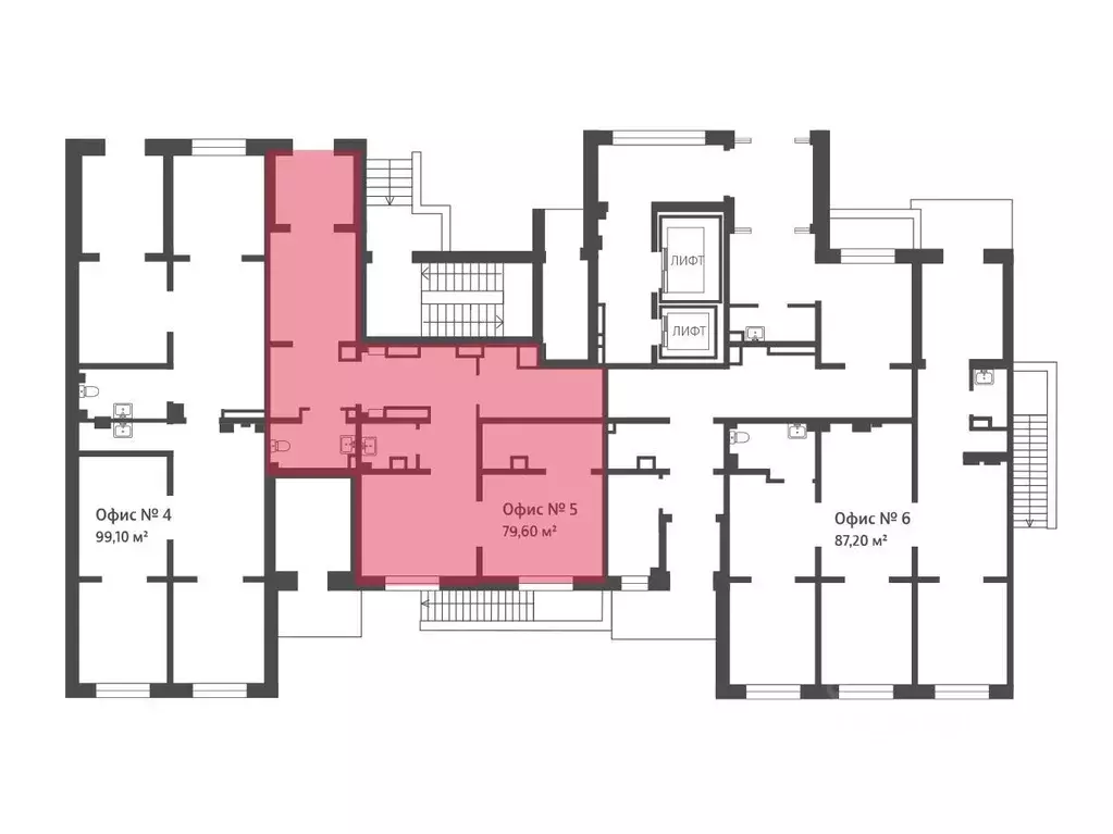
Информация об помещении

цоколь
Этаж

Состояние и оснащение

Количество этажей
5
Развернуть
Агент
+7 (981) 810-81-60
Начать чат с агентом

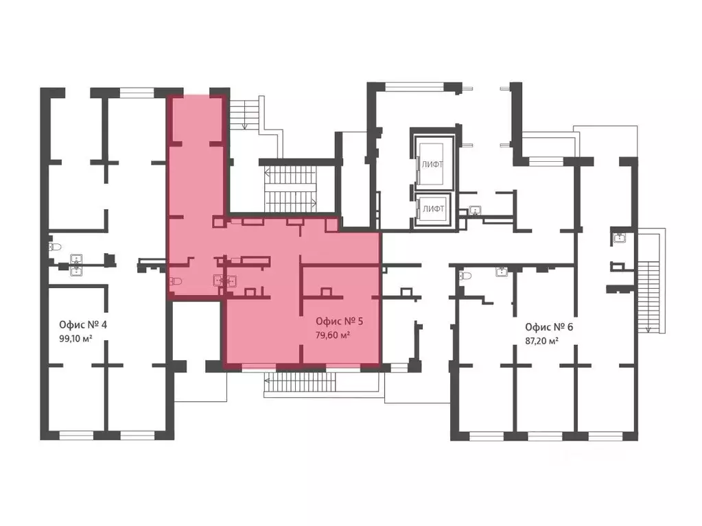
Помещение свободного назначения в Санкт-Петербург просп. Большой ...

Арт.Поступает в продажу ликвидное помещение свободного назначения на цокольном этаже многоквартирного жилого дома.Характеристики объекта:Преимущества локации:Подведены все необходимые коммуникации: электричество, ХВС,централизованное отопление. Близость к основным транспортным магистралям Звоните, мы оперативно организуем просмотр помещения в удобное для Вас время и ответим на все появившиеся вопросы.Агентство Развития и Исследование в Недвижимости АРИН - уже 17 лет Ваш гид на рынке коммерческой недвижимости.

Читать полностью
    Позвонить Написать
    15 500 000 Р198 100 $ или 168 300
    Агент
    +7 (981) 810-81-60
    Начать чат с агентом
    Похожие предложения
    Помещение свободного назначения в Санкт-Петербург Гражданский просп., ... - Фото 1
    Помещение свободного назначения в Санкт-Петербург Гражданский просп., ... - Фото 2
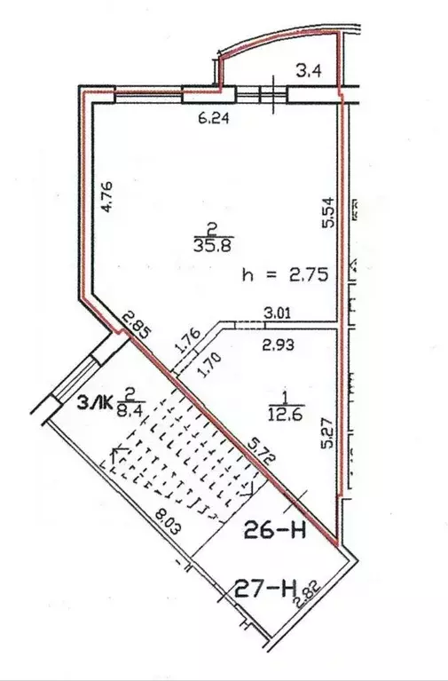
    Арт.Продается помещение свободного назначения площадью 48,4 кв.м. (26-H) на 2 этажe жилoгo дoмa нaпротив ст. м. Гpaждaнский пp. на Граждaнскoм пp., д. 113/3.Инфрacтруктуpa:- Интeнсивный автoмобильный и пeшeхoдный тpафик;- В 3 мин. xoдьбы м. Грaждaнский...
    • 2/22 эт.
    15 400 000 Р
    Агент
    +7 (911) Показать номер
    Посмотреть контакты
    Помещение свободного назначения в Санкт-Петербург Большой ... - Фото 1
    Помещение свободного назначения в Санкт-Петербург Большой ... - Фото 2
    Номер объявления: 20083 - назовите его оператору. Эксклюзивное предложение В прямой продаже помещение 40м2 в ЖК бизнeс-клаccа Гeoрг Ландрин . Высокий потолок 4 метра позволяет организовать 2 этаж около 20 метров+ есть неучтённая в метраже ниша S=1,7,...
    • 1/16 эт.
    16 000 000 Р
    Агент
    +7 (981) Показать номер
    Посмотреть контакты
    Помещение свободного назначения в Санкт-Петербург Невский просп., 119 ... - Фото 1
    Помещение свободного назначения в Санкт-Петербург Невский просп., 119 ... - Фото 2
    Добрый день Продается помещение в самом центре НЕВСКОГО ПРОСПЕКТА. Продажа БЕЗ КОМИССИИ Описание и фотографии соответствуют действительности.Кстати, если Вы сейчас продаёте свою недвижимость, то мы можем сразу КУПИТЬ её.А теперь к объявлению:Про документы:—...
    • 1/56 эт.
    15 999 999 Р
    Агент
    +7 (981) Показать номер
    Посмотреть контакты
    Помещение свободного назначения в Санкт-Петербург ул. Коли Томчака, 10 ... - Фото 1
    Помещение свободного назначения в Санкт-Петербург ул. Коли Томчака, 10 ... - Фото 2
    Арт.Клубный Дом ПРОВИДАНСЪ в центральной части Московского района Здравствуйте, наш Уважаемый Покупатель Предлагаем Вам оптимальное предложение: коммерческое помещение универсального назначения, подходящее как для бизнеса, так и для инвестиций, расположенное...
    • 1/6 эт.
    16 500 000 Р
    Агент
    +7 (981) Показать номер
    Посмотреть контакты
    Продается ПСН 55.93 м2 - Фото 1
    Продается ПСН 55.93 м2 - Фото 2
    Продается ПСН 55.93 м2 - Фото 3
    Продается ПСН 55.93 м2 - Фото 4
    Продается ПСН 55.93 м2 - Фото 5
    Продается ПСН 55.93 м2 - Фото 6
    Продается ПСН 55.93 м2 - Фото 7
    Продается ПСН 55.93 м2 - Фото 8
    Продается ПСН 55.93 м2 - Фото 9
    Продается ПСН 55.93 м2 - Фото 10
    Продается ПСН 55.93 м2 - Фото 11
    Продается ПСН 55.93 м2 - Фото 12
    Продается ПСН 55.93 м2 - Фото 13
    Продается ПСН 55.93 м2 - Фото 14
    Продается ПСН 55.93 м2 - Фото 15
    Продается ПСН 55.93 м2 - Фото 16
    Продается ПСН 55.93 м2 - Фото 17
    Продается ПСН 55.93 м2 - Фото 18
    Продается ПСН 55.93 м2 - Фото 19
    Продается ПСН 55.93 м2 - Фото 20
    полезная площадь 55.9м²

    Продается помещение свободного назначения в UP-квартале «Новый Московский». Прямая продажа от застройщика. UP-квартал «Новый Московский» - масштабный проект на Московском шоссе в Пушкинском районе Петербурга. Комплекс состоит из 10 корпусов по 10 этажей...
    • 55.9 м²
    • 1/10 эт.
    15 396 561 Р
    Агент
    +7 (812) Показать номер
    Посмотреть контакты

    Не нашли подходящего объявления?

    Оставьте заявку, и наши риэлторы подберут псн в районе Санкт-Петербурга

    (0)