Реализация объекта недвижимости приостановлена

Информация об помещении

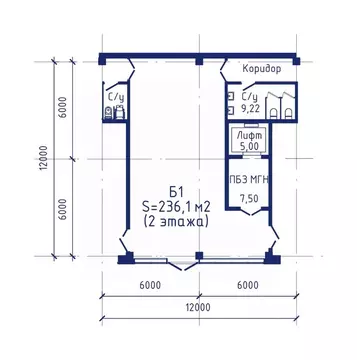
1
Этаж

Состояние и оснащение

Количество этажей
6
Развернуть

Помещение свободного назначения в Санкт-Петербург Большая Морская ул., ...

Продаем помещение с действующим апарт-отелем. Готовый бизнес работает уже несколько лет, успешно и активно. Причина продажи очень даже понятная.Помещения общей площадью 200 метров расположены на первом и втором этаже.Каждый метр был отремонтирован с душой и вкусом, и укомплектован качественной мебелью. Сохранили кирпичную кладку 19-го века.7 готовых номеров с удобствами, в каждом номере есть свой санузел и душевая. Остальное это общее пространство, ресепшн и большая кухня-гостиная.По факту, Вы приобретаете в собственность недвижимость ниже рыночной цены, в самом сердце Северной столицы, а также готовый бизнес с очень хорошей окупаемостью Здание: после капремонта с железобетонными перекрытиями, все коммуникации обновлены в 2020.Идеальное расположение: до метро 200 метров, до Дворцовой 500 метров, а до Исаакия 600 метров.Подробности по телефону и на показе

Читать полностью

    Реализация объекта недвижимости приостановлена

    Не нашли подходящего объявления?

    Оставьте заявку, и наши риэлторы подберут псн в районе Санкт-Петербурга

    (0)