Россия, Санкт-Петербург, пос. Парголово, дор. Ольгинская, 3/20
28 182 000 Р 348 000 $ или 298 000

Информация об помещении

1
Этаж

Состояние и оснащение

Количество этажей
23
Развернуть
Агент
+7 (981) 939-73-83
Начать чат с агентом

Помещение свободного назначения в Санкт-Петербург пос. Парголово, дор. ...

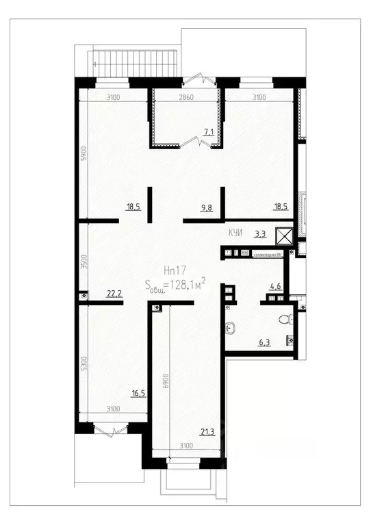
В ЖК Прагма City продается коммерческое помещение площадью 128,1 м2. Новостройка расположена в Выборгском районе С-Петербурга на ул. Заречная, д.10. Поблизости медицинские центры, школы и детские сады. Инфраструктура района продолжает активно развиваться, поэтому покупка коммерческой недвижимости в районе станет отличным вложением.Высота потолков в помещении — 3,0 метра, эл. мощность составляет 10 кВт, вход с улицы. Это коммерческое помещение свободного назначения, поэтому здесь можно организовать магазин, офис или даже небольшой склад. Помещение для бизнеса на первом этаже позволяет организовать пункт быстрого питания, кафе, ресторан, продуктовый магазин. Благодаря удобной локации и хорошей проходимости здесь можно открыть аптеку, студию детского творчества и т.д. Связь с другими районами города обеспечивает Выборгское и Суздальское шоссе. КАД расположен в пяти минутах езды на авто. Район является экологически благоприятным и строительство промышленных объектов здесь не предусмотрено.

Читать полностью
    Позвонить Написать
    28 182 000 Р348 000 $ или 298 000
    Агент
    +7 (981) 939-73-83
    Начать чат с агентом
    Похожие предложения
    Помещение свободного назначения в Санкт-Петербург пос. Парголово, дор. ... - Фото 1
    Помещение свободного назначения в Санкт-Петербург пос. Парголово, дор. ... - Фото 2
    В новостройке Прагма City продается коммерческое помещение площадью 128,3 м2. Высота потолков — 3,0 метра, эл. мощность составляет 10 кВт, вход и окна с улицы. Помещение свободного назначения в 23 этажном доме комфорт класса. Здесь можно открыть небольшую...
    • 1/23 эт.
    28 182 000 Р
    Агент
    +7 (981) Показать номер
    Посмотреть контакты
    Помещение свободного назначения в Санкт-Петербург ул. Шостаковича, 3к1 ... - Фото 1
    Помещение свободного назначения в Санкт-Петербург ул. Шостаковича, 3к1 ... - Фото 2
    Готовый арендный бизнес (ГАБ). Доходность 7 , окупаемость до 13.49 лет. Кирпично-монолитный разновысотный жилой дом. Композиционно имеет Т-образную конфигурацию. Отличная транспортная и пешеходная доступность, развитая инфраструктура района. Рядом находится...
    • 1/20 эт.
    28 000 000 Р
    Агент
    +7 (981) Показать номер
    Посмотреть контакты
    Помещение свободного назначения в Санкт-Петербург ул. Шостаковича, 3к1 ... - Фото 1
    Помещение свободного назначения в Санкт-Петербург ул. Шостаковича, 3к1 ... - Фото 2
    Готовый арендный бизнес (ГАБ). Доходность 7 , окупаемость до 13.49 лет. Кирпично-монолитный разновысотный жилой дом. Композиционно имеет Т-образную конфигурацию. Отличная транспортная и пешеходная доступность, развитая инфраструктура района. Рядом находится...
    • 1/20 эт.
    28 000 000 Р
    Агент
    +7 (981) Показать номер
    Посмотреть контакты
    Помещение свободного назначения в Санкт-Петербург Октябрьская наб., ... - Фото 1
    Помещение свободного назначения в Санкт-Петербург Октябрьская наб., ... - Фото 2
    Продаётся помещение свободного назначения площадью 63.4 кв. м. в новостройке ЖК Цивилизация на Неве по адресу Санкт-Петербург, Невский, Октябрьская набережная, 42Р. Окна с видом во двор и на улицу. Отдельный вход с улицы. Стоимость помещения — Способы...
    • 1/18 эт.
    28 443 093 Р
    Агент
    +7 (911) Показать номер
    Посмотреть контакты
    Помещение свободного назначения в Санкт-Петербург Колокольная ул., 3 ... - Фото 1
    Помещение свободного назначения в Санкт-Петербург Колокольная ул., 3 ... - Фото 2
    Арт.Продается самоокупаемая недвижимость свободного назначения в 5 минутах от станции метро Достоевская. Арендатор уже есть, вы сразу начнете возвращать вложенные средства.Подробности для потенциальных инвесторов:- стабильно высокая проходимость. Возле...
    • -1/6 эт.
    27 900 000 Р
    Агент
    +7 (911) Показать номер
    Посмотреть контакты

    Не нашли подходящего объявления?

    Оставьте заявку, и наши риэлторы подберут псн в районе Санкт-Петербурга

    (0)