186 827 290 Р 2 473 600 $ или 2 116 200

Информация о помещении и здании

6
Этаж
23
Этажность
Развернуть
Агент
+7 (981) 145-24-02
Начать чат с агентом

Офис в Санкт-Петербург Коломяжский просп., 19 (560 м)

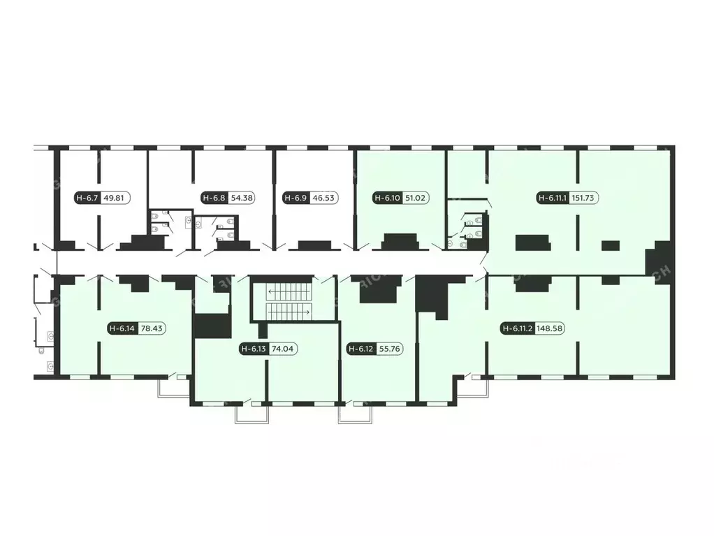
Офисное помещение 559.6 кв. м в бизнес-центре SAAN Удельный парк . Прямая продажа, без комиссии. Объект на стадии активного строительства, готовность ко въезду уточняется по запросу. Район: Приморский. Характеристики:- Класс: A; - Арендопригодная площадь: 53671.21; - Высота потолков: 3.2 м; - Наличие лифта: Есть; - Кол-во мест подземного паркинга: 202. Стоимость: Финансовые условия: - Налог: Не облагается налогом. Оформление сделки напрямую от собственника, без комиссии.Готовы оперативно организовать просмотр в удобное время, предоставить PDF-презентацию и план. Точное местоположение объекта можно найти по данным координатам: 60.006480,30.297587 ID = c_1790558

Читать полностью
    Позвонить Написать
    186 827 290 Р2 473 600 $ или 2 116 200
    Агент
    +7 (981) 145-24-02
    Начать чат с агентом
    Похожие предложения
    Офис в Санкт-Петербург Коломяжский просп., 19 (598 м) - Фото 1
    Офис в Санкт-Петербург Коломяжский просп., 19 (598 м) - Фото 2
    6-й этаж, всего 23 этажа

    Офисное помещение 597.8 кв. м в бизнес-центре SAAN Удельный парк . Прямая продажа, без комиссии. Объект на стадии активного строительства, готовность ко въезду уточняется по запросу. Район: Приморский. Характеристики:- Класс: A; - Арендопригодная площадь:...
    • 6/23 эт.
    198 659 740 Р
    Агент
    +7 (981) Показать номер
    Посмотреть контакты
    Офис в Санкт-Петербург ул. Матроса Железняка, 57 (1118 м) - Фото 1
    Офис в Санкт-Петербург ул. Матроса Железняка, 57 (1118 м) - Фото 2
    3-й этаж, всего 6 этажей

    Арт.Предлагаем к продаже офисные помещения, в многофункциональном деловом центре Гранд Капитал . Офисы общей площадью 1118.3 м.кв, расположены на 3 этаже - 536.7 м.кв. и 4 этаже - 581.6 м.кв.В данный момент офисы на 100 загружены арендаторами, возможна...
    • 3/6 эт.
    186 000 000 Р
    Агент
    +7 (981) Показать номер
    Посмотреть контакты
    Офис в Санкт-Петербург пос. Стрельна, Санкт-Петербургское ш., 82а ... - Фото 1
    1-й этаж, всего 2 этажа

    АГЕНТАМ ПЛАТИМ. РЕНТАВИК— участник ассоциации агентств КОКОН. Дом был построен вгодах и является объектом культурного наследия.Дом расположен в удобном и развитом районе с отличной инфраструктурой. В шаговой доступности расположены магазины Магнит и...
    • 1/2 эт.
    196 216 667 Р
    Агент
    +7 (933) Показать номер
    Посмотреть контакты
    Офис в Санкт-Петербург Московский просп., 65Э (465 м) - Фото 1
    Офис в Санкт-Петербург Московский просп., 65Э (465 м) - Фото 2
    7-й этаж, всего 8 этажей

    Новый бизнес-центр класса А+ рядом с метро Фрунзенская - статусный офис в центре города для вашего бизнеса Офисы с видами на историческую часть Санкт-ПетербургаОтделка - Shell Core Умная система inOFFICE - возможность управления системами безопасности...
    • 7/8 эт.
    189 829 839 Р
    Агент
    +7 (911) Показать номер
    Посмотреть контакты
    Офис в Санкт-Петербург Московский просп., 65Э (633 м) - Фото 1
    Офис в Санкт-Петербург Московский просп., 65Э (633 м) - Фото 2
    4-й этаж, всего 8 этажей

    Новый бизнес-центр класса А+ рядом с метро Фрунзенская - статусный офис в центре города для вашего бизнеса Офисы с видами на историческую часть Санкт-ПетербургаОтделка - Shell Core Умная система inOFFICE - возможность управления системами безопасности...
    • 4/8 эт.
    197 192 653 Р
    Агент
    +7 (911) Показать номер
    Посмотреть контакты

    Не нашли подходящего объявления?

    Оставьте заявку, и наши риэлторы подберут офис в районе Санкт-Петербурга

    (0)