343 530 900 Р 4 566 100 $ или 3 871 600

Информация о помещении и здании

2
Этаж
3
Этажность
Развернуть
Агент
+7 (911) 918-35-37
Начать чат с агентом

Офис в Санкт-Петербург Московский просп., 114 (898 м)

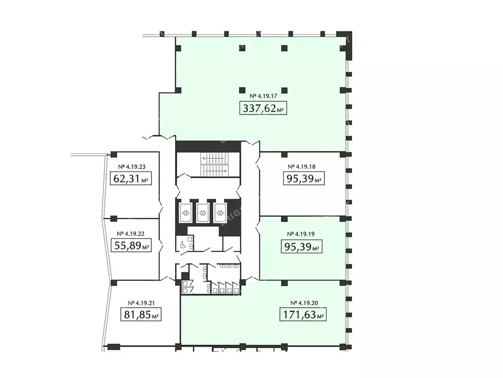
Предлагаем большой офис на 2 этаже в премиальном бизнес-парке у Московских ворот АКЦИЯ: до конца апреля отделка Whitebox в подарок. Звоните и бронируйте ЛОТ 2.1: - общая площадь 898 м2- свободная планировка, широкие возможности для зонирования пространства- высота потолка 5 м. - вид на 3 стороны: Триумфальные Московские ворота, Лиговский пр. и на благоустроенный двор- в историческом здании премиальный бизнес-центр с современными технологиями: инженерия, безопасность, автоматизация, сервисы. - уютное лаунж-лобби с баром - ресторан, банк, кофейня, помещения сферы услуг и другая инфраструктура на 1-м этаже- собственная охраняемая парковка на территории- свободная планировка- высота потолка 5 м. - шаговая доступность от м. Московские ворота- вид из окон на 3 стороны, в том числе на Триумфальные Московские ворота и на Московский проспект- в историческом здании премиальный бизнес-центр с современными технологиями: инженерия, безопасность, автоматизация, сервисы. - уютное лаунж-лобби с баром - ресторан, банк, кофейня, помещения сферы услуг и другая инфраструктура на 1-м этаже- собственная охраняемая парковка на территорииПомещение подойдет под офис IT-компании, банка, консалтинговой или юридической компании, представительство крупного промышленного предприятия, коворкинг и т.д. Параметры доходности: - средняя прогнозируемая ставка аренды. /м2- годовая доходность: 11,5 - окупаемость: 8,6 летКапитализация: - Прогноз стоимости м2 на конец 2027 г: 470 000-. /м2- ROI до 27 за период стройки (за 2 года) от текущих ценЦена указана при 100 оплате. Возможна рассрочка.

Читать полностью
    Позвонить Написать
    343 530 900 Р4 566 100 $ или 3 871 600
    Агент
    +7 (911) 918-35-37
    Начать чат с агентом
    Похожие предложения
    Офис в Санкт-Петербург Левашовский просп., 13И (605 м) - Фото 1
    Офис в Санкт-Петербург Левашовский просп., 13И (605 м) - Фото 2
    4-й этаж, всего 8 этажей

    Офисное помещение 604.6 кв. м в бизнес-центре Element. Прямая продажа, без комиссии. Объект на стадии активного строительства, готовность ко въезду уточняется по запросу. Район: Петроградский. Характеристики:- Класс: A; - Арендопригодная площадь: 29826.71;...
    • 4/8 эт.
    341 927 492 Р
    Агент
    +7 (981) Показать номер
    Посмотреть контакты
    Офис в Санкт-Петербург просп. Кима, 19 (719 м) - Фото 1
    1-й этаж, всего 2 этажа

    ОТДЕЛЬНО СТОЯЩЕЕ ЗДАНИЕ С СОБСТВЕННОЙ ПАРКОВКОЙ. ПЛАТИМ БОНУС. Здание расположено в Василеостровском районе в 15-ти минутах пешком от метро Приморская. Налоговая: 16. Лифты: Нет. Вентиляция: Приточно-вытяжная. Кондиционирование: Сплит-системы. Безопасность:...
    • 1/2 эт.
    350 000 000 Р
    Агент
    +7 (933) Показать номер
    Посмотреть контакты
    Офис в Санкт-Петербург просп. Наставников, 44 (4100 м) - Фото 1
    Офис в Санкт-Петербург просп. Наставников, 44 (4100 м) - Фото 2
    1-й этаж, всего 6 этажей

    РАБОТАЕМ С АГЕНТАМИ. РЕНТАВИК— участник ассоциации КОКОН. Бизнес центр расположен в Красногвардейском районе в 12 минутах езды на транспорте от метро Ладожская.Налоговая: 21. Лифты: Есть. Вентиляция: Приточно-вытяжная. Кондиционирование: Сплит-системы....
    • 1/6 эт.
    330 000 000 Р
    Агент
    +7 (933) Показать номер
    Посмотреть контакты
    Офис в Санкт-Петербург ул. Матроса Железняка, 2 (1496 м) - Фото 1
    Офис в Санкт-Петербург ул. Матроса Железняка, 2 (1496 м) - Фото 2
    2-й этаж, всего 13 этажей

    Коммерческое помещение с новым офисным ремонтом, в данный момент организован высококлассный офис компании-застройщика площадью 1496,1 кв.м. в здании апарт-отеля Best Western Zoom Hotel Санкт-Петербург, Приморский район, ул. Матроса Железняка, 2Второй...
    • 2/13 эт.
    330 000 000 Р
    Агент
    +7 (911) Показать номер
    Посмотреть контакты
    м Цветной Бульвар, ул Трубная, 1172 м2, Здание (ном. объекта: 8071) - Фото 1
    м Цветной Бульвар, ул Трубная, 1172 м2, Здание (ном. объекта: 8071) - Фото 2
    м Цветной Бульвар, ул Трубная, 1172 м2, Здание (ном. объекта: 8071) - Фото 3
    м Цветной Бульвар, ул Трубная, 1172 м2, Здание (ном. объекта: 8071) - Фото 4
    м Цветной Бульвар, ул Трубная, 1172 м2, Здание (ном. объекта: 8071) - Фото 5
    м Цветной Бульвар, ул Трубная, 1172 м2, Здание (ном. объекта: 8071) - Фото 6
    м Цветной Бульвар, ул Трубная, 1172 м2, Здание (ном. объекта: 8071) - Фото 7
    м Цветной Бульвар, ул Трубная, 1172 м2, Здание (ном. объекта: 8071) - Фото 8
    м Цветной Бульвар, ул Трубная, 1172 м2, Здание (ном. объекта: 8071) - Фото 9
    м Цветной Бульвар, ул Трубная, 1172 м2, Здание (ном. объекта: 8071) - Фото 10
    общая площадь офисного здания 1172м², реализуемая площадь 1172м², 4-й этаж, всего 4 этажа

    Здание 1172 масположенное в 5 минутах от станции метро Цветной Бульвар. Центральные коммуникации, кирпичные стены,жб перекрытия, 4 этажа, потолки 4 метра, 40 квт электрической мощности. Земельный участок 3.6 сотки в собственности, продается отдельно(исходя...
    • 1 172 м²
    • 4/4 эт.
    350 000 000 Р
    Агент
    +7 (968) Показать номер
    Агентство
    Телус
    Посмотреть контакты

    Не нашли подходящего объявления?

    Оставьте заявку, и наши риэлторы подберут офис в районе Санкт-Петербурга

    (0)