550 000 000 Р 6 765 400 $ или 5 886 300

Информация о помещении и здании

1
Этаж
3
Этажность
Развернуть
Агент
+7 (812) 923-01-35
Начать чат с агентом

Офис (2400 м)

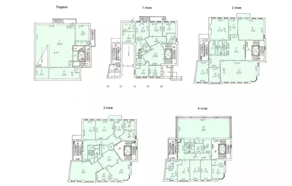
Расположение:Свердловская наб., 22, лит. АНазначение объекта:Административное зданиеОсновные характеристики объекта:Общая площадь: 2400 кв.м.Этажность: 2 этажа + мансарда + подвалПримечание: на первом этаже отреставрировано 4 зала, остальные помещения находятся под чистовую отделку.Земельный участок - 2516 м2 (в долгосрочной аренде, возможен выкуп).Технические характеристики:Объединённый хозяйственно-питьевой и противопожарный водопровод с питьевой водойГорячее водоснабжениеБытовая и ливнёвая канализацияСистема теплоснабжения и вентиляцииЭлектроснабжение мощностью 130 кВт/ч, установлены источники бесперебойного питанияПарковочные места:10 машиноместДополнительно:Объект признан памятником регионального значения.Будет передан в эксплуатацию без внутренней чистовой отделки, кроме четырёх парадных залов, которые восстановлены по историческим образцам.Транспортная доступность:Центр города, расстояние до ст. метро «Площадь Ленина : 1,9 кмНомер объекта: 5/554314/20248

Читать полностью
    Позвонить Написать
    550 000 000 Р6 765 400 $ или 5 886 300
    Агент
    +7 (812) 923-01-35
    Начать чат с агентом
    Похожие предложения
    Офис в Москва Летниковская ул., 10С2 (1800 м) - Фото 1
    Офис в Москва Летниковская ул., 10С2 (1800 м) - Фото 2
    2-й этаж, всего 9 этажей

    Бизнес-центр Святогор II класса AПлощадь: 1 800 м2Стоимость за 1 м2: 310 000,. включая НДССтоимость площади:,. включая НДССистема налогообложения: НДСГотовность: готово к въездуЭтаж: 2Планировка: коридорно-кабинетнаяНаличие с/у: , ЕстьСтатус: свободенПарковка:...
    • 2/9 эт.
    557 999 999 Р
    Агент
    +7 (911) Показать номер
    Посмотреть контакты
    Офис в Москва Доброслободская ул., 8С4 (1225 м) - Фото 1
    Офис в Москва Доброслободская ул., 8С4 (1225 м) - Фото 2
    1-й этаж, всего 4 этажа

    Офисное помещение 1 225 кв. м в бизнес-центре Доброслободская 8с4 . Прямая продажа, без комиссии.Округ: Центральный (ЦАО). Район: Басманный. Характеристики:- Класс: B+; - Арендопригодная площадь: 983.19; - Код налоговой: 01; - Высота потолков: 3 м;...
    • 1/4 эт.
    549 000 043 Р
    Агент
    +7 (915) Показать номер
    Посмотреть контакты
    Офис в Московская область, Люберцы городской округ, Томилино пгт ул. ... - Фото 1
    Офис в Московская область, Люберцы городской округ, Томилино пгт ул. ... - Фото 2
    1-й этаж, всего 5 этажей

    ХОРОШАЯ ОКУПАЕМОСТЬ Готовый арендный бизнес (ГАБ). Доходность 13 , окупаемость до 7.64 лет.Торговый центр в непосредственной близости от Егорьевское шоссе и 15 мин. пешком от ж.д. платформы Томилино. Высокий уровень автомобильного и пешеходного трафика....
    • 1/5 эт.
    550 000 000 Р
    Агент
    +7 (933) Показать номер
    Посмотреть контакты
    Офис в Москва наб. Пресненская, 6с2 (639 м) - Фото 1
    Офис в Москва наб. Пресненская, 6с2 (639 м) - Фото 2
    48-й этаж, всего 59 этажей

    Офис 639 м в бизнес-центре Башня Империя (класс A) - подходит для собственного бизнеса или сдачи в аренду.Рассчитаем доходность и поможем найти арендатора под этот объект.Ключевые параметры:Площадь: 639 м.Рабочие места: 80-142*.Планировка: открытая.Состояние:...
    • 48/59 эт.
    557 740 000 Р
    Агент
    +7 (985) Показать номер
    Посмотреть контакты
    Офис в Московская область, Химки ул. Панфилова, 21/1 (2600 м) - Фото 1
    Офис в Московская область, Химки ул. Панфилова, 21/1 (2600 м) - Фото 2
    19-й этаж, всего 22 этажа

    Офис 2 600 м в бизнес-центре Кантри Парк (класс A) - подходит для собственного бизнеса или сдачи в аренду.Рассчитаем доходность и поможем найти арендатора под этот объект.Ключевые параметры:Площадь: 2 600 м.Рабочие места: 325-577*.Планировка: смешанная.Состояние:...
    • 19/22 эт.
    553 800 000 Р
    Агент
    +7 (985) Показать номер
    Посмотреть контакты

    Не нашли подходящего объявления?

    Оставьте заявку, и наши риэлторы подберут офис в районе Санкт-Петербурга

    (0)