78 777 600 Р 970 800 $ или 843 200

Информация о помещении и здании

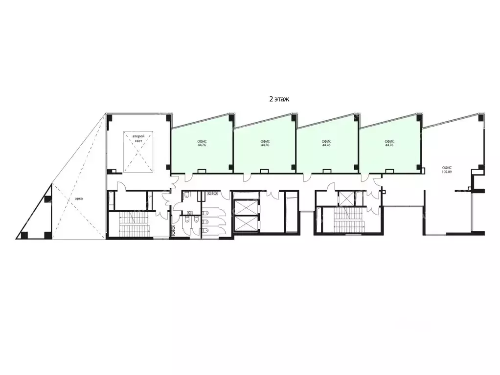
2
Этаж
12
Этажность
Развернуть
Агент
+7 (981) 145-24-02
Начать чат с агентом

Офис в Санкт-Петербург Цветочная ул., 2 (179 м)

Офисное помещение 179.0 кв. м в бизнес-центре Арт Плаза . Прямая продажа, без комиссии. Объект на стадии активного строительства, готовность ко въезду уточняется по запросу. Район: Московский. Характеристики:- Класс: B+; - Арендопригодная площадь: 872.63; - Код налоговой: 10. Стоимость: Оформление сделки напрямую от собственника, без комиссии.Готовы оперативно организовать просмотр в удобное время, предоставить PDF-презентацию и план. Точное местоположение объекта можно найти по данным координатам: 59.894364,30.330529 ID = c_1786220

Читать полностью
    Позвонить Написать
    78 777 600 Р970 800 $ или 843 200
    Агент
    +7 (981) 145-24-02
    Начать чат с агентом
    Похожие предложения
    Офис в Санкт-Петербург Миллионная ул., 12 (176 м) - Фото 1
    Офис в Санкт-Петербург Миллионная ул., 12 (176 м) - Фото 2
    1-й этаж, всего 5 этажей

    ID: 584110Продаётся просторное коммерческое помещение в историческом центре Санкт-Петербурга, известном как Золотой Треугольник. Этот район является одним из самых престижных и привлекательных для жизни и работы, здесь всегда большая проходимость интересных...
    • 1/5 эт.
    80 000 000 Р
    Агент
    +7 (981) Показать номер
    Посмотреть контакты
    Офис в Санкт-Петербург пер. Пирогова, 19 (342 м) - Фото 1
    Офис в Санкт-Петербург пер. Пирогова, 19 (342 м) - Фото 2
    1-й этаж, всего 4 этажа

    Арт.УГЛОВОЕ ПОМЕЩЕНИЕ В Адмиралтейском районе предлагается в продажу коммерческое помещение 342 м.кв.Дом после капитального ремонта. Фасады отреставрированы.В помещении выполнен качественный ремонт, пол керамогранит с подогревом, стены натуральная пробка...
    • 1/4 эт.
    80 000 000 Р
    Агент
    +7 (911) Показать номер
    Посмотреть контакты
    Офис в Санкт-Петербург Русский Дом жилой комплекс (188 м) - Фото 1
    Офис в Санкт-Петербург Русский Дом жилой комплекс (188 м) - Фото 2
    1-й этаж, всего 9 этажей

    Офисное помещение 187.7 кв. м в ЖК Русский Дом . Прямая продажа, без комиссии.Район: Центральный. Характеристики:- Класс: A; - Арендопригодная площадь: 7000; - Код налоговой: 41; - Высота потолков: 3 м; - Наличие лифта: Есть; - Кол-во мест подземного...
    • 1/9 эт.
    78 834 000 Р
    Агент
    +7 (981) Показать номер
    Посмотреть контакты
    Офис в Санкт-Петербург пер. Басков, 2 (188 м) - Фото 1
    Офис в Санкт-Петербург пер. Басков, 2 (188 м) - Фото 2
    1-й этаж, всего 9 этажей

    офис в элитном комплексе Русский дом , свободная планировка (несущие колонны) закрытый зеленый двор, доступ по домофону. Электричество 47 кВт, обособленная вентшахта. Возможна продажа от 2х машиномест в подземном паркинге по цене за каждое
    • 1/9 эт.
    79 000 000 Р
    Агент
    +7 (981) Показать номер
    Посмотреть контакты
    Продажа офиса 182.4 м2 - Фото 1
    Продажа офиса 182.4 м2 - Фото 2
    Продажа офиса 182.4 м2 - Фото 3
    Продажа офиса 182.4 м2 - Фото 4
    Продажа офиса 182.4 м2 - Фото 5
    Продажа офиса 182.4 м2 - Фото 6
    Продажа офиса 182.4 м2 - Фото 7
    Продажа офиса 182.4 м2 - Фото 8
    Продажа офиса 182.4 м2 - Фото 9
    Продажа офиса 182.4 м2 - Фото 10
    Продажа офиса 182.4 м2 - Фото 11
    Продажа офиса 182.4 м2 - Фото 12
    Продажа офиса 182.4 м2 - Фото 13
    Продажа офиса 182.4 м2 - Фото 14
    Продажа офиса 182.4 м2 - Фото 15
    Продажа офиса 182.4 м2 - Фото 16
    Продажа офиса 182.4 м2 - Фото 17
    Продажа офиса 182.4 м2 - Фото 18
    Продажа офиса 182.4 м2 - Фото 19
    реализуемая площадь 182.4м², 17-й этаж, всего 33 этажа, открытая планировка

    Гибкие условия оплаты (рассрочка, отсрочка, ипотека) . Продажа премиальных офисов в бизнес центре Авиум. Две 34-этажные башни, объединённые галереей и дочерним корпусом. Здание класса А, этаж 5 из 33, просторный современный офис под чистовую отделку,...
    • 182.4 м²
    • A
    • 17/33 эт.
    • парковка
    78 067 200 Р
    Агент
    +7 (495) Показать номер
    Посмотреть контакты

    Не нашли подходящего объявления?

    Оставьте заявку, и наши риэлторы подберут офис в районе Санкт-Петербурга

    (0)