287 053 800 Р 3 687 900 $ или 3 158 600

Информация о помещении и здании

6
Этаж
10
Этажность
Развернуть
Агент
+7 (933) 786-94-18
Начать чат с агентом

Офис в Санкт-Петербург Наличная ул., 44К1 (1227 м)

РАБОТАЕМ С АГЕНТАМИ. РЕНТАВИК— участник ассоциации КОКОН. Бизнес-центр расположен в пешей доступности от станции метро Приморская. Удобная транспортная доступность. В здании имеется подземная парковка. Развитая инфраструктура. Налоговая: 16. Лифты: Есть. Вентиляция: Приточно-вытяжная. Кондиционирование: Центральное. Безопасность: Круглосуточная охрана, Контроль доступа, Система пожаротушений, Видеонаблюдение. Парковка: Подземная. Описание помещения: Целиком этаж. Простоное помещение с панорамным остекление. Много естественного света. В местах общего пользования выполнена чистовая отделка.Планировка: открытая. Под чистовую отделку. Высокие потолки. Высота потолка: 3.5м. Тип налогообложения: С НДС. Лот

Читать полностью
    Позвонить Написать
    287 053 800 Р3 687 900 $ или 3 158 600
    Агент
    +7 (933) 786-94-18
    Начать чат с агентом
    Похожие предложения
    Офис в Санкт-Петербург Цветочная ул., 2 (654 м) - Фото 1
    Офис в Санкт-Петербург Цветочная ул., 2 (654 м) - Фото 2
    12-й этаж, всего 12 этажей

    Офисное помещение 654 кв. м в бизнес-центре Арт Плаза . Прямая продажа, без комиссии. Объект на стадии активного строительства, готовность ко въезду уточняется по запросу. Район: Московский. Характеристики:- Класс: B+; - Код налоговой: 10; - Арендопригодная...
    • 12/12 эт.
    287 760 000 Р
    Агент
    +7 (981) Показать номер
    Посмотреть контакты
    Офис в Санкт-Петербург Левашовский просп., 13И (509 м) - Фото 1
    Офис в Санкт-Петербург Левашовский просп., 13И (509 м) - Фото 2
    7-й этаж, всего 8 этажей

    Офисное помещение 509.3 кв. м в бизнес-центре Element. Прямая продажа, без комиссии. Объект на стадии активного строительства, готовность ко въезду уточняется по запросу. Район: Петроградский. Характеристики:- Класс: A; - Арендопригодная площадь: 29826.71;...
    • 7/8 эт.
    297 115 317 Р
    Агент
    +7 (981) Показать номер
    Посмотреть контакты
    Офис в Санкт-Петербург Левашовский просп., 13И (518 м) - Фото 1
    Офис в Санкт-Петербург Левашовский просп., 13И (518 м) - Фото 2
    6-й этаж, всего 8 этажей

    Офисное помещение 518.3 кв. м в бизнес-центре Element. Прямая продажа, без комиссии. Объект на стадии активного строительства, готовность ко въезду уточняется по запросу. Район: Петроградский. Характеристики:- Класс: A; - Арендопригодная площадь: 29826.71;...
    • 6/8 эт.
    297 362 238 Р
    Агент
    +7 (981) Показать номер
    Посмотреть контакты
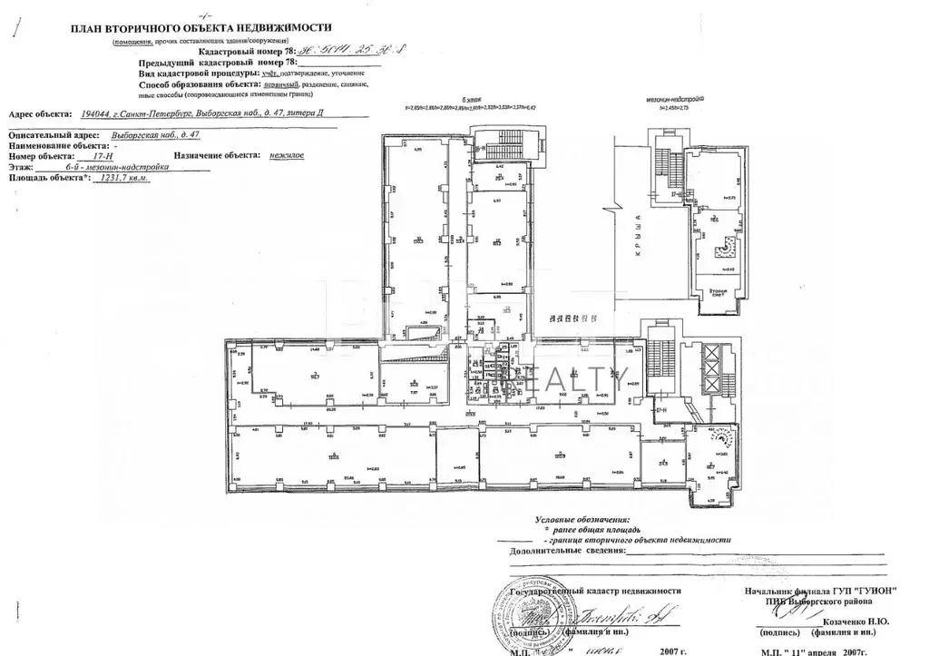
    Офис в Санкт-Петербург Выборгская наб., 47Д (1232 м) - Фото 1
    Офис в Санкт-Петербург Выборгская наб., 47Д (1232 м) - Фото 2
    6-й этаж, всего 6 этажей

    Арт.ПРЕСТИЖНЫЙ ОФИС С ПАНОРАМОЙ НА БОЛЬШУЮ НЕВКУК продаже предлагается крупный офисный блок площадью 1 231,7 кв.м в бизнес-центре класса В+ на первой линии Выборгской набережной.Это отличная возможность разместить штаб-квартиру компании в деловой части...
    • 6/6 эт.
    296 000 000 Р
    Агент
    +7 (989) Показать номер
    Посмотреть контакты
    1-й этаж, всего 3 этажа

    АДМИНИСТРАТИВНО-ПРОИЗВОДСТВЕННОЕ ЗДАНИЕ. ПЛАТИМ БОНУС. Отдельно стоящее здание расположено в Петродворцовом районе Санкт-Петербурга. Отличная транспортная и пешеходная доступность. Развитая инфраструктура локации. Здание является объектом культурного...
    • 1/3 эт.
    280 000 000 Р
    Агент
    +7 (933) Показать номер
    Посмотреть контакты

    Не нашли подходящего объявления?

    Оставьте заявку, и наши риэлторы подберут офис в районе Санкт-Петербурга

    (0)