533 800 000 Р 6 779 300 $ или 5 808 600

Информация о помещении и здании

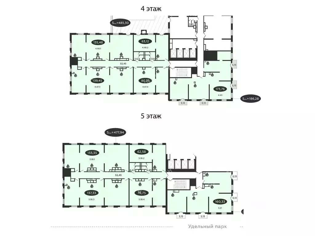
1
Этаж
5
Этажность
Развернуть
Агент
+7 (933) 786-94-18
Начать чат с агентом

Офис в Санкт-Петербург ш. Революции, 69 (3140 м)

РАБОТАЕМ С АГЕНТАМИ. ПЛАТИМ ВОЗНАГРАЖДЕНИЕ. Бизнес центр расположен в Красногвардейском районе. Удобная логистика от станции метро Ладожская - 10-15 минут на скоростном трамвае. На первом этаже расположен сетевой ресторан Lido.Налоговая: 21. Лифты: Есть. Вентиляция: Приточно-вытяжная. Кондиционирование: Центральное. Безопасность: Круглосуточная охрана, Контроль доступа, Система пожаротушений, Видеонаблюдение. Парковка: Наземная. Описание помещения: Здание 5 этажей.Фасадное остекление - металлопластиковые стеклопакеты.Потолки подвесные - тип Армстронг.Электроосвещение - встроенные и подвесные светильники.Стены - окрашенный гипрок.Планировка: смешанная. Типовой ремонт. Тип налогообложения: УСН. Кол-во парковочных мест: 210. Лот

Читать полностью
    Позвонить Написать
    533 800 000 Р6 779 300 $ или 5 808 600
    Агент
    +7 (933) 786-94-18
    Начать чат с агентом
    Похожие предложения
    Офис в Санкт-Петербург просп. Испытателей, 30к2 (2491 м) - Фото 1
    Офис в Санкт-Петербург просп. Испытателей, 30к2 (2491 м) - Фото 2
    1-й этаж, всего 4 этажа

    РАБОТАЕМ С АГЕНТАМИ. ПЛАТИМ ВОЗНАГРАЖДЕНИЕ. Бизнес-центр расположен в шаговой доступности от метро Комендантский проспект, Пионерская, Старая Деревня. в самом быстрорастущим и густонаселенном районе Санкт-Петербурга. Все городские коммуникации, выделенная...
    • 1/4 эт.
    525 434 103 Р
    Агент
    +7 (933) Показать номер
    Посмотреть контакты
    Офис в Москва наб. Пресненская, 6с2 (590 м) - Фото 1
    Офис в Москва наб. Пресненская, 6с2 (590 м) - Фото 2
    53-й этаж, всего 59 этажей

    Продаём офис в бизнес-центре Башня Империя по адресу: Москва, Пресненская набережная, 6с2. Рабочих мест: от 74 до 131*.Площадь: 590 м2.Планировка: смешанная.Состояние: готово к въезду.Цена за м2:Стоимость:Налог: УСН.Собственник: физ. лицо.Этаж: 47,...
    • 53/59 эт.
    531 000 000 Р
    Агент
    +7 (985) Показать номер
    Посмотреть контакты
    Офис в Москва наб. Пресненская, 6с2 (590 м) - Фото 1
    Офис в Москва наб. Пресненская, 6с2 (590 м) - Фото 2
    47-й этаж, всего 59 этажей

    Продаём офис в бизнес-центре Башня Империя по адресу: Москва, Пресненская набережная, 6с2. Рабочих мест: от 74 до 131*.Площадь: 590 м2.Планировка: смешанная.Состояние: готово к въезду.Цена за м2:Стоимость:Налог: УСН.Собственник: физ. лицо.Этаж: 46,...
    • 47/59 эт.
    531 000 000 Р
    Агент
    +7 (985) Показать номер
    Посмотреть контакты
    Офис в Москва наб. Пресненская, 6с2 (596 м) - Фото 1
    Офис в Москва наб. Пресненская, 6с2 (596 м) - Фото 2
    53-й этаж, всего 59 этажей

    Продаём офис в бизнес-центре Башня Империя по адресу: Москва, Пресненская набережная, 6с2. Рабочих мест: от 75 до 132*.Площадь: 596 м2.Планировка: открытая.Состояние: готово к въезду.Цена за м2:Стоимость:Налог: УСН.Собственник: физ. лицо.Этаж: 47, 48,...
    • 53/59 эт.
    536 400 000 Р
    Агент
    +7 (985) Показать номер
    Посмотреть контакты
    Офис в Москва наб. Пресненская, 6с2 (596 м) - Фото 1
    Офис в Москва наб. Пресненская, 6с2 (596 м) - Фото 2
    48-й этаж, всего 59 этажей

    Продаём офис в бизнес-центре Башня Империя по адресу: Москва, Пресненская набережная, 6с2. Рабочих мест: от 75 до 132*.Площадь: 596 м2.Планировка: открытая.Состояние: готово к въезду.Цена за м2:Стоимость:Налог: УСН.Собственник: физ. лицо.Этаж: 46, 47,...
    • 48/59 эт.
    536 400 000 Р
    Агент
    +7 (985) Показать номер
    Посмотреть контакты

    Не нашли подходящего объявления?

    Оставьте заявку, и наши риэлторы подберут офис в районе Санкт-Петербурга

    (0)