11 816 667 Р 152 200 $ или 128 400

Информация о помещении и здании

подвал
Этаж
5
Этажность
Развернуть
Агент
+7 (989) 341-85-89
Начать чат с агентом

Офис в Санкт-Петербург Московский просп., 149Г (191 м)

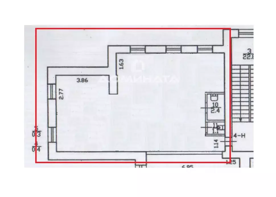
Код лота: 62C46C. Реализуется на торгах. Продается помещение в Московском районе. Адрес: г. Санкт-Петербург, Московский пр. , д. 149г. , лит. Б, пом. 2-Н. Общая площадь: 191 кв. м. Кадастровый номер: 78:14:0007618:2788. Помещение расположено в подвале, заглубление 1, 2 м (всего 5 этажей). Вход: отдельный со двора, общий со двора. Высота потолков: 2, 4 м. В помещении имеются неузаконенные перепланировки. Инженерные коммуникации: выявлены электроснабжение, отопление, водоснабжение и канализация. В помещении проходят транзитные трубы. Помещение расположено в Московском районе города вблизи крупной артерии города Московского проспекта. Парковка легковых автомобилей осуществляется на придомовой и дворовой территории. Ближайшие станции метро Электросила (890 м) и Парк Победы (1 км, станция закрыта на ремонт). Остановки общественного транспорта расположены на Московском пр. в нескольких минутах ходьбы. Помещение возможно использовать в качестве небольшой мастерской, ателье или иного назначения. https://catalog. lot-online. ru/index. php?dispatch=products. view product_id=1587686

Читать полностью
    Позвонить Написать
    11 816 667 Р152 200 $ или 128 400
    Агент
    +7 (989) 341-85-89
    Начать чат с агентом
    Похожие предложения
    Офис в Санкт-Петербург просп. Юрия Гагарина, 1 (207 м) - Фото 1
    Офис в Санкт-Петербург просп. Юрия Гагарина, 1 (207 м) - Фото 2
    2-й этаж, всего 7 этажей

    Арт.Предлагается к продаже ликвидный объект недвижимости в Московском районе.Удобная транспортная развязка, развитая инфраструктура. До метро Парк Победы и метро Электросила -15 мин пешком. Выезд на ЗСД - 10 минут. В бизнес центре есть все необходимое-...
    • 2/7 эт.
    11 000 000 Р
    Агент
    +7 (923) Показать номер
    Посмотреть контакты
    Офис в Санкт-Петербург Московский просп., 114 (28 м) - Фото 1
    Офис в Санкт-Петербург Московский просп., 114 (28 м) - Фото 2
    3-й этаж, всего 3 этажа

    В продаже офис на 3 этаже в премиальном бизнес-центре у Московских ворот - свободная планировка- высота потолка 4 м.- шаговая доступность от м. Московские ворота- вид из окон на благоустроенный двор с парковкой- в историческом здании премиальный бизнес-центр...
    • 3/3 эт.
    11 360 148 Р
    Агент
    +7 (911) Показать номер
    Посмотреть контакты
    Офис в Санкт-Петербург, Санкт-Петербург, Колпино Советский бул., 7к1 ... - Фото 1
    Офис в Санкт-Петербург, Санкт-Петербург, Колпино Советский бул., 7к1 ... - Фото 2
    2-й этаж, всего 3 этажа

    В продажу напрямую от собственника предлагается уютный офис площадью 76.4 м2, расположенный на втором этаже красивого кирпичного полностью нежилого административного здания. Помещение просторное и светлое с пятью отреставрированными арочными окнами на...
    • 2/3 эт.
    12 500 000 Р
    Агент
    +7 (981) Показать номер
    Посмотреть контакты
    Офис в Санкт-Петербург пос. Парголово, Заречная ул., 10 (62 м) - Фото 1
    Офис в Санкт-Петербург пос. Парголово, Заречная ул., 10 (62 м) - Фото 2
    2-й этаж, всего 23 этажа

    Арт.В продаже офис 62,3 м у метро Парнас заезжай и работай В 10 мин пешком от метро Парнас, по адресу: Заречная ул., д. 10, предлагается в продажу нежилое помещение площадью 62,3 кв м. Свободного назначения.Помещение располагается на 2-м этаже 23-х...
    • 2/23 эт.
    12 460 000 Р
    Агент
    +7 (911) Показать номер
    Посмотреть контакты
    Офис в Санкт-Петербург Московский просп., 115В (37 м) - Фото 1
    Офис в Санкт-Петербург Московский просп., 115В (37 м) - Фото 2
    3-й этаж, всего 11 этажей

    Коммерция в МОСКО — это ставка на постоянный спрос. Жители, офисы, сервисы и события создают устойчивый поток людей. Небольшие студии третьего этажа подойдут для ателье, дизайнеров, частных специалистов и мини-команд. Все юниты с чистовой отделкой, при...
    • 3/11 эт.
    12 636 000 Р
    Агент
    +7 (933) Показать номер
    Посмотреть контакты

    Не нашли подходящего объявления?

    Оставьте заявку, и наши риэлторы подберут офис в районе Санкт-Петербурга

    (0)