Россия, Санкт-Петербург, 3-я Васильевского острова линия, 10
14 384 746 Р 177 300 $ или 151 300

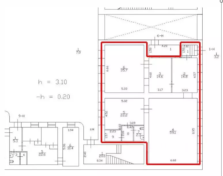
Информация о помещении и здании

цоколь
Этаж
5
Этажность
Развернуть
Агент
+7 (981) 173-53-15
Начать чат с агентом

Офис в Санкт-Петербург 3-я Васильевского острова линия, 10 (159 м)

Код лота: 62C46C. Реализуется на торгах. Продается нежилое помещение свободного назначения в Василеостровском районе Санкт-Петербурга. Помещение расположено в пятиэтажном жилом здании 1917 года постройки. Окружение объекта составляет преимущественно жилая застройка. В ближайшем окружении располагаются школы, детские сады, магазины, кафе, рестораны, аптеки. Плотность застройки высокая. Парковка на улице и внутриквартальных проездах (платная). Интенсивность транспортных и пешеходных потоков непосредственно возле объекта средняя. Транспортная доступность хорошая. Ближайшая станция метро Василеостровскаяасположена на расстоянии 700 м. Площадь: 158, 5 кв. м. Этаж: цоколь Выделенная электрическая мощность: 11кВт Помещение сдано в долгосрочную аренду ФЛ: Срок действия аренды - до 13. 08. 2027 Арендная плата состоит из базовой и переменной части. Договором аренды предусмотрено увеличение размера базовой частиаз в год на уровень инфляции. Арендатор сдал помещение в субаренду ООО Яндекс. Лавка на срок до 12. 08. 2027г. Помещение реализуется с торгов в рамках реализации непрофильных активов АО Почта России . Торги проводятся на электронной площадке Lot-Online. Просмотр помещения осуществляется в период приема заявок на участие в торгах и только в рабочее время. Заявку на организацию осмотра необходимо подавать заранее. https://catalog. lot-online. ru/index. php?dispatch=products. view product_id=1474676

Читать полностью
    Позвонить Написать
    14 384 746 Р177 300 $ или 151 300
    Агент
    +7 (981) 173-53-15
    Начать чат с агентом
    Похожие предложения
    Офис в Санкт-Петербург 13-я Васильевского острова линия, 6-8 (70 м) - Фото 1
    Офис в Санкт-Петербург 13-я Васильевского острова линия, 6-8 (70 м) - Фото 2
    6-й этаж, всего 6 этажей

    На 6-ом этаже Бизнес-центра Голицин продается офисное помещение площадью 70.1 м2 с чудесным балкончиком.Бизнес-центра Голицин расположен в центральной части Васильевского острова в 80 м от берега Невы. В пятнадцати минутах ходьбы находится станция метро...
    • 6/6 эт.
    14 700 000 Р
    Агент
    +7 (981) Показать номер
    Посмотреть контакты
    Офис в Санкт-Петербург пос. Парголово, ул. Федора Абрамова, 8 (61 м) - Фото 1
    Офис в Санкт-Петербург пос. Парголово, ул. Федора Абрамова, 8 (61 м) - Фото 2
    1-й этаж, всего 27 этажей

    Продается отличное помещение рядом с метро Современный ремонт, разумная планировка Вам понравится Помещение обладает рядом преимуществ:очень активный пешеходный трафикудобная парковка рядом с помещениемотличная транспортная доступностьдействующий арендатор...
    • 1/27 эт.
    15 000 000 Р
    Агент
    +7 (981) Показать номер
    Посмотреть контакты
    Офис в Санкт-Петербург Гороховая ул., 33 (61 м) - Фото 1
    Офис в Санкт-Петербург Гороховая ул., 33 (61 м) - Фото 2
    цокольный этаж, всего 5 этажей

    Арт.Коммерческое помещение на цокольном этаже с отдельным входом и действующим арендатором — готовый бизнес в одном из самых активных районов Санкт-Петербурга с высоким пешеходным трафиком.Общая площадь помещения составляет 61,2 м, высота потолков — 2,85...
    • -1/5 эт.
    13 708 800 Р
    Агент
    +7 (911) Показать номер
    Посмотреть контакты
    Офис в Санкт-Петербург Херсонский проезд, 6 (29 м) - Фото 1
    Офис в Санкт-Петербург Херсонский проезд, 6 (29 м) - Фото 2
    2-й этаж, всего 10 этажей

    Код объекта: 1914040. Уникальное предложение для вашего бизнеса, в продаже современный офис в Санкт-Петербурге.Офис площадью 29,3 кв. м расположен на первом этаже 10-этажного кирпично-монолитного здания по адресу: Херсонский проезд, 6. Здание построено...
    • 2/10 эт.
    14 500 000 Р
    Агент
    +7 (911) Показать номер
    Посмотреть контакты
    Офис в Санкт-Петербург ул. Даля, 10Б (32 м) - Фото 1
    Офис в Санкт-Петербург ул. Даля, 10Б (32 м) - Фото 2
    4-й этаж, всего 6 этажей

    Авеню на Карповке - многофункциональный комплекс, где сочетаются престижная локация, архитектурный стиль и широкий выбор помещений под различные форматы бизнеса: офисы, стрит-ритейл и юниты с террасами.Сдача — 1 квартал 2027 г.1 корпус — готовность февраль...
    • 4/6 эт.
    13 685 000 Р
    Агент
    +7 (911) Показать номер
    Посмотреть контакты

    Не нашли подходящего объявления?

    Оставьте заявку, и наши риэлторы подберут офис в районе Санкт-Петербурга

    (0)