Россия, Санкт-Петербург, ул. Восстановления, 19
140 584 670 Р 1 814 800 $ или 1 520 200

Информация о помещении и здании

1
Этаж
3
Этажность
Развернуть
Агент
+7 (981) 145-24-02
Начать чат с агентом

Офис в Санкт-Петербург, Санкт-Петербург, Красное Село ул. ...

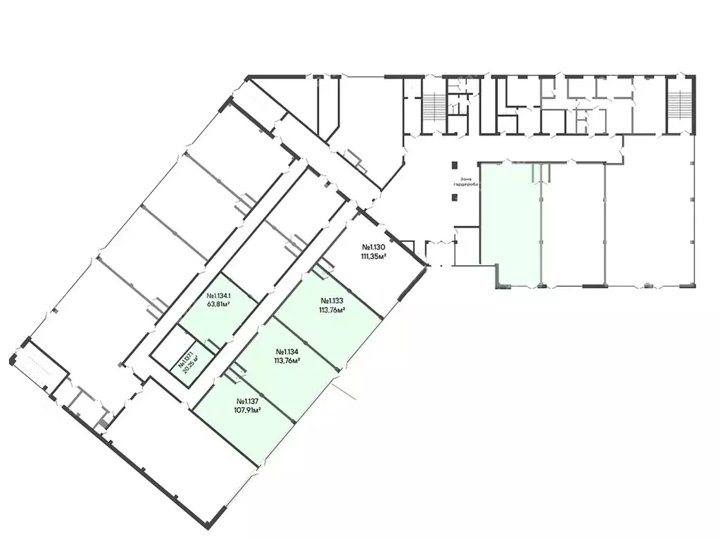
Офисное помещение 552.4 кв. м в бизнес-центре Smart Восстановления . Прямая продажа, без комиссии. Объект на стадии активного строительства, готовность ко въезду уточняется по запросу. Район: Красносельский. Характеристики:- Класс: B+; - Арендопригодная площадь: 5440; - Код налоговой: 07; - Размер типового этажа: 3200; - Высота потолков: 5 м, 7 м; - Наличие лифта: Есть. Стоимость: Финансовые условия: - Налог: УСН. Оформление сделки напрямую от собственника, без комиссии.Готовы оперативно организовать просмотр в удобное время, предоставить PDF-презентацию и план. Точное местоположение объекта можно найти по данным координатам: 59.724475,30.082497 ID = c_1779048

Читать полностью
    Позвонить Написать
    140 584 670 Р1 814 800 $ или 1 520 200
    Агент
    +7 (981) 145-24-02
    Начать чат с агентом
    Похожие предложения
    Офис в Санкт-Петербург проезд Петровская коса, 1к1 (445 м) - Фото 1
    Офис в Санкт-Петербург проезд Петровская коса, 1к1 (445 м) - Фото 2
    3-й этаж, всего 4 этажа

    Продается офисный блок 444,5 м в бизнес-центре Петровский — идеальное пространство для успешного бизнеса Преимущества:- Общая площадь 444,5 м (офисы — 369,3 м, МОП — 75,2 м)- Электрическая мощность - 25 кВт- Реконструкция 2018 г.- СКУД (Система контроля...
    • 3/4 эт.
    133 350 000 Р
    Агент
    +7 (911) Показать номер
    Посмотреть контакты
    Офис (242.99 м) - Фото 1
    Офис (242.99 м) - Фото 2
    5-й этаж, всего 8 этажей

    Офисное помещение 243.0 кв. м в бизнес-центре Element. Прямая продажа, без комиссии. Объект на стадии активного строительства, готовность ко въезду уточняется по запросу. Район: Петроградский. Характеристики:- Класс: A; - Арендопригодная площадь: 29826.71;...
    • 5/8 эт.
    148 411 392 Р
    Агент
    +7 (911) Показать номер
    Посмотреть контакты
    Офис в Санкт-Петербург наб. Обводного Канала, 118аУ (473 м) - Фото 1
    Офис в Санкт-Петербург наб. Обводного Канала, 118аУ (473 м) - Фото 2
    1-й этаж, всего 2 этажа

    Код объекта: 7576 Адмиралтейский район, наб. Обводного канала д.118 АУ Продажа помещений на первом и втором этаже Бизнес Пространства - Продается 1, 2 этаж - Общая площадь от 195 м2 - В каждом помещении отдельный вход и окно для разгрузки - Высота...
    • 1/2 эт.
    146 630 000 Р
    Агент
    +7 (911) Показать номер
    Посмотреть контакты
    Офис в Санкт-Петербург Новгородская ул., 23 (821 м) - Фото 1
    Офис в Санкт-Петербург Новгородская ул., 23 (821 м) - Фото 2
    2-й этаж, всего 3 этажа

    Офисное помещение 820.9 кв. м в бизнес-центре Базель . Прямая продажа, без комиссии.Район: Центральный. Характеристики:- Класс: B; - Арендопригодная площадь: 8112.4; - Код налоговой: 42; - Высота потолков: 3.1 м; - Наличие лифта: Есть; - Интернет-провайдеры:...
    • 2/3 эт.
    136 000 000 Р
    Агент
    +7 (981) Показать номер
    Посмотреть контакты
    Офис в Санкт-Петербург Орловская ул., 1 (289 м) - Фото 1
    Офис в Санкт-Петербург Орловская ул., 1 (289 м) - Фото 2
    8-й этаж, всего 8 этажей

    Арт.Предлагается к продаже уникальный видовой представительский офис в премиальном комплексе Смольный Парк. Офис занимает ВЕСЬ последний этаж с окнами на две стороны, виды на Неву и Смольный. Фактически, это офис - пентхаус Размещение на последнем этаже...
    • 8/8 эт.
    138 000 000 Р
    Агент
    +7 (911) Показать номер
    Посмотреть контакты

    Не нашли подходящего объявления?

    Оставьте заявку, и наши риэлторы подберут офис в районе Санкт-Петербурга

    (0)