229 779 520 Р 2 976 600 $ или 2 509 700

Информация о помещении и здании

3
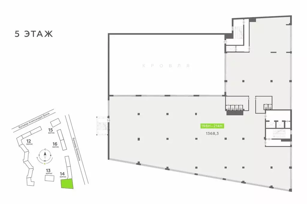
Этаж
5
Этажность
Развернуть
Агент
+7 (911) 726-44-41
Начать чат с агентом

Офис в Санкт-Петербург Заставская ул., 33с4 (798 м)

Продажа офисных блоков на 3 и 5 этажах офисного цента в составе первого этапа масштабного проекта редевелопмента лофт-квартала Скороход — в самом центре делового Петербурга.Пешеходный лофт-квартал Скороход победитель престижной архитектурно-девелоперской премии REPA в номинации Лучший проект редевелопмента также был отмечен дипломом Выбор международного жюри.Лофт-квартал Скороход — проект, в котором бережно сберегается атмосфера исторического квартала с малоэтажными кирпичными зданиями, уютными двориками и мощеными пешеходными улицами. Территория бывшего завода после редевелопмента будет включать: крытую торговую улицу, lounge-зоны, арт-объекты, селфи-споты, спортивные и детские площадки, мастерские и выставки.Преимущества локации:•5 минут пешком до метро Московские ворота•Удобная транспортная доступность до Пулково и Московского вокзала•Рядом — бизнес-центры, ВУЗы, кофейни, рестораныИдеальное пространство под вашу концепцию:• Помещения передаются в формате Shell Core — идеально для тех, кто хочет создать уникальный офис• Уже выполнены ключевые работы (пескоструйная обработка кирпичных стен, колонн, потолков, выравнивающая стяжка пола)• Высокие потолки, открытая планировка и кирпичные стены — готовая база под стильный лофт-дизайн3 этаж:• 798,4 кв.м.этаж:• 1096,0 кв.м.О здании:• Чистовая отделка мест общего пользования• Отреставрированные исторические кирпичные фасады• Новая утеплённая кровля• Панорамные окна и входные группы в едином архитектурном стилеИнженерные системы:• Разводка отопления с установкой радиаторов• Современные инженерные сети: отопление, электрика, вентиляция, кондиционирование. Оборудование и магистральные сети подведены к границам помещений• Современные бесшумные пассажирские лифты

Читать полностью
    Позвонить Написать
    229 779 520 Р2 976 600 $ или 2 509 700
    Агент
    +7 (911) 726-44-41
    Начать чат с агентом
    Похожие предложения
    Офис в Санкт-Петербург Цветочная ул., 2 (500 м) - Фото 1
    Офис в Санкт-Петербург Цветочная ул., 2 (500 м) - Фото 2
    4-й этаж, всего 12 этажей

    Офисное помещение 500 кв. м в бизнес-центре Арт Плаза . Прямая продажа, без комиссии. Объект на стадии активного строительства, готовность ко въезду уточняется по запросу. Район: Московский. Характеристики:- Класс: B+; - Арендопригодная площадь: 872.63;...
    • 4/12 эт.
    220 000 000 Р
    Агент
    +7 (981) Показать номер
    Посмотреть контакты
    Офис в Санкт-Петербург Коломяжский просп., 19А (672 м) - Фото 1
    Офис в Санкт-Петербург Коломяжский просп., 19А (672 м) - Фото 2
    4-й этаж, всего 23 этажа

    Офисное помещение 671.6 кв. м в бизнес-центре SAAN. Прямая продажа, без комиссии. Объект на стадии активного строительства, готовность ко въезду уточняется по запросу. Район: Приморский. Характеристики:- Класс: A; - Арендопригодная площадь: 53671.21;...
    • 4/23 эт.
    224 984 160 Р
    Агент
    +7 (981) Показать номер
    Посмотреть контакты
    Офис (348.87 м) - Фото 1
    Офис (348.87 м) - Фото 2
    7-й этаж, всего 8 этажей

    Офисное помещение 348.9 кв. м в бизнес-центре Element. Прямая продажа, без комиссии. Объект на стадии активного строительства, готовность ко въезду уточняется по запросу. Район: Петроградский. Характеристики:- Класс: A; - Арендопригодная площадь: 29826.71;...
    • 7/8 эт.
    221 593 376 Р
    Агент
    +7 (911) Показать номер
    Посмотреть контакты
    Офис (331.47 м) - Фото 1
    Офис (331.47 м) - Фото 2
    8-й этаж, всего 8 этажей

    Офисное помещение 331.5 кв. м в бизнес-центре Element. Прямая продажа, без комиссии. Объект на стадии активного строительства, готовность ко въезду уточняется по запросу. Район: Петроградский. Характеристики:- Класс: A; - Арендопригодная площадь: 29826.71;...
    • 8/8 эт.
    223 274 576 Р
    Агент
    +7 (911) Показать номер
    Посмотреть контакты
    Офис в Санкт-Петербург Московский просп., 65Э (521 м) - Фото 1
    Офис в Санкт-Петербург Московский просп., 65Э (521 м) - Фото 2
    1-й этаж, всего 8 этажей

    Бизнес-центр премиум класса LOCUS by Akvilon — это новое место на карте делового Петербурга. Новая точка, в которой сходятся все линии роста — близость к центру города, развитая инфраструктура, удобное расположение у метро на пересечении двух важных магистралей...
    • 1/8 эт.
    233 148 823 Р
    Агент
    +7 (911) Показать номер
    Посмотреть контакты

    Не нашли подходящего объявления?

    Оставьте заявку, и наши риэлторы подберут офис в районе Санкт-Петербурга

    (0)