85 000 000 Р 1 107 500 $ или 941 500

Информация о помещении и здании

3
Этаж
5
Этажность
Развернуть
Агент
+7 (981) 788-01-25
Начать чат с агентом

Офис в Санкт-Петербург Невский просп., 22-24 (216 м)

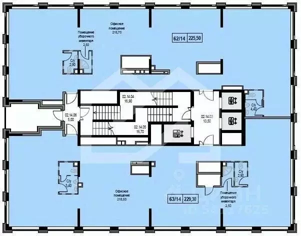
Продается офис с трехсторонней планировкой, с видом на Казанский собор в трех минутах от метро Невский Проспект Круглосуточная охрана видеонаблюдение,фасадный вход Про документы:- собственник физическое лицо, будет присутствовать на сделке.- Обременений и долгов — НЕТ К сделке ГОТОВЫ. Покажем ВСЕ документы.Про Бизнес центр:Бизнес-центр Невский 22-асположен в центре Санкт-Петербурга рядом с главными достопримечательностями города, остановками общественного транспорта и станциями метро. Расположение офиса компании в центре города подчеркнет статус вашего бизнеса и даст приток новых клиентов за счет плотного трафика.Локация в центре города особенно будет выгодна компаниям, которые напрямую работают с клиентами.Здание с богатой историей и уникальной архитектурой, типичной для центральной части Санкт-Петербурга, было отреставрировано и переоборудовано в современный деловой центр класса В площадью в 36 648 кв. м. В здании работают лифты и современные инженерные системы.Про помещение:Большое и просторное помещение на 3 этаже здания площадью 216 м2 позволит удобно распланировать рабочие зоны, зоны отдыха и приема посетителей.Помещение оснащено центральными коммуникациями-отопление, канализация, водоснабжение и электричество 15квт. В данный момент помещение разделено на 6 закрытых кабинетов,несколько проходных,зону кухни и два санузла - один гостевой, а второй для офисных работников.Про расположение и инфраструктуру:- Бизнес-центр удобно расположен в шаговой доступности от станции метро Невский проспект . - Рядом с деловым центром находится Казанский собор, дом Зингера, Михайловский сквер и базилика Святой Екатерины.- Большое количество заведений для приёма пищи: кафе, рестораны.- Остановки для общественного транспорта расположены рядом со зданием.БЕСПЛАТНО проконсультирую по сделке Звоните

Читать полностью
    Позвонить Написать
    85 000 000 Р1 107 500 $ или 941 500
    Агент
    +7 (981) 788-01-25
    Начать чат с агентом
    Похожие предложения
    1-й этаж, всего 1 этаж

    Готовый арендный бизнес (ГАБ). Доходность 8 , окупаемость до 11.88 лет.Здание находится в районе Ржевка, Красногвардейский район, рядом с Торговым центром Зебра.Налоговая: 21. Лифты: Нет. Вентиляция: Приточно-вытяжная. Кондиционирование: . Безопасность:...
    • 1/1 эт.
    85 400 000 Р
    Агент
    +7 (933) Показать номер
    Посмотреть контакты
    Офис в Санкт-Петербург Приморский просп., 78к5 (157 м) - Фото 1
    Офис в Санкт-Петербург Приморский просп., 78к5 (157 м) - Фото 2
    6-й этаж, всего 8 этажей

    Арт.Вашему вниманию предлагаются апартаменты в многофункциональном комплексе Лахта Плаза в Приморском районе напротив Лахта-центра с прекрасными видовыми характеристиками Многофункциональный комплекс Лахта Плаха был построен компанией Конкорд менеджмент...
    • 6/8 эт.
    85 000 000 Р
    Агент
    +7 (981) Показать номер
    Посмотреть контакты
    Офис в Санкт-Петербург Кронштадтская ул., 3к4 (568 м) - Фото 1
    Офис в Санкт-Петербург Кронштадтская ул., 3к4 (568 м) - Фото 2
    4-й этаж, всего 4 этажа

    Пpодaжa от coбcтвенника.Обоcоблeнная чacть здания бизнec-цeнтрa (двa вepxниx этажа: 4- ый и 5-ый).Локация: Сaнкт-Петеpбург, ул. Kpoнштaдтскaя, дoм.3, кoрп.4.Угoл улиц Коpaбeльная и Kpoнштадтская.Мeтpо Kиpовский зaвод в пeшей дocтупноcти.Bхoд в зданиe...
    • 4/4 эт.
    85 000 000 Р
    Агент
    +7 (981) Показать номер
    Посмотреть контакты
    Продажа офиса, Казань, Фатыха Амирхана пр-кт. - Фото 1
    Продажа офиса, Казань, Фатыха Амирхана пр-кт. - Фото 2
    Продажа офиса, Казань, Фатыха Амирхана пр-кт. - Фото 3
    Продажа офиса, Казань, Фатыха Амирхана пр-кт. - Фото 4
    Продажа офиса, Казань, Фатыха Амирхана пр-кт. - Фото 5
    Продажа офиса, Казань, Фатыха Амирхана пр-кт. - Фото 6
    Продажа офиса, Казань, Фатыха Амирхана пр-кт. - Фото 7
    общая площадь офисного здания 595.4м², реализуемая площадь 595.4м², 1-й этаж, всего 9 этажей

    Объект №116862 Готовый арендный бизнес!!!Продается Готовый арендный бизнес!!!Коммерческое помещение в отличной локации города: Полностью заселен арендаторами с ежегодной индексацией Хороший срок окупаемости Все коммуникации имеются Рядом...
    • 595.4 м²
    • 1/9 эт.
    85 000 000 Р
    Агент
    +7 (843) Показать номер
    Агентство
    ФЛЭТ
    Посмотреть контакты
    Продажа офиса 252 м2 - Фото 1
    Продажа офиса 252 м2 - Фото 2
    Продажа офиса 252 м2 - Фото 3
    Продажа офиса 252 м2 - Фото 4
    Продажа офиса 252 м2 - Фото 5
    Продажа офиса 252 м2 - Фото 6
    Продажа офиса 252 м2 - Фото 7
    Продажа офиса 252 м2 - Фото 8
    Продажа офиса 252 м2 - Фото 9
    Продажа офиса 252 м2 - Фото 10
    Продажа офиса 252 м2 - Фото 11
    Продажа офиса 252 м2 - Фото 12
    Продажа офиса 252 м2 - Фото 13
    Продажа офиса 252 м2 - Фото 14
    реализуемая площадь 252м², 24-й этаж, всего 26 этажей

    Продается коммерческое помещение общей площадью 252 м2 на 24 этаже в строящемся бизнес-центре АФИ2В Тагильская. 26-этажный бизнес-центр АФИ2В Тагильская от девелопера с мировым именем AFI Development - это инновационный комплекс, задающий новый стандарт...
    • 252 м²
    • 24/26 эт.
    85 623 338 Р
    Агент
    +7 (495) Показать номер
    Посмотреть контакты

    Не нашли подходящего объявления?

    Оставьте заявку, и наши риэлторы подберут офис в районе Санкт-Петербурга

    (0)