282 348 000 Р 3 609 400 $ или 3 065 900

Информация о помещении и здании

6
Этаж
9
Этажность
Развернуть
Агент
+7 (981) 145-24-02
Начать чат с агентом

Офис в Санкт-Петербург Наличная ул., 44К1 (1228 м)

Офисное помещение 1 227.6 кв. м в бизнес-центре Asgard. Прямая продажа, без комиссии.Район: Василеостровский. Характеристики:- Класс: B+; - Арендопригодная площадь: 15550; - Код налоговой: 01; - Высота потолков: 3.8 м, 4 м; - Кол-во мест подземного паркинга: 120; - Интернет-провайдеры: МТС, Петросвязь. Стоимость: Финансовые условия: - Налог: Включая НДС. Оформление сделки напрямую от собственника, без комиссии.Готовы оперативно организовать просмотр в удобное время, предоставить PDF-презентацию и план. Точное местоположение объекта можно найти по данным координатам: 59.951899,30.232837 ID = c_1769259

Читать полностью
    Позвонить Написать
    282 348 000 Р3 609 400 $ или 3 065 900
    Агент
    +7 (981) 145-24-02
    Начать чат с агентом
    Похожие предложения
    Офис в Санкт-Петербург Наличная ул., 44К1 (1227 м) - Фото 1
    Офис в Санкт-Петербург Наличная ул., 44К1 (1227 м) - Фото 2
    6-й этаж, всего 9 этажей

    Продается помещение в бизнес-центре класса В+ в непосредственной близости от метро.Бизнес-центр расположен в Василеостровском районе и находится в 7 минутах от метро Приморская. Здание построено в 2019 году, оснащено всеми необходимыми инженерными системами,...
    • 6/9 эт.
    282 210 000 Р
    Агент
    +7 (911) Показать номер
    Посмотреть контакты
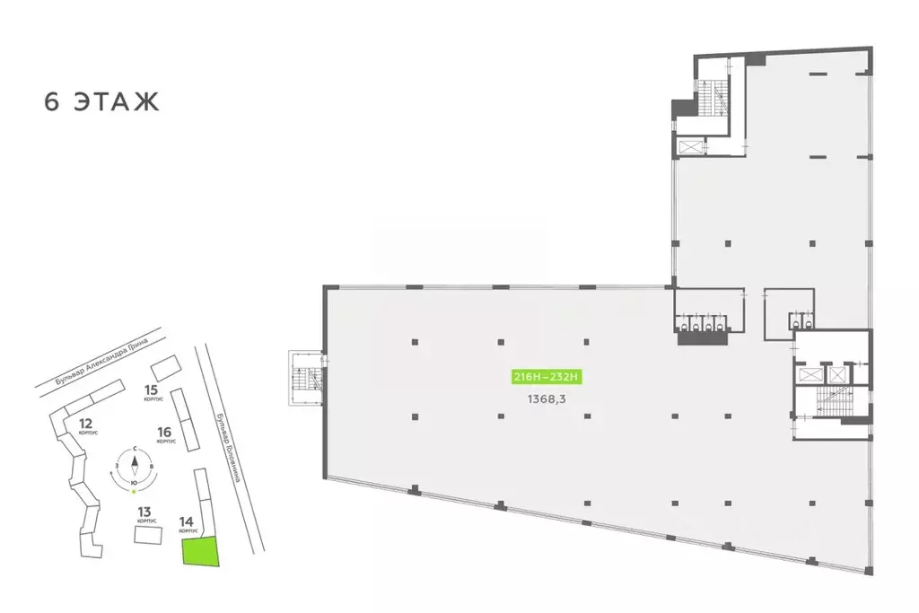
    Офис в Санкт-Петербург бул. Головнина, 4 (1368 м) - Фото 1
    Офис в Санкт-Петербург бул. Головнина, 4 (1368 м) - Фото 2
    6-й этаж, всего 8 этажей

    INSIDE - бизнес-центр, расположенный на Васильевском острове в пятистах метрах от Финского залива.Общий метраж: 4 514 мОфисные помещения с 5 по 8 этажиОфисные помещения сдаются в формате Shell Core, что позволяет создать уникальное планировочное решение...
    • 6/8 эт.
    277 462 779 Р
    Агент
    +7 (911) Показать номер
    Посмотреть контакты
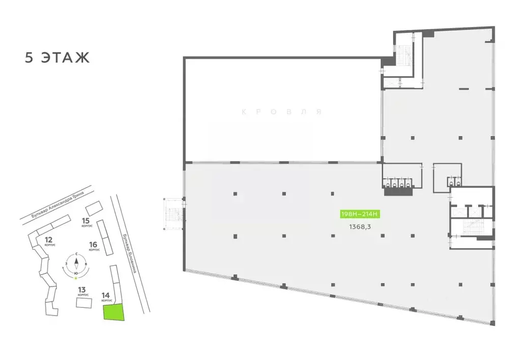
    Офис в Санкт-Петербург бул. Головнина, 4 (1368 м) - Фото 1
    Офис в Санкт-Петербург бул. Головнина, 4 (1368 м) - Фото 2
    5-й этаж, всего 8 этажей

    INSIDE - бизнес-центр, расположенный на Васильевском острове в пятистах метрах от Финского залива.Общий метраж: 4 514 мОфисные помещения с 5 по 8 этажиОфисные помещения сдаются в формате Shell Core, что позволяет создать уникальное планировочное решение...
    • 5/8 эт.
    276 711 856 Р
    Агент
    +7 (911) Показать номер
    Посмотреть контакты
    Офис в Санкт-Петербург бул. Головнина, 4 (1368 м) - Фото 1
    Офис в Санкт-Петербург бул. Головнина, 4 (1368 м) - Фото 2
    8-й этаж, всего 8 этажей

    INSIDE - бизнес-центр, расположенный на Васильевском острове в пятистах метрах от Финского залива.Общий метраж: 4 514 мОфисные помещения с 5 по 8 этажиОфисные помещения сдаются в формате Shell Core, что позволяет создать уникальное планировочное решение...
    • 8/8 эт.
    272 737 725 Р
    Агент
    +7 (911) Показать номер
    Посмотреть контакты
    Офис в Санкт-Петербург Пискаревский просп., 6 (1912 м) - Фото 1
    Офис в Санкт-Петербург Пискаревский просп., 6 (1912 м) - Фото 2
    1-й этаж, всего 3 этажа

    Показ в удобное время. С АГЕНТАМИ РАБОТАЕМ И ПЛАТИМ.Здание расположено в Калининском районе. Высокий автомобильный и пешеходный, развитая инфраструктура. Налоговая: 13. Лифты: Есть. Вентиляция: Приточно-вытяжная. Кондиционирование: Центральное. Безопасность:...
    • 1/3 эт.
    275 000 000 Р
    Агент
    +7 (933) Показать номер
    Посмотреть контакты

    Не нашли подходящего объявления?

    Оставьте заявку, и наши риэлторы подберут офис в районе Санкт-Петербурга

    (0)