Россия, Санкт-Петербург, Политрука Пасечника улица, д.5к2
7 300 000 Р 94 170 $ или 80 470

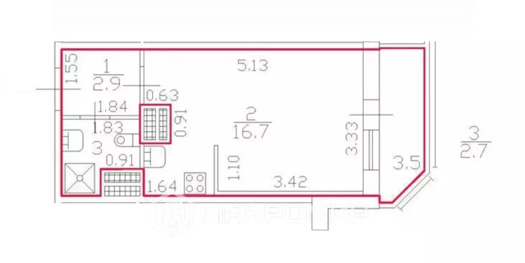
Информация о квартире

56.7 м2
Площадь
40 м2
Жилая
8 м2
Кухня
3
Комнаты
5
Этаж
5
Этажность
40 м2
Площадь комнат

Состояние и оснащение

Вид из окон
во двор
Тип санузла
раздельный

Дополнительная информация

Тип дома
кирпичный
Тип продажи
свободная
Собственников
1
Развернуть
Агент
Топоринская Татьяна
+7 (921) 307-27-93
Начать чат с агентом

Продажа квартиры, Политрука Пасечника улица

В продажу предлагается отличная 3х комнатная квартира в кирпичном доме в тихом и зеленом районе.Для семьи с детками или может сдаваться в аренду с доходностью от 35 - Квартира с раздельным санузлом, большой гостиной и гардеробной, в 5 минутах от остановки с общественным транспортом. До М.Пр. Ветеранов транспортом 35 минут. Пешком 10 минут до ЖД платформы Горелово. Развитая инфраструктура, детский сад, школа, магазины. Рядом озеро с оборудованными метами для отдыха и занятия спортом. Готовы показывать объект по договоренности, ждем Вас

Читать полностью

    Для того, чтобы купить трехкомнатную квартиру по адресу: Красносельский, Политрука Пасечника улица, д.5к2, позвоните по телефону +7 (921) 307-27-93. Торопитесь! Объявление №345528248 о продаже трехкомнатной квартиры опубликовано Вчера.

    Позвонить Написать
    7 300 000 Р94 170 $ или 80 470
    Агент
    Топоринская Татьяна
    +7 (921) 307-27-93
    Начать чат с агентом
    Похожие предложения
    Квартира-студия: Санкт-Петербург, улица Фёдора Котанова, 3к2 (23 м) - Фото 1
    Квартира-студия: Санкт-Петербург, улица Фёдора Котанова, 3к2 (23 м) - Фото 2
    студия, общая площадь 23м², жилая 15м²

    id:14318. ДОБАВОЧНЫЙ НОМЕР: 719ДОБАВОЧНЫЙ НОМЕР: 719Стильная студия у метро «Звёздная : готовая жизнь в Московском районеГлавные преимущества:· Идеальная транспортная доступность: Всего несколько минут пешком до станции метро «Звёздная . Вы быстро доберетесь...
    • 23 м²
    • студия-ком
    • 3/18 эт.
    7 250 000 Р
    Агент
    +7 (963) Показать номер
    Посмотреть контакты
    1-к кв. Санкт-Петербург Планерная ул., 25К2 (35.0 м) - Фото 1
    1-к кв. Санкт-Петербург Планерная ул., 25К2 (35.0 м) - Фото 2
    1-комнатная квартира, общая площадь 35м², жилая 19м², кухня 7м²

    ВСТРЕЧНАЯ ПОКУПКА, ЧТО СТОПРОЦЕНТНО ИСКЛЮЧАЕТ ПОВТОРЕНИЕ ИСТОРИИ ДОЛИНОЙ Свежий ремонт, заменена электропроводка. Мебель и техника остаётся без предварительных условий. Квартира в отличном состоянии. Плюсом в парадной отгорожен тамбур на две квартиры,...
    • 35 м²
    • 1-ком
    • 4/10 эт.
    • панельный
    7 200 000 Р
    Агент
    +7 (981) Показать номер
    Посмотреть контакты
    Студия Санкт-Петербург пос. Парголово, ул. Михаила Дудина, 23к1 (33.4 ... - Фото 1
    Студия Санкт-Петербург пос. Парголово, ул. Михаила Дудина, 23к1 (33.4 ... - Фото 2
    студия, общая площадь 33м², жилая 19м², кухня 5м²

    Уютная студия с евро-ремонтом и лоджией — ваш идеальный старт ПРОДАЖА БЕЗ КОМИССИИ ОДОБРЕНИЕ ИПОТЕКИ В ПОДАРОК Кратко о главном - Площадь: 30+ м. - Этаж: 5 из 12. - Планировка: Просторная кухня-гостиная 18 м — здесь легко разместится...
    • 33 м²
    • студия-ком
    • 11/25 эт.
    7 250 000 Р
    Агент
    +7 (981) Показать номер
    Посмотреть контакты
    1-комнатная квартира: Санкт-Петербург, Пулковское шоссе, 95к4 (30.5 м) - Фото 1
    1-комнатная квартира: Санкт-Петербург, Пулковское шоссе, 95к4 (30.5 м) - Фото 2
    1-комнатная квартира, общая площадь 30м², жилая 13м², кухня 9м²

    Продается уютная однокомнатная квартира в комфортном малоэтажном ЖК Парадный Ансамбль , квартира расположенная на 1 этаже 5-этажного дома с выходом в палисадник.Площадь квартиры составляет 30.50 кв.м., что делает ее идеальным вариантом как для молодых...
    • 30 м²
    • 1-ком
    • 1/5 эт.
    7 200 000 Р
    Агент
    +7 (962) Показать номер
    Посмотреть контакты
    Квартира-студия: Санкт-Петербург, бульвар Головнина, 10 (23.5 м) - Фото 1
    Квартира-студия: Санкт-Петербург, бульвар Головнина, 10 (23.5 м) - Фото 2
    студия, общая площадь 23м², жилая 15м²

    Студия с ремонтом и мебелью на Васильевском острове Идеальный вариант для молодых семей, студентов и тех, кто ищет комфортное жилье. ОСНОВНЫЕ ПРЕИМУЩЕСТВА:Полноценная студия, не апартаменты Готова к проживанию: заезжай и живи Площадь: 23,5 м - по выписке...
    • 23 м²
    • студия-ком
    • 6/20 эт.
    7 221 000 Р
    Агент
    +7 (963) Показать номер
    Посмотреть контакты

    Не нашли подходящего объявления?

    Оставьте заявку, и наши риэлторы подберут квартиру в районе Санкт-Петербурга

    (0)