27 000 000 Р 354 100 $ или 302 900

Информация о квартире

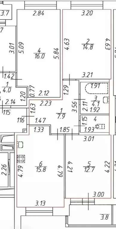
76 м2
Площадь
48 м2
Жилая
11 м2
Кухня
3
Комнаты
4
Этаж
5
Этажность

Дополнительная информация

Тип дома
кирпичный
Развернуть
Агент
+7 (911) 750-95-04
Начать чат с агентом

3-к кв. Санкт-Петербург Свечной пер., 2/12 (76.0 м)

Продается просторная трехкомнатная квартира общей площадью 76 кв. м, расположенная на 4 этаже пятиэтажного кирпичного дома 1823 года постройки. Высокие потолки — 3.8 метра — создают ощущение простора и света. Квартира находится всего в трех минутах пешком от метро, что делает ее идеальным выбором для тех, кто ценит удобство и доступность транспорта.В квартире сделан косметический ремонт, что позволяет новому владельцу въехать и жить без дополнительных затрат на обновление интерьера. Просторная кухня площадью 11 кв. м станет отличным местом для семейных обедов. Окна выходят на улицу, поэтому в квартире всегда светло и уютно. Здесь есть один отдельный санузел, что удобно для семьи.Дом находится в хорошем состоянии, в нем есть пассажирский лифт, что особенно ценно для домов с историей. Рядом с домом предусмотрены места для парковки, поэтому можно не беспокоиться о том, где оставить автомобиль.Район предлагает развитую инфраструктуру: в шаговой доступности находятся школы, детские сады, клиники и магазины. Все необходимое для комфортной жизни — буквально под рукой. Отличная транспортная доступность позволяет быстро добраться до любого района города.По условиям сделки: квартира готова к продаже, возможна покупка в ипотеку. Все документы проверены и готовы к сделке, обременений нет. Мы приглашаем вас на просмотр — записывайтесь, чтобы убедиться, что это идеальный вариант для вашей семьи.

Читать полностью

    Для того, чтобы купить трехкомнатную квартиру по адресу: м. Владимирская, Свечной пер., 2/12, позвоните по телефону +7 (911) 750-95-04. Торопитесь! Объявление №30094914408 о продаже трехкомнатной квартиры опубликовано Сегодня.

    Позвонить Написать
    27 000 000 Р354 100 $ или 302 900
    Агент
    +7 (911) 750-95-04
    Начать чат с агентом
    Похожие предложения
    6-к кв. Санкт-Петербург Социалистическая ул., 3 (207.1 м) - Фото 1
    6-к кв. Санкт-Петербург Социалистическая ул., 3 (207.1 м) - Фото 2
    общая площадь 207м², жилая 135м², кухня 15м²

    id:14359. ДЛЯ СОЕДИНЕНИЯ С МЕНЕДЖЕРОМ ОБЪЕКТА ВВЕДИТЕ ДОБАВОЧНЫЙ НОМЕР: 712 .Просторная квартира в тихом центре с редким архитектурном стилем - эклектика Квартира заслуживает быть красивой для большой семьи В квартире сохранились оригинальные архитектурные...
    • 207 м²
    • 6-ком
    • 5/5 эт.
    • кирпичный
    27 999 000 Р
    Агент
    +7 (911) Показать номер
    Посмотреть контакты
    3-к кв. Санкт-Петербург Большая Московская ул., 1-3 (134.3 м) - Фото 1
    3-к кв. Санкт-Петербург Большая Московская ул., 1-3 (134.3 м) - Фото 2
    3-комнатная квартира, общая площадь 134м², жилая 40м², кухня 26м²

    Центр Санкт-ПетербургаПродажа просторной 2-комнатной квартиры 134,3 кв.м в историческом центре Петербурга у метро Владимирская и Достоевская в 5 мин ходьбы от Невского проспекта. Эклектика. Фасады декорированы элементами раннего классицизма. Дом 1874...
    • 134 м²
    • 3-ком
    • 5/5 эт.
    • блочный
    27 200 000 Р
    Агент
    +7 (981) Показать номер
    Посмотреть контакты
    3-комнатная квартира: Санкт-Петербург, Басков переулок, 19 (123.1 м) - Фото 1
    3-комнатная квартира: Санкт-Петербург, Басков переулок, 19 (123.1 м) - Фото 2
    3-комнатная квартира, общая площадь 123м², жилая 65м², кухня 12м²

    Арт.Двухсторонняя квартира в топовой локации и историческом центре Санкт-Петербурга. Окна комнат выходят на ул. Некрасова и в тихий двор. Квартира расположена на комфортном 2м этаже 5 ти этажного дома 1917 года, капитальный ремонт был произведен в...
    • 123 м²
    • 3-ком
    • 2/5 эт.
    27 490 000 Р
    Агент
    +7 (905) Показать номер
    Посмотреть контакты
    2-к кв. Санкт-Петербург Московский просп., 136 (66.7 м) - Фото 1
    2-к кв. Санкт-Петербург Московский просп., 136 (66.7 м) - Фото 2
    2-комнатная квартира, общая площадь 66м², жилая 13м², кухня 28м²

    Код объекта: 2108347.Продается 2-х комнатная квартира на Московском проспекте, который по праву называют его парадным лицом Санкт-Петербурга. Это место, где сочетаются история, архитектура и динамика современного города.О квартире:3 этаж из 5Высота...
    • 66 м²
    • 2-ком
    • 3/5 эт.
    • кирпичный
    27 500 000 Р
    Агент
    +7 (911) Показать номер
    Посмотреть контакты
    2-к кв. Санкт-Петербург Большой Сампсониевский просп., 70к5 (61.3 м) - Фото 1
    2-к кв. Санкт-Петербург Большой Сампсониевский просп., 70к5 (61.3 м) - Фото 2
    2-комнатная квартира, общая площадь 61м², жилая 27м², кухня 16м²

    Современная квартира с дизайнерским качественным ремонтом в новом ЖК бизнес-класса Новый Лесснер . Квартира находится на комфортном 2 этаже, окна выходят на солнечные стороны, светлая.Квартира имеет функциональную планировку: просторная кухня-гостиная,...
    • 61 м²
    • 2-ком
    • 2/12 эт.
    27 800 000 Р
    Агент
    +7 (911) Показать номер
    Посмотреть контакты

    Не нашли подходящего объявления?

    Оставьте заявку, и наши риэлторы подберут квартиру в районе Санкт-Петербурга

    (0)