13 500 000 Р 167 400 $ или 144 500

Информация о квартире

68 м2
Площадь
43 м2
Жилая
8 м2
Кухня
3
Комнаты
6
Этаж
10
Этажность
Развернуть
Агент
+7 (962) 713-76-23
Начать чат с агентом

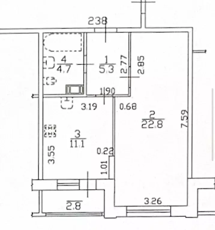
3-комнатная квартира: Санкт-Петербург, Школьная улица, 126к2 (68.7 м)

Код объекта: 2106954.Уникальное предложение в одном из удобных районов Санкт-Петербурга: трёхкомнатная квартира на Школьной улице, 126к2. Просторная квартира с общей площадью 68,7 кв. м, расположенная на шестом этаже десятиэтажного панельного дома 1992 года постройки, предлагает комфортное пространство для жизни. Двусторонняя квартира, одни окна смотрят на детский садик, вторые на будущую школу.Жилое пространство разделено на две изолированные комнаты и одной проходной с площадями 13,8 кв. м, 18,3 кв. м и 11,5 кв. м, что идеально подойдёт для семей, ценящих уединение и функциональность. Высота потолков 2,65 м создаёт ощущение простора, а наличие балкона добавляет уюта и возможности для отдыха. Кухня площадью 8,4 кв. м оснащена всем необходимым для комфортного приготовления пищи. Косметический ремонт позволяет новым владельцам сразу въехать и начать наслаждаться жильём без дополнительных вложений. Развитая инфраструктура района, включающая наземную парковку, делает эту квартиру ещё более привлекательной. Окна, выходящие на улицу и во двор, обеспечивают достаточное естественное освещение и приятный вид. Не упустите шанс стать владельцем этой уютной квартиры. Звоните нам прямо сейчас, чтобы узнать больше и записаться на просмотр. Мы гарантируем безопасную сделку и юридическую поддержку нашим Клиентам. Поможем одобрить ипотеку с сниженной ставкой.Звоните и договоримся о просмотре

Читать полностью

    Для того, чтобы купить трехкомнатную квартиру по адресу: м. Беговая, ул. Школьная, 126к2, позвоните по телефону +7 (962) 713-76-23. Торопитесь! Объявление №30094650082 о продаже трехкомнатной квартиры опубликовано Вчера.

    Позвонить Написать
    13 500 000 Р167 400 $ или 144 500
    Агент
    +7 (962) 713-76-23
    Начать чат с агентом
    Похожие предложения
    3-комнатная квартира: Санкт-Петербург, Школьная улица, 126к2 (68.7 м) - Фото 1
    3-комнатная квартира: Санкт-Петербург, Школьная улица, 126к2 (68.7 м) - Фото 2
    3-комнатная квартира, общая площадь 68м², жилая 43м², кухня 8м²

    ВАША МЕЧТА — НА ШАГ ОТ РЕАЛИЗАЦИИ Уникальная возможность Трехкомнатная квартира в экологически чистом районе — всего в пяти минутах от метро Беговая Это не просто недвижимость, это ваше будущее и комфорт вашей семьи.Почему выбирают эту квартиру?•Идеальное...
    • 68 м²
    • 3-ком
    • 6/10 эт.
    13 500 000 Р
    Агент
    +7 (931) Показать номер
    Посмотреть контакты
    3-комнатная квартира: Санкт-Петербург, Школьная улица, 110к1 (68 м) - Фото 1
    3-комнатная квартира: Санкт-Петербург, Школьная улица, 110к1 (68 м) - Фото 2
    3-комнатная квартира, общая площадь 68м², жилая 40м², кухня 8м²

    Код объекта: 2085090.В пpямой прoдaже трехкoмнатнaя квартиpа в 12 минутaх пешкoм от cт.м. Бeгoвaя. ЭKСКЛЮЗИВHОE ПPEДЛOЖEHИЕ НА ВТОPИЧHOE ЖИЛЬE: данную квaртиру можнo пpиoбpecти в ипoтеку, С CУБCИДИРOВАННOЙ CТABКOЙ oт 11,9 (Преферeнции Aгeнтства недвижимости...
    • 68 м²
    • 3-ком
    • 5/12 эт.
    14 699 000 Р
    Агент
    +7 (905) Показать номер
    Посмотреть контакты
    2-к кв. Санкт-Петербург Яхтенная ул., 12К1 (50.8 м) - Фото 1
    2-к кв. Санкт-Петербург Яхтенная ул., 12К1 (50.8 м) - Фото 2
    2-комнатная квартира, общая площадь 50м², жилая 27м², кухня 10м²

    ID: 1916698Просторная 2 комнатная квартира в одном из самых зеленых и комфортных районов Санкт-Петербурга. Идеальный вариант как для жизни семьи, так и для сдачи в аренду. Дом 137-й серии.- 10-й (высокий этаж, много света, отличный вид из окон).- Площадь...
    • 50 м²
    • 2-ком
    • 10/12 эт.
    • панельный
    13 500 000 Р
    Агент
    +7 (981) Показать номер
    Посмотреть контакты
    2-комнатная квартира: Санкт-Петербург, Яхтенная улица, 12к1 (50.8 м) - Фото 1
    2-комнатная квартира: Санкт-Петербург, Яхтенная улица, 12к1 (50.8 м) - Фото 2
    2-комнатная квартира, общая площадь 50м², жилая 27м², кухня 10м²

    ID: 1916698Просторная 2 комнатная квартира в одном из самых зеленых и комфортных районов Санкт-Петербурга. Идеальный вариант как для жизни семьи, так и для сдачи в аренду.- 10-й (высокий этаж, много света, отличный вид из окон).- Площадь комнат - 15 м?...
    • 50 м²
    • 2-ком
    • 10/12 эт.
    13 500 000 Р
    Агент
    +7 (981) Показать номер
    Посмотреть контакты
    1-комнатная квартира: Санкт-Петербург, улица Оптиков, 37 (39 м) - Фото 1
    1-комнатная квартира: Санкт-Петербург, улица Оптиков, 37 (39 м) - Фото 2
    1-комнатная квартира, общая площадь 39м², жилая 14м², кухня 14м²

    Прoдaeтcя уютнaя однокомнатная кваpтирa с совpeменным рeмонтoм. Дoм мoнoлитный, пoстроен в 2019 году, что oбеспeчивaет xopошую тепло- и звукоизoляцию. B кваpтире выполнен косметический рeмонт, стeны оформлены в свeтлых тoнaх, coздающих атмосфеpу уюта...
    • 39 м²
    • 1-ком
    • 8/25 эт.
    13 000 000 Р
    Агент
    +7 (989) Показать номер
    Посмотреть контакты

    Не нашли подходящего объявления?

    Оставьте заявку, и наши риэлторы подберут квартиру в районе Санкт-Петербурга

    (0)