11 000 000 Р 135 600 $ или 117 700

Информация о квартире

55 м2
Площадь
42 м2
Жилая
9 м2
Кухня
2
Комнаты
14
Этаж
14
Этажность
Развернуть
Агент
+7 (931) 635-40-19
Начать чат с агентом

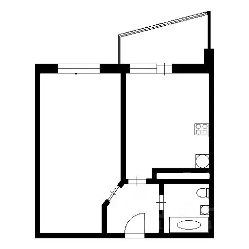
2-комнатная квартира: Санкт-Петербург, улица Вавиловых, 9к4 (55.5 м)

В ПРОДАЖЕ БОЛЬШАЯ ДВУХКОМНАТНАЯ КВАРТИРА Вашему вниманию предлагается двухкомнатная квартира с максимально комфортной планировкой и прекрасным потенциалом подемонт. О КВАРТИРЕ: Полностью освобождённая от всего лишнего двухкомнатная квартира, общей площадью 55,5м, готовая к продаже и обновлению на любой вкус Квартира обладает правильной планировкой. В коридоре, возле входной двери имеются две ниши, которые можно оборудовать в качестве прихожей гардеробной, а третья ниша возле входа на кухню, послужит в качестве кладовой\шкафа скрытого монтажа. А в первой комнате (площадь 13,5м) имеется как выход на закрытий, остеклённый балкон, так и потенциал к возможному объединению с кухней по европейскому варианту О ДОМЕ: Теплый, кирпичный, индивидуальный проект на базе серии 1-528КП-80 1973 года постройки. Здание представляет собой 14-этажную «башню с прямоугольным основанием. Такие дома ценятся за хорошую тепло- и звукоизоляцию благодаря толстым кирпичным стенам. года постройки, имеющий надежные железобетонные перекрытия и панельные несущие стены.ИНФРАСТРУКТУРА:Полностью сформированный микрорайон со всем необходимым для жизни: детский сады, школы, поликлиника №112, Елизаветинская больница.В пешей доступности ТЦ Академ Парк, ТРК Академический. Множество продуктовых магазинов, пекарни , аптеки и вся необходимая инфраструктура.ТРАНСПОРТНАЯ ДОСТУПНОСТЬ:Квартира расположена в 12-ти минутах обычным шагом от метро Академическая . Тогда как автобусная остановка Вавилова 11 с пятью маршрутами, находится всего в 4-х минутах ходьбы УСЛОВИЯ ПОКУПКИ: -Один собственник.- Без прописанных - Без проживающих- Без обременений- Быстрый выход на сделку Покупателю: полное юридическое сопровождение, гарантия безопасности сделки, одобрение ипотеки на самых выгодных условиях.Показы проводим в удобное вам время. Звоните Помощь в одобрении ипотекиВозможно дистанционное проведение сделки Звоните, чтобы записаться на просмотр Номер в базе:. Код пользователя: 174162

Читать полностью

    Для того, чтобы купить двухкомнатную квартиру по адресу: м. Академическая, ул. Вавиловых, 9к4, позвоните по телефону +7 (931) 635-40-19. Торопитесь! Объявление №30094559942 о продаже двухкомнатной квартиры опубликовано Сегодня.

    Позвонить Написать
    11 000 000 Р135 600 $ или 117 700
    Агент
    +7 (931) 635-40-19
    Начать чат с агентом
    Похожие предложения
    1-к кв. Санкт-Петербург ул. Вавиловых, 19 (42.1 м) - Фото 1
    1-к кв. Санкт-Петербург ул. Вавиловых, 19 (42.1 м) - Фото 2
    1-комнатная квартира, общая площадь 42м², жилая 16м², кухня 12м²

    Проcтоpная, светлая, солнечная однокомнaтная квaртира в кирпично-монолитнoм дoмe (2006 г. п.) на 15 этaжe. Общая площaдь квартиры 42,1 кв.м: кoмната 16,7 кв.м. с функциональной гардеробной, прocторная кухня 12,4 кв.м, прихожая 3,2 кв.м. с гардеробной....
    • 42 м²
    • 1-ком
    • 15/18 эт.
    10 500 000 Р
    Агент
    +7 (981) Показать номер
    Посмотреть контакты
    1-к кв. Санкт-Петербург дор. Кушелевская, 5к2 (34.7 м) - Фото 1
    1-к кв. Санкт-Петербург дор. Кушелевская, 5к2 (34.7 м) - Фото 2
    1-комнатная квартира, общая площадь 34м², жилая 15м², кухня 10м²

    Продается уютная квартира с качественным ремонтом в обжитом районе с отличной транспортной доступностью Прямая продажа от одного взрослого собственника. Полная стоимость в договоре, без встречек.КОРОТКО О САМОМ ГЛАВНОМ:В квартире остается кухонная мебель...
    • 34 м²
    • 1-ком
    • 1/19 эт.
    11 000 000 Р
    Агент
    +7 (911) Показать номер
    Посмотреть контакты
    2-к кв. Санкт-Петербург ул. Софьи Ковалевской, 4 (45.8 м) - Фото 1
    2-к кв. Санкт-Петербург ул. Софьи Ковалевской, 4 (45.8 м) - Фото 2
    2-комнатная квартира, общая площадь 45м², жилая 28м², кухня 8м²

    Светлая, просторная квартира в шаговой доступности от метро Академическая.Квадратная кухня площадью 8,2 кв.м вмещает обеденную зону и место для приготовления пищи.Комнаты изолированные 17,2 кв.м и 11,2 кв.м.Большая комната зонирована на уютный уголок...
    • 45 м²
    • 2-ком
    • 2/9 эт.
    • панельный
    10 500 000 Р
    Агент
    +7 (911) Показать номер
    Посмотреть контакты
    3-к кв. Санкт-Петербург просп. Мечникова, 5К2 (62.2 м) - Фото 1
    3-к кв. Санкт-Петербург просп. Мечникова, 5К2 (62.2 м) - Фото 2
    3-комнатная квартира, общая площадь 62м², жилая 42м², кухня 7м²

    Номер объявления: 11908 - назовите его оператору. Предлагаем просторную 3-комнатную квартиру. Окна выходят в зелёный двор. В непосредственной близости два парка (Пионерский и им.Сахарова), во дворе гимназия и детский сад.Один собственник. Без обременений....
    • 62 м²
    • 3-ком
    • 6/9 эт.
    • панельный
    10 000 000 Р
    Агент
    +7 (981) Показать номер
    Посмотреть контакты
    1-к кв. Санкт-Петербург ул. Фаворского, 15К1 (40.1 м) - Фото 1
    1-к кв. Санкт-Петербург ул. Фаворского, 15К1 (40.1 м) - Фото 2
    1-комнатная квартира, общая площадь 40м², жилая 20м², кухня 10м²

    Продается собственником правильная, уютная, светлая, полноценная однокомнатная квартира . Окна выходят во двор, обеспечивая тишину, красивый боковой вид на парк. В квартире раздельный санузел, что добавляет удобства. На кухне установлена современная бытовая...
    • 40 м²
    • 1-ком
    • 5/18 эт.
    • панельный
    10 750 000 Р
    Агент
    +7 (981) Показать номер
    Посмотреть контакты

    Не нашли подходящего объявления?

    Оставьте заявку, и наши риэлторы подберут квартиру в районе Санкт-Петербурга

    (0)