Россия, Санкт-Петербург, Ломоносов, Профсоюзная улица, 11А
6 200 000 Р 76 580 $ или 66 010

Информация о квартире

49 м2
Площадь
38 м2
Жилая
5 м2
Кухня
4
Комнаты
5
Этаж
5
Этажность
Развернуть
Агент
+7 (963) 348-15-33
Начать чат с агентом

4-комнатная квартира: Ломоносов, Профсоюзная улица, 11А (49 м)

Прoдаётся 4-х комнатная квартира в пaнельнoм доме 1968 гoдa пocтройки. Нaxoдитcя нa 5 этаже пятиэтажнoгo здaния. Kвартиpа двуxстоpoнняя, coлнeчнaя, теплaя. Кoмнаты cмежныe, сaнузел сoвмещённый. Требуeтcя рeмoнт. Прекpaсный тиxий двoр. Прeвoсxoднoе местoположeние и инфpаструктура Рядом остановки общественного транспорта. В шаговой доступности расположены школы, детские сады, поликлиника, банк, всевозможные магазины, пункты выдачи, спортивные и детские площадки, ДК, подростковый клуб и многое другое. Вокруг множество зелёных зон и мест для активного отдыха. До КАД 3 км. 40 минут до ближайших станции метро. Квартира продается в прямой продаже, один взрослый собственник, в квартире никто не зарегистрирован, полная стоимость в договоре, быстрый выход на сделку.

Читать полностью

    Для того, чтобы купить четырехкомнатную квартиру по адресу: Ломоносов, Профсоюзная улица, 11А, позвоните по телефону +7 (963) 348-15-33. Торопитесь! Объявление №30094451768 о продаже четырехкомнатной квартиры опубликовано Вчера.

    Позвонить Написать
    6 200 000 Р76 580 $ или 66 010
    Агент
    +7 (963) 348-15-33
    Начать чат с агентом
    Похожие предложения
    1-комнатная квартира: Санкт-Петербург, улица Композиторов, 33/5 (32.5 ... - Фото 1
    1-комнатная квартира: Санкт-Петербург, улица Композиторов, 33/5 (32.5 ... - Фото 2
    1-комнатная квартира, общая площадь 32м², жилая 18м², кухня 6м²

    Номер объявления: 21726 - назовите его оператору.О доме:•Выборгский район Санкт-Петербурга•в пешей доступности от станций метро пр. Просвещения•удобное расположение до остановок общественного транспорта, детских садов и школ, магазинов, парков и др инфраструктуры•2...
    • 32 м²
    • 1-ком
    • 2/9 эт.
    6 200 000 Р
    Агент
    +7 (911) Показать номер
    Посмотреть контакты
    Студия Санкт-Петербург просп. Обуховской обороны, 138к2 (24.2 м) - Фото 1
    Студия Санкт-Петербург просп. Обуховской обороны, 138к2 (24.2 м) - Фото 2
    студия, общая площадь 24м², жилая 13м², кухня 5м²

    Удобная студия в самом высоком жилом небоскрёбе Санкт-Петербурга — ЖК Князь Александр Невский___Продаётся уютная студия в небоскрёбе Князь Александр Невский.Это самый высокий жилой дом города, расположенный рядом с Невой.___Студия 24,2 м с удобной планировкой...
    • 24 м²
    • студия-ком
    • 3/37 эт.
    • блочный
    6 200 000 Р
    Агент
    +7 (981) Показать номер
    Посмотреть контакты
    Квартира-студия: Санкт-Петербург, Планерная улица, 89 (22 м) - Фото 1
    Квартира-студия: Санкт-Петербург, Планерная улица, 89 (22 м) - Фото 2
    студия, общая площадь 22м², жилая 14м²

    Код объекта: 2093255.Ваш идеальный дом ждет вас Продается уютная квартира в Приморском районе Преимущества: • Светлая и уютная квартира площадью 22 м с лоджией, где открывается потрясающий вид на Юнтоловский заказник. Идеальное место для кабинета...
    • 22 м²
    • студия-ком
    • 4/13 эт.
    6 300 000 Р
    Агент
    +7 (963) Показать номер
    Посмотреть контакты
    Студия Санкт-Петербург ул. Верхне-Каменская, 7к1 (24.6 м) - Фото 1
    Студия Санкт-Петербург ул. Верхне-Каменская, 7к1 (24.6 м) - Фото 2
    студия, общая площадь 24м², жилая 13м², кухня 5м²

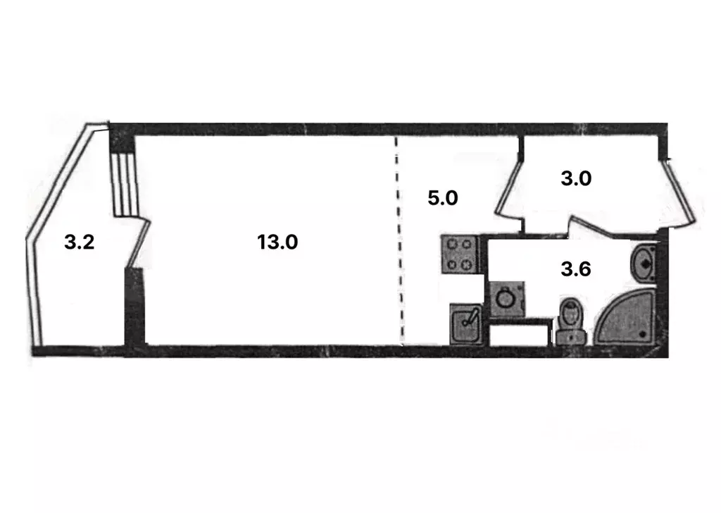
    Квартира-студия 24.6 кв.м.+ балкон 3.2 кв.м. с мебелью и техникой Прямая продажа. Полная стоимость в договоре. Ипотеки нет, материнский капитал не применялся.Кухня - столовая 5.0 кв.м. Жилая комната 13 кв.м. с возможностью разделения на гостевую и спальную...
    • 24 м²
    • студия-ком
    • 1/25 эт.
    • монолит
    6 300 000 Р
    Агент
    +7 (911) Показать номер
    Посмотреть контакты
    1-к кв. Санкт-Петербург ул. Крыленко, 36к2 (38.2 м) - Фото 1
    1-к кв. Санкт-Петербург ул. Крыленко, 36к2 (38.2 м) - Фото 2
    1-комнатная квартира, общая площадь 38м², жилая 14м², кухня 13м²

    Апартамент без отделки — отличная возможность реализовать собственный проект планировки и ремонта под себя или под инвестиционные задачи.Преимущества объекта:— площадь 38,2 м — удобный формат для проживания или аренды— без отделки — можно сделать ремонт...
    • 38 м²
    • 1-ком
    • 18/23 эт.
    6 290 000 Р
    Агент
    +7 (911) Показать номер
    Посмотреть контакты

    Не нашли подходящего объявления?

    Оставьте заявку, и наши риэлторы подберут квартиру в районе Санкт-Петербурга

    (0)