9 500 000 Р 113 100 $ или 97 650

Информация о квартире

50 м2
Площадь
31 м2
Жилая
7 м2
Кухня
2
Комнаты
4
Этаж
9
Этажность

Дополнительная информация

Тип дома
панельный
Развернуть
Агент
+7 (981) 255-43-18
Начать чат с агентом

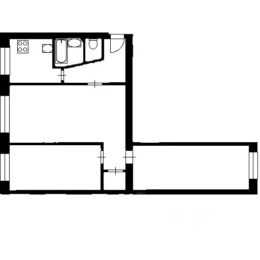
2-к кв. Санкт-Петербург ул. Десантников, 28 (50.9 м)

Продаётся уютная двухкомнатная квартира площадью 50.9 квадратных метров на четвёртом этаже девятиэтажного дома, расположенного по адресу: Санкт-Петербург, Юго-Запад, улица Десантников, 28. Жилая площадь составляет 31 квадратный метр, что предоставляет достаточно места для комфортного размещения мебели и создания индивидуального интерьера. Кухня площадью 7.1 квадратных метров станет прекрасным местом для приготовления вкусных блюд и семейных ужинов.Квартира отличается удобным расположением: среди ближайших объектов инфраструктуры школа, детский сад, торговый центр, парк и фитнес-клуб, а также рядом находятся продуктовые магазины и детская площадка прямо во дворе дома, где ваши дети смогут проводить время на свежем воздухе. Дом построен из железобетона в 1978 году, что гарантирует надёжность и долговечность конструкции. В квартире выполнен косметический ремонт, благодаря чему новым владельцам не потребуется вкладывать дополнительные средства и усилия для приведения её в порядок. Также стоит отметить, что в квартире установлен раздельный санузел, что является несомненным преимуществом для семейного проживания. Из окон открывается вид на тихий двор, позволяющий наслаждаться спокойствием и уединением после насыщенного дня.Этот вариант идеально подойдёт тем, кто ценит комфорт, спокойствие и удобство расположения своего жилья. Приглашаем вас ознакомиться с квартирой, которая может стать вашим новым домом и тёплым семейным гнездышком.

Читать полностью

    Для того, чтобы купить двухкомнатную квартиру по адресу: ул. Десантников, 28, позвоните по телефону +7 (981) 255-43-18. Торопитесь! Объявление №30094400935 о продаже двухкомнатной квартиры опубликовано Сегодня.

    Позвонить Написать
    9 500 000 Р113 100 $ или 97 650
    Агент
    +7 (981) 255-43-18
    Начать чат с агентом
    Похожие предложения
    Квартира, 2 комнаты, 50.9 м - Фото 1
    2-комнатная квартира, общая площадь 50м², кухня 7м²

    Продаётся уютная двухкомнатная квартира площадью 50.9 квадратных метров на четвёртом этаже девятиэтажного дома, расположенного по адресу: Санкт-Петербург, Юго-Запад, улица Десантников, 28. Жилая площадь составляет 31 квадратный метр, что предоставляет...
    • 50 м²
    • 2-ком
    • 4/9 эт.
    • панельный
    9 500 000 Р
    Агент
    +7 (981) Показать номер
    Посмотреть контакты
    3-к кв. Санкт-Петербург ул. Композиторов, 26/3 (60.1 м) - Фото 1
    3-к кв. Санкт-Петербург ул. Композиторов, 26/3 (60.1 м) - Фото 2
    3-комнатная квартира, общая площадь 60м², жилая 43м², кухня 6м²

    Светлая 3-к квартира 60 м | 9 этаж + техэтаж | 17 мин до метро | Рядом Суздальские озёраПродаётся 3-комнатная квартира 60,1 м в доме типа Корабль. Удобная планировка: 2 изолированные комнаты и просторная гостиная.Преимущества квартиры: 9 этаж + технический...
    • 60 м²
    • 3-ком
    • 9/9 эт.
    • панельный
    9 450 000 Р
    Агент
    +7 (911) Показать номер
    Посмотреть контакты
    3-к кв. Санкт-Петербург Гражданский просп., 31К2 (54.0 м) - Фото 1
    3-к кв. Санкт-Петербург Гражданский просп., 31К2 (54.0 м) - Фото 2
    3-комнатная квартира, общая площадь 54м², жилая 38м², кухня 5м²

    Уютная трехкомнатная квартира в кирпичном доме. До метро Академическая 7 минут пешком. Комнаты смежно изолированные. На окнах стеклопакеты, все выходят в тихий зеленый двор. Ваш автомобиль всегда по боком, есть возможность парковки рядом с домом. Во дворе...
    • 54 м²
    • 3-ком
    • 5/5 эт.
    • кирпичный
    9 600 000 Р
    Агент
    +7 (911) Показать номер
    Посмотреть контакты
    3-к кв. Санкт-Петербург ул. Карпинского, 28К1 (58.6 м) - Фото 1
    3-к кв. Санкт-Петербург ул. Карпинского, 28К1 (58.6 м) - Фото 2
    3-комнатная квартира, общая площадь 58м², жилая 44м², кухня 5м²

    В свободной продаже просторная, тихая трехкомнатная квартира. Окна в основном выходят в тихий зеленый двор, одно окно на улицу Карпинского, где есть возможность парковки. В квартире три комнаты: одна большая почти 20 метров, проходная. Через нее проход...
    • 58 м²
    • 3-ком
    • 1/7 эт.
    • блочный
    9 500 000 Р
    Агент
    +7 (981) Показать номер
    Посмотреть контакты
    1-к кв. Санкт-Петербург просп. Сизова, 14 (39.1 м) - Фото 1
    1-к кв. Санкт-Петербург просп. Сизова, 14 (39.1 м) - Фото 2
    1-комнатная квартира, общая площадь 39м², жилая 24м², кухня 10м²

    Стильная однушка с евроремонтом: заезжайте и наслаждайтесь жизнью ПРОДАЖА БЕЗ КОМИССИИ ОДОБРЕНИЕ ИПОТЕКИ В ПОДАРОКВОЗМОЖЕН ТРЕЙД-ИН*Продается светлая, теплая и полностью готовая к проживанию однокомнатная квартира. Это идеальный выбор для тех, кто ищет...
    • 39 м²
    • 1-ком
    • 6/12 эт.
    • панельный
    9 500 000 Р
    Агент
    +7 (981) Показать номер
    Посмотреть контакты

    Не нашли подходящего объявления?

    Оставьте заявку, и наши риэлторы подберут квартиру в районе Санкт-Петербурга

    (0)