5 950 000 Р 70 130 $ или 61 390

Информация о квартире

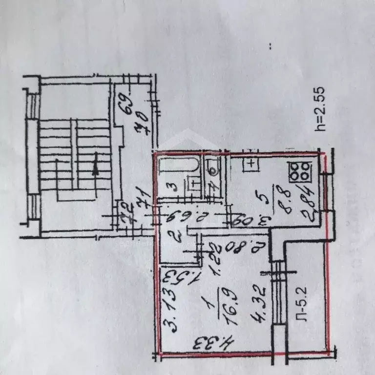
31 м2
Площадь
17 м2
Жилая
6 м2
Кухня
1
Комната
1
Этаж
12
Этажность

Дополнительная информация

Тип дома
панельный
Развернуть
Агент
+7 (911) 833-30-01
Начать чат с агентом

1-к кв. Санкт-Петербург ул. Демьяна Бедного, 27 (31.6 м)

Арт.Продаётся уютная, светлая однокомнатная квартира в доме серии 1 ЛГ-600А-8 общей площадью 31,6 кв.м. Квартира расположена на первом этаже двенадцати этажного дома, построенного в 1975 году. Общая площадь квартиры составляет 31,6 квадратных метров. комната 17,7 кв.м., кухня 6,3 кв.м., санузел раздельный, имеется закрытая лоджия 2,2 кв.м., квартира не угловая. В квартире сделан косметический ремонт, что позволяет сразу заселиться, без дополнительных вложений. В квартире остается мебель и техника на кухне, имеется много скрытых мест для хранения. Тихий, зеленый район с развитой инфраструктурой. Во дворе школа и три детских сада, в шаговой доступности Колледж Метростоя. Рядом с домом есть вся необходимая для жизни инфраструктура: магазины, аптеки, Хлебозавод со свежей выпечкой, поликлиника, парк Прометей для прогулок, конькобежный стадион и банный комплекс. До ст.метро Гражданский проспект 25 минут пешком. Развитая инфраструктура, быстрый выезд на КАД и близость к общественному транспорту с отлично развитым наземным транспортом делают наше предложение еще более привлекательным. Один совершеннолетний собственник, в собственности более 5 лет, прямая продажа.Звоните, записывайтесь на просмотр Поможем одобрить ипотеку со сниженной ставкой

Читать полностью

    Для того, чтобы купить однокомнатную квартиру по адресу: м. Гражданский проспект, ул. Демьяна Бедного, 27, позвоните по телефону +7 (911) 833-30-01. Торопитесь! Объявление №30094342251 о продаже однокомнатной квартиры опубликовано Сегодня.

    Позвонить Написать
    5 950 000 Р70 130 $ или 61 390
    Агент
    +7 (911) 833-30-01
    Начать чат с агентом
    Похожие предложения
    1-комнатная квартира: Санкт-Петербург, улица Демьяна Бедного, 27 (31.6 ... - Фото 1
    1-комнатная квартира: Санкт-Петербург, улица Демьяна Бедного, 27 (31.6 ... - Фото 2
    1-комнатная квартира, общая площадь 31м², жилая 17м², кухня 6м²

    Арт.Продаётся уютная, светлая однокомнатная квартира в доме серии 1 ЛГ-600А-8 общей площадью 31,6 кв.м. Квартира расположена на первом этаже двенадцати этажного дома, построенного в 1975 году. Общая площадь квартиры составляет 31,6 квадратных метров....
    • 31 м²
    • 1-ком
    • 1/12 эт.
    5 950 000 Р
    Агент
    +7 (981) Показать номер
    Посмотреть контакты
    1-к кв. Санкт-Петербург просп. Луначарского, 96к1 (33.3 м) - Фото 1
    1-к кв. Санкт-Петербург просп. Луначарского, 96к1 (33.3 м) - Фото 2
    1-комнатная квартира, общая площадь 33м², жилая 17м², кухня 6м²

    Арт.Представляем объект с колоссальным потенциалом — квартиру на 11 этаже панельного дома, общей площадью 33,3 кв. м. Это не просто жилье, это стратегическая инвестиция в будущее. Дом отличается приватностью: всего один подъезд и четыре квартиры на этаже....
    • 33 м²
    • 1-ком
    • 11/12 эт.
    • панельный
    6 000 000 Р
    Агент
    +7 (981) Показать номер
    Посмотреть контакты
    1-к кв. Санкт-Петербург Учительская ул., 17К1 (29.1 м) - Фото 1
    1-к кв. Санкт-Петербург Учительская ул., 17К1 (29.1 м) - Фото 2
    1-комнатная квартира, общая площадь 29м², жилая 14м², кухня 7м²

    ID: 1916387Продается однокомнатная квартира в Калининском районе. Квартира расположена на 3-ом этаже 5- ти этажного дома. Квартира светлая, теплая. Установлены стеклопакеты, счетчики на воду. Квартира двухсторонняя, окна выходят во двор и Учительскую...
    • 29 м²
    • 1-ком
    • 3/5 эт.
    • панельный
    5 980 000 Р
    Агент
    +7 (981) Показать номер
    Посмотреть контакты
    1-комнатная квартира: Санкт-Петербург, Учительская улица, 17к1 (29.1 ... - Фото 1
    1-комнатная квартира: Санкт-Петербург, Учительская улица, 17к1 (29.1 ... - Фото 2
    1-комнатная квартира, общая площадь 29м², жилая 14м², кухня 7м²

    ID: 1916387Продается однокомнатная квартира в Калининском районе. Квартира расположена на 3-ом этаже 5- ти этажного дома. Квартира светлая, теплая. Установлены стеклопакеты, счетчики на воду. Квартира двухсторонняя, окна выходят во двор и Учительскую...
    • 29 м²
    • 1-ком
    • 3/5 эт.
    5 980 000 Р
    Агент
    +7 (911) Показать номер
    Посмотреть контакты
    1-к кв. Санкт-Петербург Рябовское ш., 121К3 (34.9 м) - Фото 1
    1-к кв. Санкт-Петербург Рябовское ш., 121К3 (34.9 м) - Фото 2
    1-комнатная квартира, общая площадь 34м², жилая 16м², кухня 9м²

    Код объекта: 2076337.Срочно продаётся уютная однокомнатная квартира в Санкт-Петербурге, Рябовское шоссе, 121к3. Это идеальное предложение для тех, кто ищет комфортное жильё с современным ремонтом и удобной планировкой.Квартира расположена на 4 этаже 5-этажного...
    • 34 м²
    • 1-ком
    • 4/5 эт.
    • панельный
    6 000 000 Р
    Агент
    +7 (911) Показать номер
    Посмотреть контакты

    Не нашли подходящего объявления?

    Оставьте заявку, и наши риэлторы подберут квартиру в районе Санкт-Петербурга

    (0)