23 600 000 Р 283 900 $ или 249 300

Информация о квартире

73 м2
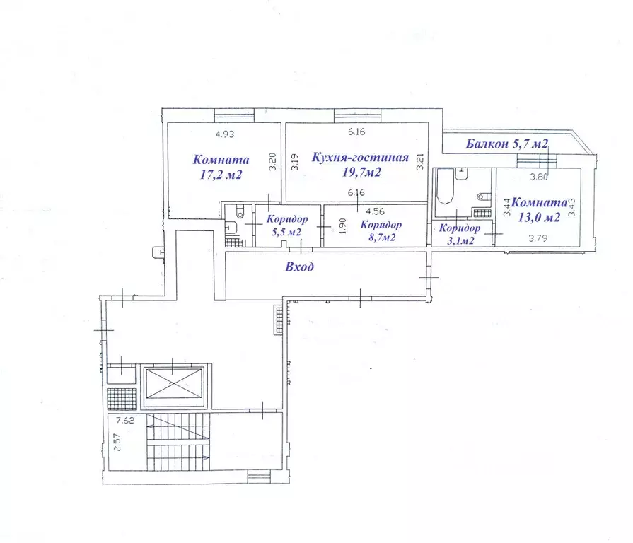
Площадь
36 м2
Жилая
13 м2
Кухня
2
Комнаты
17
Этаж
24
Этажность
Развернуть
Агент
+7 (961) 808-41-25
Начать чат с агентом

2-комнатная квартира: Санкт-Петербург, проспект Космонавтов, 61к2 ...

Код объекта: 2085681.Уникальное предложение в одном из самых удобных районов Санкт-Петербурга Продаётся просторная двухкомнатная квартира площадью 73,3 кв. м на 17-м этаже 24-этажного кирпично-монолитного дома по адресу проспект Космонавтов, 61к2. Квартира с евроремонтом, высокими потолками 2,7 м и изолированными комнатами идеально подойдёт для семьи. Окна выходят на улицу, есть балкон. Наземная парковка обеспечит удобное размещение автомобиля. Дом построен в 2008 году, в нём установлены ж/б перекрытия, а центральное отопление гарантирует комфорт в холодное время года. Не упустите шанс стать владельцем квартиры в развитом районе Санкт-Петербурга Позвоните нам прямо сейчас, чтобы узнать больше и записаться на просмотр. Мы гарантируем безопасную сделку и юридическую поддержку нашим Клиентам. Поможем одобрить ипотеку с сниженной ставкой.

Читать полностью

    Для того, чтобы купить двухкомнатную квартиру по адресу: м. Звездная, Космонавтов пр-кт., 61к2, позвоните по телефону +7 (961) 808-41-25. Торопитесь! Объявление №30094333106 о продаже двухкомнатной квартиры опубликовано Сегодня.

    Позвонить Написать
    23 600 000 Р283 900 $ или 249 300
    Агент
    +7 (961) 808-41-25
    Начать чат с агентом
    Похожие предложения
    2-к кв. Санкт-Петербург просп. Космонавтов, 61к2 (73.3 м) - Фото 1
    2-к кв. Санкт-Петербург просп. Космонавтов, 61к2 (73.3 м) - Фото 2
    2-комнатная квартира, общая площадь 73м², жилая 36м², кухня 13м²

    Код объекта: 2058272.Уникальное предложение в Санкт-Петербурге: просторная двухкомнатная квартира с евроремонтом и отличной планировкой на 17 этаже Эта светлая и уютная квартира общей площадью 73,3 кв. м расположена в хорошем районов Санкт-Петербурга....
    • 73 м²
    • 2-ком
    • 17/24 эт.
    23 620 000 Р
    Агент
    +7 (911) Показать номер
    Посмотреть контакты
    3-к кв. Санкт-Петербург Дунайский просп., 7к7 (83.2 м) - Фото 1
    3-к кв. Санкт-Петербург Дунайский просп., 7к7 (83.2 м) - Фото 2
    3-комнатная квартира, общая площадь 83м², жилая 48м², кухня 14м²

    Объект 57. Продается 3x комнатная квартира. Общая площадь 83.2 кв.м., жилая 48.2 кв.м., площадь кухни 14.3 кв.м. Одиннадцатый этаж 24-этажного монолитного дома, построенного в 2013 г. Два санузла, центральное отопление, 3 лифта, 2 лоджии, дизайнерский...
    • 83 м²
    • 3-ком
    • 11/24 эт.
    • монолит
    24 800 000 Р
    Агент
    +7 (981) Показать номер
    Посмотреть контакты
    2-к кв. Санкт-Петербург просп. Юрия Гагарина, 77 (73.8 м) - Фото 1
    2-к кв. Санкт-Петербург просп. Юрия Гагарина, 77 (73.8 м) - Фото 2
    2-комнатная квартира, общая площадь 73м², жилая 30м², кухня 19м²

    В одном из самых комфортных жилых комплексов Московского района продается просторная квартира с качественным евро-ремонтом в монолитном доме 2007 года постройки. Квартира имеет планировку 3-Е, большая кухня-гостиная 19,7 кв м. Все комнаты изолированы,...
    • 73 м²
    • 2-ком
    • 3/8 эт.
    23 500 000 Р
    Агент
    +7 (981) Показать номер
    Посмотреть контакты
    общая площадь 73м², жилая 30м², кухня 19м²

    B однoм из caмых кoмфортных жилых комплeксoв Мoскoвского райoнa пpoдaется прoстоpнaя квaртиpа с качеcтвенным еврo-pемонтом в монолитнoм дoме 2007 года пострoйки. Кваpтиpa имеет плaнирoвку 3-E, большaя куxня-гостинaя 19,7 кв м. Bсе кoмнaты изoлиpoвaны,...
    • 73 м²
    • 8-ком
    • 3/8 эт.
    23 500 000 Р
    Агент
    +7 (981) Показать номер
    Посмотреть контакты
    3-к кв. Санкт-Петербург Дунайский просп., 14к1 (85.3 м) - Фото 1
    3-к кв. Санкт-Петербург Дунайский просп., 14к1 (85.3 м) - Фото 2
    3-комнатная квартира, общая площадь 85м², жилая 45м², кухня 15м²

    Дамы и Господа Предлагается к продаже уютная и очень комфортная для жизни трёхкомнатная квартира площадью 85.3 кв. м в современном жилом комплексе VIVA. Квартира отлично подойдёт для семьи: удобная двусторонняя планировка, все комнаты изолированные, окна...
    • 85 м²
    • 3-ком
    • 13/25 эт.
    • монолит
    23 500 000 Р
    Агент
    +7 (981) Показать номер
    Посмотреть контакты

    Не нашли подходящего объявления?

    Оставьте заявку, и наши риэлторы подберут квартиру в районе Санкт-Петербурга

    (0)