Россия, Санкт-Петербург, Ленинградская ул., 2бк2
16 200 000 Р 197 900 $ или 171 000

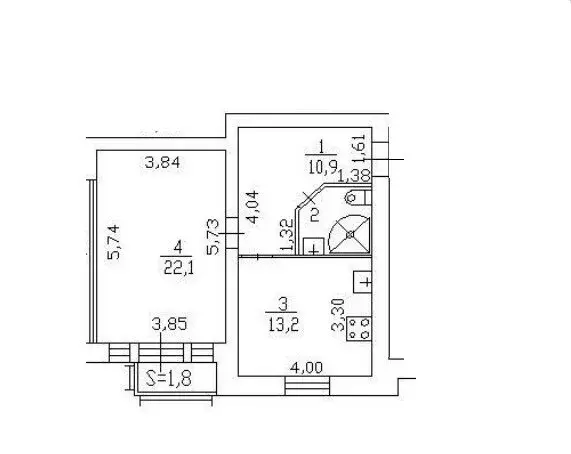
Информация о квартире

51 м2
Площадь
22 м2
Жилая
13 м2
Кухня
1
Комната
3
Этаж
4
Этажность

Дополнительная информация

Тип дома
кирпичный
Развернуть
Агент
+7 (981) 146-66-89
Начать чат с агентом

1-к кв. Санкт-Петербург, Санкт-Петербург, Пушкин Ленинградская ул., ...

Уникальная квартира в центре города Дом в окружении дворцов и парков. До ж/д станции Царское село 5 минут пешком. Закрытая территория. Камерный ЖК в классическом стиле • ХАРАКТЕРИСТИКА ДОМА, КВАРТИРЫ:• Теплый современный кирпичный дом в классическом стиле. Камерный Жилой Комплекс. Центр города. • Закрытый двор с детской площадкой и парковочными местами. Территория ЖК полностью огорожена и находится под круглосуточной охраной. • Теплая светлая просторная квартира общей площадью 51.6 м2.Квадратная кухня 13.2 м2, Жилая комната 22.1 м2 с выходом на застекленный балкон 1.8 м2, совмещенный санузел 5.4 м2, просторная прихожая 10.9 м2• Квартира передается новому собственнику с кухонным гарнитуром и встроенной техникой.• За квартирой закреплены два парковочных места у парадной.• За квартирой закреплено дополнительное помещение (кладовая) 20 м2. Помещение сухое, теплое, в нем выполнена чистовая отделка, закрывается на ключ.• ЮРИДИЧЕСКАЯ ИНФОРМАЦИЯ:• Один взрослый собственник.• Покупали у застройщика.• Более 5 лет в собственности.• Прямая продажа.• Любые формы расчета.• Быстрый выход на сделку.• ИНФРАСТРУКТУРА:• Центр города • 5 минут пешком до ж/д станции Царское село. 30 минут и Вы в центе Санкт-Петербурга.• Квартира в окружении парков и дворцов.• Развитая инфраструктура: Школа 449, Царскосельская гимназия, 9 детских сада (ближайший менее чем в 100 метрах от дома), поликлиники, Городская больница 38 им. Н.А. Семашко и др.• Большое количество магазинов, аптеки, отделение банков, кафе, рестораны и т.д.Лучший вариант для жизни или инвестиций Звоните и записывайтесь на просмотр. Наша квартира не оставит Вас равнодушными

Читать полностью

    Для того, чтобы купить однокомнатную квартиру по адресу: м. Купчино, Ленинградская ул., 2бк2, позвоните по телефону +7 (981) 146-66-89. Торопитесь! Объявление №30094322648 о продаже однокомнатной квартиры опубликовано Сегодня.

    Позвонить Написать
    16 200 000 Р197 900 $ или 171 000
    Агент
    +7 (981) 146-66-89
    Начать чат с агентом
    Похожие предложения
    2-к кв. Санкт-Петербург Витебский просп., 99к2 (55.6 м) - Фото 1
    2-к кв. Санкт-Петербург Витебский просп., 99к2 (55.6 м) - Фото 2
    2-комнатная квартира, общая площадь 55м², жилая 32м², кухня 9м²

    1704410 Идеальная двухкомнатная квартира в Московском районе в ЖК Квартет в 2х минутах ходьбы от метро Купчино.- Уютная квартира с качественным ремонтом.- Светлая гостиная с двумя окнами.- Спальня с выходом на застеклённый балкон.- Кухня с мебелью и...
    • 55 м²
    • 2-ком
    • 6/25 эт.
    • монолит
    15 900 000 Р
    Агент
    +7 (911) Показать номер
    Посмотреть контакты
    3-к кв. Санкт-Петербург Малая Балканская ул., 36К1 (75.3 м) - Фото 1
    3-к кв. Санкт-Петербург Малая Балканская ул., 36К1 (75.3 м) - Фото 2
    3-комнатная квартира, общая площадь 75м², жилая 45м², кухня 10м²

    Номер объявления: 21472 - назовите его оператору. В продаже просторная 3к кв с камином у м. КупчиноПланировка состоит из: кухни, трех изолированных комнат, раздельного санузла, лоджии.Квартира двухсторонняя, окна в тихий зеленый двор. Во дворе расположены...
    • 75 м²
    • 3-ком
    • 3/14 эт.
    • панельный
    15 000 000 Р
    Агент
    +7 (981) Показать номер
    Посмотреть контакты
    3-к кв. Санкт-Петербург, Санкт-Петербург, Пушкин Ляминский пер., 8 ... - Фото 1
    3-к кв. Санкт-Петербург, Санкт-Петербург, Пушкин Ляминский пер., 8 ... - Фото 2
    3-комнатная квартира, общая площадь 75м², жилая 46м², кухня 10м²

    Продается уютная и просторная 3-комнатная квартира в историческом сердце Пушкина Расположение мечты: Всего 5 минут пешком до прекрасных парков и дворцов — Александровского и Екатерининского До железнодорожной станции Царское Село — 10 минут ходьбы,...
    • 75 м²
    • 3-ком
    • 1/5 эт.
    • кирпичный
    15 500 000 Р
    Агент
    +7 (981) Показать номер
    Посмотреть контакты
    3-к кв. Санкт-Петербург, Санкт-Петербург, Пушкин Саперная ул., 44к2 ... - Фото 1
    3-к кв. Санкт-Петербург, Санкт-Петербург, Пушкин Саперная ул., 44к2 ... - Фото 2
    3-комнатная квартира, общая площадь 77м², жилая 45м², кухня 9м²

    К продаже предлагается 3-х комнатная квартира в г.Пушкин на ул. Саперная д.44 к.2. Квартира расположена на 2-м этаже 4-х этажного кирпичного дома 2004 года постройки. Общая площадь 77 кв м. Комнаты изолированные 14,7 кв. м, 12 кв. м и 18,4 кв.м. Кухня...
    • 77 м²
    • 3-ком
    • 2/4 эт.
    16 750 000 Р
    Агент
    +7 (911) Показать номер
    Посмотреть контакты
    1-комнатная квартира: Пушкин, Ленинградская улица, 2Бк2 (51.6 м) - Фото 1
    1-комнатная квартира: Пушкин, Ленинградская улица, 2Бк2 (51.6 м) - Фото 2
    1-комнатная квартира, общая площадь 51м², жилая 22м², кухня 13м²

    Уникальная квартира в центре города Дом в окружении дворцов и парков. До ж/д станции Царское село 5 минут пешком. Закрытая территория. Камерный ЖК в классическом стиле • ХАРАКТЕРИСТИКА ДОМА, КВАРТИРЫ:• Теплый современный кирпичный дом в классическом стиле....
    • 51 м²
    • 1-ком
    • 3/4 эт.
    16 500 000 Р
    Агент
    +7 (931) Показать номер
    Посмотреть контакты

    Не нашли подходящего объявления?

    Оставьте заявку, и наши риэлторы подберут квартиру в районе Санкт-Петербурга

    (0)