Россия, Санкт-Петербург, 1-й Предпортовый проезд, 1
9 300 000 Р 114 700 $ или 100 400

Информация о квартире

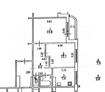
27 м2
Площадь
17 м2
Жилая
5 м2
Кухня
студия
Комнат
1
Этаж
12
Этажность
Развернуть
Агент
+7 (911) 031-16-28
Начать чат с агентом

Студия Санкт-Петербург 1-й Предпортовый проезд, 1 (27.08 м)

Продается квартира-студия в современном жилом комплексе Сенат в Московском районеКвартира расположена на высоком первом этаже двенадцатиэтажного дома, окна выходят во двор. Высота потолков 2,75 метра создает ощущение простора. Классическая планировка с функциональным зонированием позволяет рационально использовать каждый метр. В прихожей есть место под вместительный шкаф. Современные просторные холлы, в которые хочется возвращаться, выход на две стороны. Благоустроенная территория во дворе и вокруг дома.Ключевое преимущество — готовность к заселению: выполнена качественная чистовая отделка. В нее входят кварцвиниловые полы, натяжные парящие потолки, стены под покраску, современная сантехника и теплый пол в ванной комнате, остекленный балкон с керамогранитом, система Умный Дом. Есть дозаказ мебели. Без обременений. Жилой комплекс предлагает приватную инфраструктуру: охраняемая закрытая территория, двор без машин, променад с зонами отдыха, зимний каток, детские площадки и инновационный лицей во дворе. Район отличается развитой инфраструктурой и отличной транспортной доступностью: две станции метро, Московская и Ленинский проспект , находится в 20 минутах ходьбы. Остались вопросы? Звоните и записывайтесь на показ Для клиентов нашей компании помощь в одобрении ипотеки со сниженными ставками 12,9 , а также полное юридическое сопровождение сделки и сертификат Гарантия безопасной сделки Код пользователя: 157321Номер в базе:

Читать полностью

    Для того, чтобы купить студию по адресу: м. Московская, 1-й Предпортовый проезд, 1, позвоните по телефону +7 (911) 031-16-28. Торопитесь! Объявление №30094286354 о продаже студии опубликовано Сегодня.

    Позвонить Написать
    9 300 000 Р114 700 $ или 100 400
    Агент
    +7 (911) 031-16-28
    Начать чат с агентом
    Похожие предложения
    Студия Санкт-Петербург 1-й Предпортовый проезд, 1 (25.8 м) - Фото 1
    Студия Санкт-Петербург 1-й Предпортовый проезд, 1 (25.8 м) - Фото 2
    студия, общая площадь 25м², жилая 18м²

    Продается просторная студия в жилом комплексе Сенат в престижном Московском районе. До метро можно добраться пешком всего за 20 минут. Удобная, классическая, функциональная европланировка, просторная прихожая 4.12 м. Общая площадь студии...
    • 25 м²
    • студия-ком
    • 10/12 эт.
    9 400 000 Р
    Агент
    +7 (981) Показать номер
    Посмотреть контакты
    Квартира-студия: Санкт-Петербург, 1-й Предпортовый проезд, 1 (27.08 м) - Фото 1
    Квартира-студия: Санкт-Петербург, 1-й Предпортовый проезд, 1 (27.08 м) - Фото 2
    студия, общая площадь 27м², жилая 19м²

    Продается квартира-студия в современном жилом комплексе Сенат в Московском районеКвартира расположена на высоком первом этаже двенадцатиэтажного дома, окна выходят во двор. Высота потолков 2,75 метра создает ощущение простора. Классическая планировка...
    • 27 м²
    • студия-ком
    • 1/12 эт.
    9 300 000 Р
    Агент
    +7 (931) Показать номер
    Посмотреть контакты
    Студия Санкт-Петербург ул. Типанова, 23с1 (22.4 м) - Фото 1
    Студия Санкт-Петербург ул. Типанова, 23с1 (22.4 м) - Фото 2
    студия, общая площадь 22м², жилая 15м², кухня 1м²

    Арт.. Продается дизайнерская студия 22,4 м в престижном жилом комплексе бизнес-класса Питер О квартире и ремонте: В квартире выполнен качественный дизайнерский ремонт, который делался для себя с использованием только хороших, проверенных материалов....
    • 22 м²
    • студия-ком
    • 7/24 эт.
    9 200 000 Р
    Агент
    +7 (911) Показать номер
    Посмотреть контакты
    2-к кв. Санкт-Петербург 5-й Предпортовый проезд, 4К1 (47.5 м) - Фото 1
    2-к кв. Санкт-Петербург 5-й Предпортовый проезд, 4К1 (47.5 м) - Фото 2
    2-комнатная квартира, общая площадь 47м², жилая 27м², кухня 7м²

    Просторная 2-комнатная квартира у метро в зелёном районе - идеальный вариант для семьи Не упустите уникальный шанс стать обладателем светлой, просторной и очень теплой двухкомнатной квартиры в крупнопанельном доме 137 серии Расположенная на удобном...
    • 47 м²
    • 2-ком
    • 3/12 эт.
    • панельный
    9 350 000 Р
    Агент
    +7 (981) Показать номер
    Посмотреть контакты
    2-к кв. Санкт-Петербург ул. Орджоникидзе, 14 (43.3 м) - Фото 1
    2-к кв. Санкт-Петербург ул. Орджоникидзе, 14 (43.3 м) - Фото 2
    2-комнатная квартира, общая площадь 43м², жилая 26м², кухня 6м²

    *** OБPAТИТE ВHИМАНИЕ Привлекательный вариант, успеете его купить. Одно из выгодных предложений на покупку Продаётся двухкомнатная квартира в 7 минутах пешком от станции метро Московская, в кирпичном доме, с косметическим ремонтом.О КВАРТИРЕ: В 2025...
    • 43 м²
    • 2-ком
    • 3/5 эт.
    • кирпичный
    9 299 000 Р
    Агент
    +7 (911) Показать номер
    Посмотреть контакты

    Не нашли подходящего объявления?

    Оставьте заявку, и наши риэлторы подберут квартиру в районе Санкт-Петербурга

    (0)