4 840 000 Р 59 090 $ или 51 960

Информация о квартире

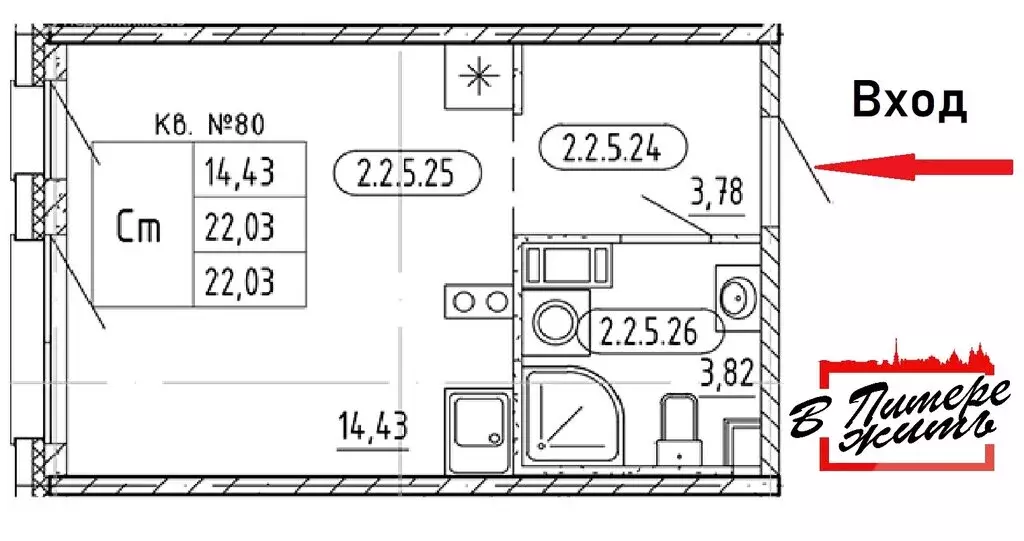
30 м2
Площадь
17 м2
Жилая
3 м2
Кухня
студия
Комнат
15
Этаж
23
Этажность

Дополнительная информация

Тип дома
монолит
Развернуть
Агент
+7 (911) 147-17-95
Начать чат с агентом

Студия Санкт-Петербург дор. Муринская, 64 (30.5 м)

Продается уютная студия 30,5 м, 15 этаж, с косметическим ремонтом в монолитном доме 2015 года постройки, по адресу Муринская дорога, 64.Развитый район, перспективный, остановка автобусов напротив дома, до метро Гражданский проспект 15 минут, 30 минут до Ладожской. Район новый, детские сады, школы, новая современная поликлиника, магазины, все в пешей доступности. Во дворе наземная парковка, всегда можно поставить машину, места есть. Квартира очень светлая, тёплая, уютная. Для студии очень просторная с отличной планировкой. Лоджия с видом во двор. Большая комната, санузел и коридор. В квартире есть все для проживания, мебель, кухня, холодильник, стиральная машина, шкаф купе. Готовы к продаже, можно в ипотеку, без обременения, маткапитал не использовался. По всем вопросам отвечу, покажу квартиру.

Читать полностью

    Для того, чтобы купить студию по адресу: м. Гражданский проспект, дор. Муринская, 64, позвоните по телефону +7 (911) 147-17-95. Торопитесь! Объявление №30094277864 о продаже студии опубликовано 2 дня назад.

    Позвонить Написать
    4 840 000 Р59 090 $ или 51 960
    Агент
    +7 (911) 147-17-95
    Начать чат с агентом
    Похожие предложения
    Студия Санкт-Петербург ул. Отважных, 10 (23.6 м) - Фото 1
    Студия Санкт-Петербург ул. Отважных, 10 (23.6 м) - Фото 2
    студия, общая площадь 23м²

    Арт.Продаётся двухуровневая квартира-студия (апартаменты комфорт класса), расположенная в Красносельском районе, в новом доме на 4-ом этаже, шестиэтажного дома.Только через наше АГЕНТСТВО возможна ипотека от 11,9 на вторичный рынок.ЛОКАЦИЯ И ИНФРАСТРУКТУРА:Объект...
    • 23 м²
    • студия-ком
    • 4/6 эт.
    • кирпичный
    4 700 000 Р
    Агент
    +7 (911) Показать номер
    Посмотреть контакты
    Квартира-студия: Санкт-Петербург, Старорусская улица, 5/3 (23.4 м) - Фото 1
    Квартира-студия: Санкт-Петербург, Старорусская улица, 5/3 (23.4 м) - Фото 2
    студия, общая площадь 23м²

    Готовый бизнес в центре Студия с личным санузлом (Дом Полежаева) ПРOДАЖA БEЗ KOMИССИИ ОДОБРЕНИE ИПOTЕКИ B ПOДAРOK ЮPИДИЧECКOЕ СOПPOBОЖДEHИЕ BOЗМОЖEH ТРЕЙД-ИH Идеальный объект для инвестиций или первого жилья в Санкт-Петербурге. Спрос на аренду в этой...
    • 23 м²
    • студия-ком
    • 5/7 эт.
    4 700 000 Р
    Агент
    +7 (913) Показать номер
    Посмотреть контакты
    1-к кв. Санкт-Петербург дор. Муринская, 8к1 (27.2 м) - Фото 1
    1-к кв. Санкт-Петербург дор. Муринская, 8к1 (27.2 м) - Фото 2
    1-комнатная квартира, общая площадь 27м², жилая 10м², кухня 9м²

    1706097 Продаётся современная однокомнатная квартира в жилом комплексе Цветной город . Идеальный вариант для первого шага в собственную недвижимость или выгодного инвестирования. Вам не придется ничего менять Комфортное и готовое для жизни пространство...
    • 27 м²
    • 1-ком
    • 5/25 эт.
    • панельный
    4 700 000 Р
    Агент
    +7 (911) Показать номер
    Посмотреть контакты
    Квартира-студия: Санкт-Петербург, Волхонское шоссе, 5к1 (22 м) - Фото 1
    Квартира-студия: Санкт-Петербург, Волхонское шоссе, 5к1 (22 м) - Фото 2
    студия, общая площадь 22м², жилая 14м²

    Продается квартира-студия в новом ЖК ПЛЮС ПУЛКОВСКИЙ в Московском районе Санкт-Петербурга. Быстро-развивающаяся инфраструктура. На первых этажах ЖК скоро откроются магазины, кафе, объекты социальной инфраструктуры. Хорошая транспортная доступность....
    • 22 м²
    • студия-ком
    • 5/5 эт.
    4 890 000 Р
    Агент
    +7 (905) Показать номер
    Посмотреть контакты
    3-к кв. Санкт-Петербург ул. Вавиловых, 11К4 (56.2 м) - Фото 1
    3-к кв. Санкт-Петербург ул. Вавиловых, 11К4 (56.2 м) - Фото 2
    3-комнатная квартира, общая площадь 56м², жилая 41м², кухня 6м²

    ID: 1916327Не упустите возможность приобрести КОМНАТЫ В ТРЁХ КОМНАТНОЙ КВАРТИРЕ по самой низкой цене в этом районе Метро в пешей доступности , вся инфраструктура возле дома В трёх комнатной квартире продаются по 1/4 три доли =3/4. Две комнаты...
    • 56 м²
    • 3-ком
    • 3/5 эт.
    • кирпичный
    4 800 000 Р
    Агент
    +7 (911) Показать номер
    Посмотреть контакты

    Не нашли подходящего объявления?

    Оставьте заявку, и наши риэлторы подберут квартиру в районе Санкт-Петербурга

    (0)