7 145 000 Р 91 840 $ или 78 740

Информация о квартире

22 м2
Площадь
студия
Комнат
2
Этаж
9
Этажность
Развернуть
Агент
+7 (911) 969-64-62
Начать чат с агентом

Квартира-студия: Санкт-Петербург, набережная Обводного канала, 169 (22 ...

456439Готовый бизнес в камерном квартале «Лермонтовский 54 в Санкт-Петербурге Ключевые особенности:• Студия 22,6 кв.м;• Отдельный кадастровый номер;• Высокие потолки 3 м;• Различный выбор балконов (открытый, лоджия или французский);• Чистовая отделка;• Нестандартные планировки;• Исторический отреставрированный лицей вместимостью более 1000 учащихся;• Развитая инфраструктура и жизнь в центре города О жилом комплексе.Камерный квартал «Лермонтовскийасположен в исторической части Санкт-Петербурга. До станции метро «Балтийская всего 5 минут пешком Проект стал победителем федеральной премии URBAN-2024 в номинации «Премьера года: квартал бизнес-класса в центре Петербурга со школой в здании XIX века .Особенности комплекса:• Патио на первых этажах, окружённые живой изгородью и забором, выходят в тихий двор-парк без машин и случайных прохожих. • Балконы со стеклянным ограждением «триплекс и прозрачными дверями.• Архитектурная подсветка подчёркивает эффектный облик квартала. • Система чиллер-фанкойл позволяет организовать работу климатических установок внутри здания, поэтому на фасадах не будет блоков кондиционеров. • Двор-парк с детскими площадками, зонами для спорта и отдыха. • Предусмотрены парковочные места, кладовые помещения и коммерческая недвижимость. • 2 минуты на автомобиле до Московского проспекта. 18.• 20 минут пешком до метро «Фрунзенская . 19.Остались еще вопросы? Звоните, с радостью на них ответим

Читать полностью

    Для того, чтобы купить студию по адресу: м. Балтийская, Обводного Канала наб., 169, позвоните по телефону +7 (911) 969-64-62. Торопитесь! Объявление №30093999448 о продаже студии опубликовано Вчера.

    Позвонить Написать
    7 145 000 Р91 840 $ или 78 740
    Агент
    +7 (911) 969-64-62
    Начать чат с агентом
    Похожие предложения
    Квартира-студия: Санкт-Петербург, набережная Обводного канала, 169 (22 ... - Фото 1
    Квартира-студия: Санкт-Петербург, набережная Обводного канала, 169 (22 ... - Фото 2
    студия, общая площадь 22м²

    456429Готовый бизнес в камерном квартале «Лермонтовский 54 в Санкт-Петербурге Ключевые особенности:• Студия 22,7 кв.м;• Отдельный кадастровый номер;• Высокие потолки 3 м;• Различный выбор балконов (открытый, лоджия или французский);• Чистовая отделка;•...
    • 22 м²
    • студия-ком
    • 2/9 эт.
    7 180 000 Р
    Агент
    +7 (911) Показать номер
    Посмотреть контакты
    Квартира-студия: Санкт-Петербург, набережная Обводного канала, 169 (23 ... - Фото 1
    Квартира-студия: Санкт-Петербург, набережная Обводного канала, 169 (23 ... - Фото 2
    студия, общая площадь 23м²

    456425Готовый бизнес в камерном квартале «Лермонтовский 54 в Санкт-Петербурге Ключевые особенности:• Студия 23,5 кв.м;• Отдельный кадастровый номер;• Высокие потолки 3 м;• Различный выбор балконов (открытый, лоджия или французский);• Чистовая отделка;•...
    • 23 м²
    • студия-ком
    • 2/9 эт.
    7 175 000 Р
    Агент
    +7 (911) Показать номер
    Посмотреть контакты
    1-к кв. Санкт-Петербург остров Канонерский, 8 (39.6 м) - Фото 1
    1-к кв. Санкт-Петербург остров Канонерский, 8 (39.6 м) - Фото 2
    1-комнатная квартира, общая площадь 39м², жилая 17м², кухня 7м²

    1-92655 Уютная атмосфера Канонерского острова, свобода от городских запретов Дом кирпичный - строился для моряков дальнего плавания, перекрытия железобетонные,год постройки 1989 г.Квартира - необычной привлекательной планировки. Двухуровневая на 2-м...
    • 39 м²
    • 1-ком
    • 2/16 эт.
    • кирпичный
    7 200 000 Р
    Агент
    +7 (981) Показать номер
    Посмотреть контакты
    2-комнатная квартира: Санкт-Петербург, Витебский проспект, 61к1 (48.6 ... - Фото 1
    2-комнатная квартира: Санкт-Петербург, Витебский проспект, 61к1 (48.6 ... - Фото 2
    2-комнатная квартира, общая площадь 48м², жилая 33м², кухня 5м²

    Агентам без клиентов не звонить Продаётся двухкомнатная квартира площадью 48.6 квадратных метров на третьем этаже пятиэтажного крупнопанельного дома. Дом построен в 1965 году и окружён развитой инфраструктурой: рядом находятся школы, детские сады, поликлиника,...
    • 48 м²
    • 2-ком
    • 3/5 эт.
    7 000 000 Р
    Агент
    +7 (983) Показать номер
    Посмотреть контакты
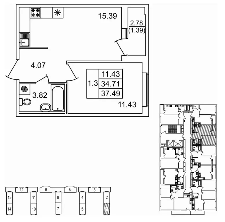
    1-к кв. Санкт-Петербург пос. Парголово, дор. Михайловская, 14к1 (37.49 ... - Фото 1
    1-к кв. Санкт-Петербург пос. Парголово, дор. Михайловская, 14к1 (37.49 ... - Фото 2
    1-комнатная квартира, общая площадь 37м², жилая 11м², кухня 15м²

    В продаже просторная евродвушка с отличной планировкой. Квартира светлая, окна выходят на восточную сторону. Предлагаем вариант с новой отделкой, ранее без проживания. Закрытый двор без машин, оборудована современная детская площадка. В районе...
    • 37 м²
    • 1-ком
    • 6/17 эт.
    • монолит
    7 200 000 Р
    Агент
    +7 (911) Показать номер
    Посмотреть контакты

    Не нашли подходящего объявления?

    Оставьте заявку, и наши риэлторы подберут квартиру в районе Санкт-Петербурга

    (0)