14 300 000 Р 182 900 $ или 157 500

Информация о квартире

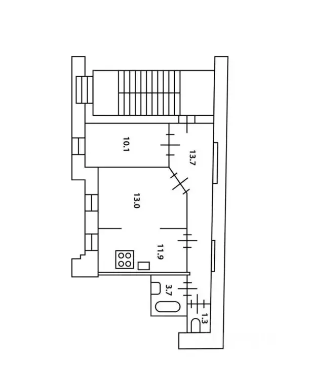
49 м2
Площадь
35 м2
Жилая
5 м2
Кухня
2
Комнаты
5
Этаж
5
Этажность
Развернуть
Агент
+7 (981) 818-08-87
Начать чат с агентом

2-к кв. Санкт-Петербург Лодейнопольская ул., 2 (49.4 м)

В Петроградском районе Санкт-Петербурга продается двухкомнатная квартира площадью 49,4 кв.м. Дом кирпичный, 1967 года постройки, перекрытия дома железобетонные. Квартира светлая, теплая, окна выходят на тихий и зеленый двор. Комнаты смежные, правильной формы (18,6 кв.м. + 17,3 кв.м.). В одной из комнат (17,3 кв.м.) два окна и выход на балкон 2,4 кв.м. Кухня правильной формы 5,3 кв.м. Санузел раздельный (ванная комната 2,3 кв.м., туалет 1 кв.м.). Коридор 4,4 кв.м. Во всей квартире произведена замена окон на стеклопакеты. Покупателю остается вся мебель и бытовая техника. Инфраструктура очень развита (пешая близость к метро, школы, детские сады, остановки общественного транспорта, необходимые магазины). Прямая продажа, владение в одной семье более 20 лет, полная стоимость в договоре купли-продажи, все документы собраны. Перепланировок в квартире нет, никто не прописан.

Читать полностью

    Для того, чтобы купить двухкомнатную квартиру по адресу: м. Чкаловская, ул. Лодейнопольская, 2, позвоните по телефону +7 (981) 818-08-87. Торопитесь! Объявление №30093998853 о продаже двухкомнатной квартиры опубликовано Сегодня.

    Позвонить Написать
    14 300 000 Р182 900 $ или 157 500
    Агент
    +7 (981) 818-08-87
    Начать чат с агентом
    Похожие предложения
    2-к кв. Санкт-Петербург ул. Красного Курсанта, 51 (45.0 м) - Фото 1
    2-к кв. Санкт-Петербург ул. Красного Курсанта, 51 (45.0 м) - Фото 2
    2-комнатная квартира, общая площадь 45м², жилая 23м², кухня 7м²

    Добрый день Продаём СВЕТЛУЮ и УЮТНУЮ ДВУХКОМНАТНУЮ квартиру с ХОРОШИМ ВИДОМ, в самом сердце Санкт-Петербурга, ДОМ ПОСЛЕ КАПИТАЛЬНОГО РЕМОНТА. Продажа БЕЗ КОМИССИИ Кстати, если Вы сейчас продаёте свою квартиру, то мы можем сразу КУПИТЬ её Описание...
    • 45 м²
    • 2-ком
    • 3/6 эт.
    13 499 999 Р
    Агент
    +7 (981) Показать номер
    Посмотреть контакты
    2-комнатная квартира: Санкт-Петербург, улица Красного Курсанта, 51 (45 ... - Фото 1
    2-комнатная квартира: Санкт-Петербург, улица Красного Курсанта, 51 (45 ... - Фото 2
    2-комнатная квартира, общая площадь 45м², жилая 23м², кухня 7м²

    Добрый день Продаём СВЕТЛУЮ и УЮТНУЮ ДВУХКОМНАТНУЮ квартиру с ХОРОШИМ ВИДОМ, в самом сердце Санкт-Петербурга, ДОМ ПОСЛЕ КАПИТАЛЬНОГО РЕМОНТА. Описание и фотографии соответствуют действительности.ПРО ДОКУМЕНТЫ: У квартиры ДВА СОВЕРШЕННОЛЕТНИХ собственника...
    • 45 м²
    • 2-ком
    • 3/6 эт.
    13 499 999 Р
    Агент
    +7 (931) Показать номер
    Посмотреть контакты
    2-к кв. Санкт-Петербург Пионерская ул., 65 (49.1 м) - Фото 1
    2-к кв. Санкт-Петербург Пионерская ул., 65 (49.1 м) - Фото 2
    2-комнатная квартира, общая площадь 49м², жилая 34м², кухня 10м²

    Эксклюзивное предложение в сердце Петроградки: квартира с отдельным входом и безграничным потенциалом Двухкомнатная квартира расположена на Петроградской стороне. Подходит и для жилья, и для реализации бизнес-проекта: салона красоты, швейной мастерской,...
    • 49 м²
    • 2-ком
    • 1/4 эт.
    • кирпичный
    13 900 000 Р
    Агент
    +7 (981) Показать номер
    Посмотреть контакты
    Студия Санкт-Петербург ул. Даля, 10Б (29.5 м) - Фото 1
    Студия Санкт-Петербург ул. Даля, 10Б (29.5 м) - Фото 2
    студия, общая площадь 29м², жилая 13м², кухня 3м²

    Покупай сейчас - плати потом На данный объект доступна рассрочка на выгодных условиях Авеню на Карповке : Ваш новый уровень бизнеса и инвестиций в сердце Петроградского районаПредставляем вашему вниманию Авеню на Карповке — многофункциональный комплекс,...
    • 29 м²
    • студия-ком
    • 2/8 эт.
    • кирпичный
    13 500 000 Р
    Агент
    +7 (981) Показать номер
    Посмотреть контакты
    2-к кв. Санкт-Петербург ул. Большая Зеленина, 5 (53.7 м) - Фото 1
    2-к кв. Санкт-Петербург ул. Большая Зеленина, 5 (53.7 м) - Фото 2
    2-комнатная квартира, общая площадь 53м², жилая 23м², кухня 10м²

    ID: 1916135Продаётся компактная и уютная квартира в доме с капитальным ремонтом на Петроградской стороне в Санкт-Петербурге, рядом с метро Чкаловская . Вход в дом расположен со двора через арку, чистая пологая лестница, 5-этаж 6-ти этажного дома без...
    • 53 м²
    • 2-ком
    • 5/6 эт.
    • кирпичный
    14 950 000 Р
    Агент
    +7 (911) Показать номер
    Посмотреть контакты

    Не нашли подходящего объявления?

    Оставьте заявку, и наши риэлторы подберут квартиру в районе Санкт-Петербурга

    (0)