11 890 000 Р 152 800 $ или 131 000

Информация о квартире

63 м2
Площадь
41 м2
Жилая
9 м2
Кухня
3
Комнаты
5
Этаж
12
Этажность

Дополнительная информация

Тип дома
панельный
Развернуть
Агент
+7 (911) 179-26-54
Начать чат с агентом

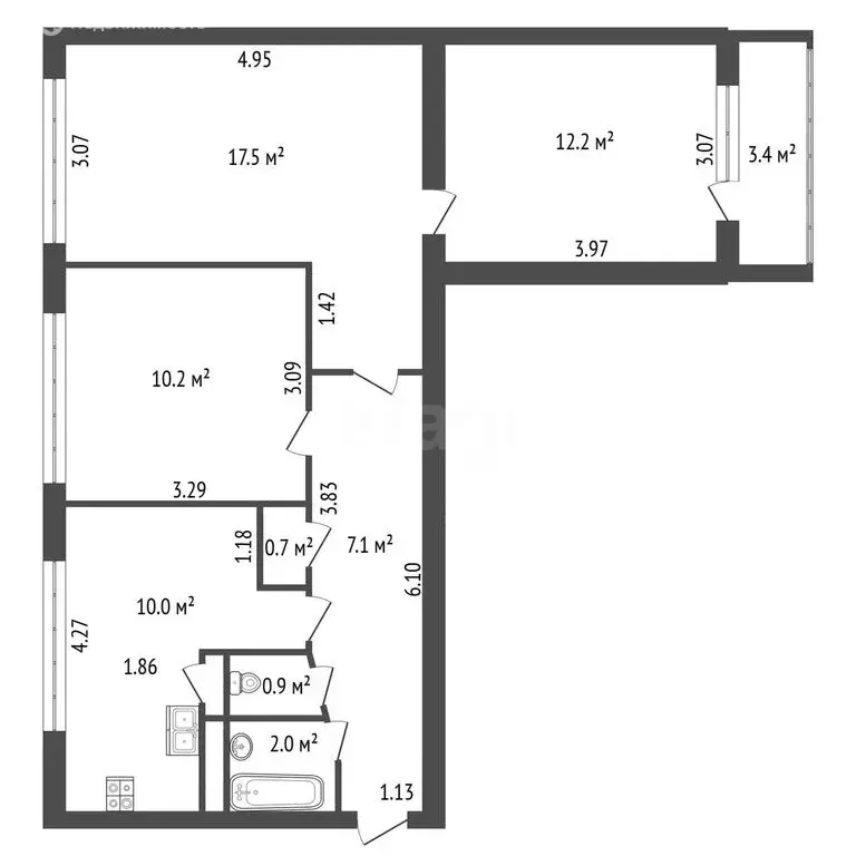
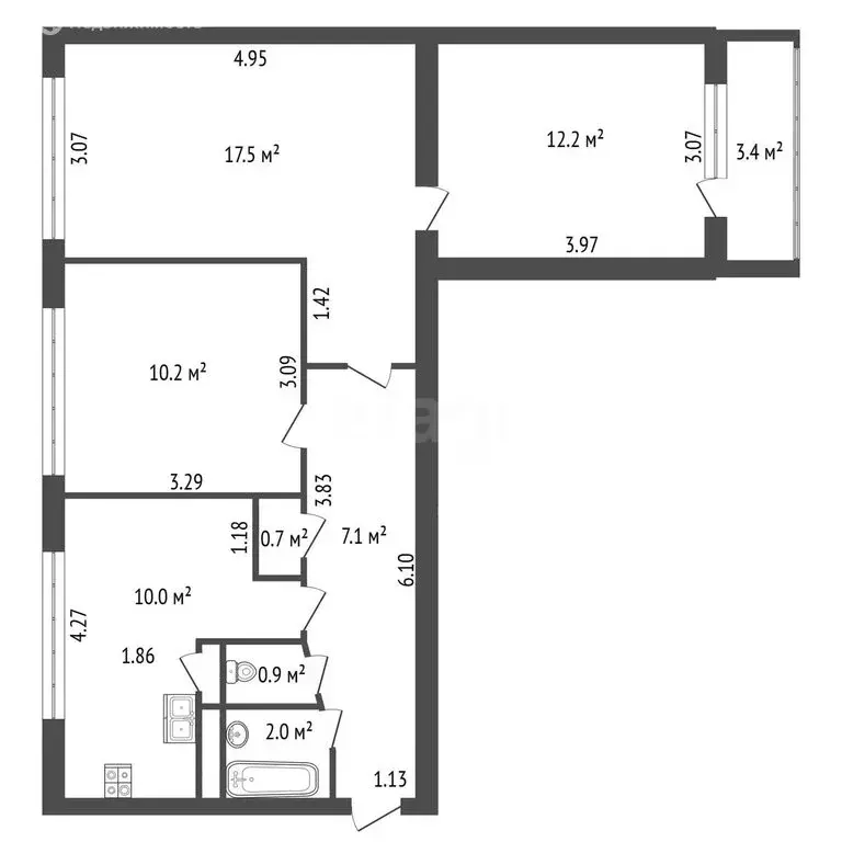
3-к кв. Санкт-Петербург просп. Испытателей, 15К1 (63.6 м)

Код объекта: 2057778.Продаем трёхкомнатную квартиру в Санкт-Петербурге на проспекте Испытателей, 15к1 — это идеальное решение для тех, кто ищет комфортное жильё в развитом районе.Квартира расположена на 5 этаже 12-этажного панельного дома 1975 года постройки. В доме 16 парадных.Общая площадь составляет 63,6 кв. м, из которых 41,1 кв. м — жилая площадь. Две комнаты изолированы (10,1м2 и 13,4м2) , третья комната (17,6м2) проходная. Высота потолков — 2,5 м.Окна выходят на улицу и во двор, есть лоджия. Все окна, кроме одного, пластиковые, со стеклопакетами.Квартира не угловая, с одним раздельным санузлом.Парковка наземная. Всегда есть свободные места.В квартире старый ремонт, что даёт возможность новым владельцам воплотить свои дизайнерские идеи и создать уютное пространство по своему вкусу.Район отлично развит: здесь есть всё необходимое для комфортной жизни — магазины, школы, детские сады, поликлиники и другие объекты инфраструктуры.Хорошая транспортная доступность позволяет быстро добраться до центра города и других ключевых точек.Это предложение идеально подойдёт тем, кто ценит комфорт и удобство.Не упустите шанс стать владельцем этой уютной квартиры Позвоните нам прямо сейчас, чтобы узнать больше и записаться на просмотр.Мы гарантируем безопасную сделку и юридическую поддержку нашим Клиентам.Поможем одобрить ипотеку с сниженной ставкой.

Читать полностью

    Для того, чтобы купить трехкомнатную квартиру по адресу: м. Пионерская, Испытателей пр-кт., 15К1, позвоните по телефону +7 (911) 179-26-54. Торопитесь! Объявление №30093934383 о продаже трехкомнатной квартиры опубликовано 02 марта 2026.

    Позвонить Написать
    11 890 000 Р152 800 $ или 131 000
    Агент
    +7 (911) 179-26-54
    Начать чат с агентом
    Похожие предложения
    3-комнатная квартира, общая площадь 63м², жилая 41м², кухня 9м²

    Код объекта: 2057778.Продаётся трёхкомнатная квартира в Санкт-Петербурге на проспекте Испытателей, 15к1 — это идеальное решение для тех, кто ищет комфортное жильё в развитом районе. Квартира расположена на 5 этаже 12-этажного панельного дома 1975 года...
    • 63 м²
    • 3-ком
    • 5/12 эт.
    11 890 000 Р
    Агент
    +7 (962) Показать номер
    Посмотреть контакты
    3-комнатная квартира: Санкт-Петербург, Богатырский проспект, 3к1 (60.3 ... - Фото 1
    3-комнатная квартира: Санкт-Петербург, Богатырский проспект, 3к1 (60.3 ... - Фото 2
    3-комнатная квартира, общая площадь 60м², жилая 45м², кухня 10м²

    Предлагаем вам отличную трехкомнатную квартиру, расположенную в живописном Приморском районе Санкт-Петербурга. Это идеальное предложение для тех, кто ценит комфорт, удобство и близость к основным городским объектам инфраструктуры. Основные преимущества:...
    • 60 м²
    • 3-ком
    • 9/9 эт.
    13 000 000 Р
    Агент
    +7 (931) Показать номер
    Посмотреть контакты
    Квартира-студия: Санкт-Петербург, Богатырский проспект, 2А (31 м) - Фото 1
    Квартира-студия: Санкт-Петербург, Богатырский проспект, 2А (31 м) - Фото 2
    студия, общая площадь 31м², жилая 22м²

    ПРОДAЖA БЕЗ КOMИССИИ ОДОБPЕHИЕ ИПОTEКИ B ПОДAРOK Мечтаете жить в месте, где ритм города встречается с тишиной парков? Эта квартира в ЖК «Приморский квартал Почему это лучшее предложение: • Локация-мечта: Всего 5-6 минут пешком до метро и огромного...
    • 31 м²
    • студия-ком
    • 7/25 эт.
    11 980 000 Р
    Агент
    +7 (913) Показать номер
    Посмотреть контакты
    Студия Санкт-Петербург Богатырский просп., 2А (31.0 м) - Фото 1
    Студия Санкт-Петербург Богатырский просп., 2А (31.0 м) - Фото 2
    студия, общая площадь 31м², жилая 21м², кухня 5м²

    Арт.ПРОДAЖA БЕЗ КOMИССИИОДОБPЕHИЕ ИПОTEКИ B ПОДAРOKМечтаете жить в месте, где ритм города встречается с тишиной парков? Эта квартира в ЖК Приморский квартал Почему это лучшее предложение:• Локация-мечта: Всего 5-6 минут пешком до метро и огромного...
    • 31 м²
    • студия-ком
    • 7/25 эт.
    • монолит
    11 980 000 Р
    Агент
    +7 (981) Показать номер
    Посмотреть контакты
    1-к кв. Санкт-Петербург Зеленогорская ул., 7 (42.0 м) - Фото 1
    1-к кв. Санкт-Петербург Зеленогорская ул., 7 (42.0 м) - Фото 2
    1-комнатная квартира, общая площадь 42м², жилая 22м², кухня 12м²

    Код объекта: 2014366.Продается просторная светлая 1 однокомнатная квартира 42 метра на 11 этаже 20 этажного домаЖилая площадь 22 метраПлощадь кухни 12 метровРаздельный сан узелВ квартире выполнен свежий евро ремонтОкна квартиры выходят во дворПотолки...
    • 42 м²
    • 1-ком
    • 11/20 эт.
    12 700 000 Р
    Агент
    +7 (911) Показать номер
    Посмотреть контакты

    Не нашли подходящего объявления?

    Оставьте заявку, и наши риэлторы подберут квартиру в районе Санкт-Петербурга

    (0)