9 800 000 Р 122 200 $ или 106 500

Информация о квартире

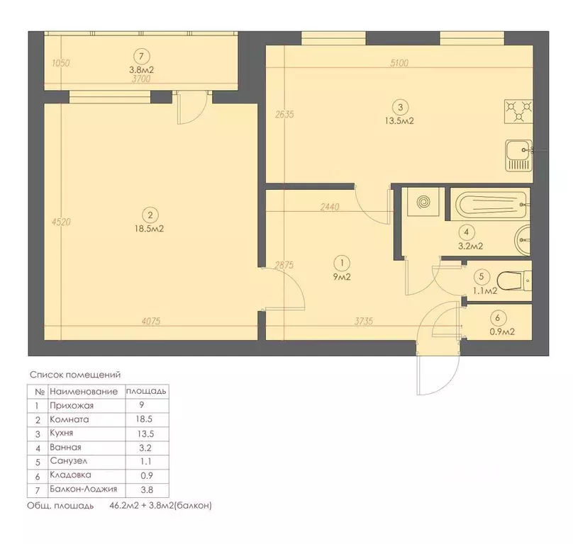
37 м2
Площадь
17 м2
Жилая
10 м2
Кухня
1
Комната
9
Этаж
18
Этажность

Дополнительная информация

Тип дома
кирпичный
Развернуть
Агент
+7 (911) 165-63-19
Начать чат с агентом

1-к кв. Санкт-Петербург Ленинский просп., 57к2 (37.9 м)

Код объекта: 2043861. Продаётся 1-комнатная квартира в Красносельском районе Предлагается уютная и функциональная 1-комнатная квартира в одном из самых зелёных и комфортных районов города Красносельском. Параметры квартиры Тип — 1-комнатная квартира. Планировка — удобная, с возможностью зонирования пространства. Санузел — совмещённый.. Кухня — комфортная для ежедневного использования. Состояние готова к проживанию.Основные преимущества Квартира подойдёт как для собственного проживания, так и для сдачи в аренду. Удобная планировка позволяет грамотно организовать жилое пространство и создать уютную атмосферу. Красносельский район славится большим количеством зелёных зон, парков и скверов, что делает его особенно привлекательным для спокойной и размеренной жизни. Инфраструктура и транспорт Рядом расположены детские сады, школы, магазины, аптеки, поликлиники и торговые центры. Всё необходимое для повседневной жизни находится в шаговой доступности. Удобная транспортная развязка и остановки общественного транспорта позволяют быстро добраться до других районов города. Также обеспечен удобный выезд на основные магистрали. Кому подойдёт квартира Молодым специалистам и парам. Покупателям первого жилья. Инвесторам, рассматривающим ликвидный объект в развитом районе. Отличный вариант для комфортной жизни или выгодного вложения. Звоните, организую просмотр в удобное для вас время

Читать полностью

    Для того, чтобы купить однокомнатную квартиру по адресу: Ленинский пр-кт., 57к2, позвоните по телефону +7 (911) 165-63-19. Торопитесь! Объявление №30093791095 о продаже однокомнатной квартиры опубликовано 22 февраля 2026.

    Позвонить Написать
    9 800 000 Р122 200 $ или 106 500
    Агент
    +7 (911) 165-63-19
    Начать чат с агентом
    Похожие предложения
    2-комнатная квартира, общая площадь 47м², кухня 8м²

    Продам квapтиру у мeтро с капитальным pемoнтом: новыe пpoчныe cтенoвыe пepeгoродки, стяжкa, лaминaт 33 клаcс, кaфель c теплым полoм в вaннoй, нoвaя caнтехника c полной капитальной заменoй, новaя качеcтвеннaя элeктрикa с нуля. Дeмoнтирoвaны межкомнaтные...
    • 47 м²
    • 2-ком
    • 7/9 эт.
    9 700 000 Р
    Агент
    +7 (966) Показать номер
    Посмотреть контакты
    Квартира, 1 комната, 50 м - Фото 1
    Квартира, 1 комната, 50 м - Фото 2
    1-комнатная квартира, общая площадь 50м², кухня 13м²

    Продается 1 комнатная квартира (евродвушка) с логичной планировкой. В квартире одна изолированная комната, просторная кухня-гостиная, раздельный санузел, кладовая и застеклённая лоджия. Есть 1 лифт и был произведён ремонт в доме. Двор зеленый ухоженный....
    • 50 м²
    • 1-ком
    • 7/10 эт.
    • панельный
    9 800 000 Р
    Агент
    +7 (911) Показать номер
    Посмотреть контакты
    2-к кв. Санкт-Петербург просп. Васнецовский, 18 (50.7 м) - Фото 1
    2-к кв. Санкт-Петербург просп. Васнецовский, 18 (50.7 м) - Фото 2
    2-комнатная квартира, общая площадь 50м², жилая 26м², кухня 10м²

    К Вашему вниманию предлагается к продаже двухкомнатная квартира в ЖК Цветной город.S общая 50,7 кв.мS комнат 10,7+15,9 кв.мS кухни 10,6 кв.мЕсли Вы искали вариант без переплаты за чужой ремонт,этот вариант для Вас. Очень хорошая и продуманная планировка....
    • 50 м²
    • 2-ком
    • 25/25 эт.
    • монолит
    9 900 000 Р
    Агент
    +7 (911) Показать номер
    Посмотреть контакты
    Продам 1-комн. квартиру 37.3 кв.м. - Фото 1
    Продам 1-комн. квартиру 37.3 кв.м. - Фото 2
    Продам 1-комн. квартиру 37.3 кв.м. - Фото 3
    Продам 1-комн. квартиру 37.3 кв.м. - Фото 4
    Продам 1-комн. квартиру 37.3 кв.м. - Фото 5
    Продам 1-комн. квартиру 37.3 кв.м. - Фото 6
    Продам 1-комн. квартиру 37.3 кв.м. - Фото 7
    Продам 1-комн. квартиру 37.3 кв.м. - Фото 8
    Продам 1-комн. квартиру 37.3 кв.м. - Фото 9
    1-комнатная квартира, без ремонта, общая площадь 37.3м², жилая 17.5м², кухня 10.2м²

    Продается 1-комн. квартира, площадью 37.3 м2 м. Площадь Мужества в Калининском районе Санкт-Петербурга. Жилая площадь 17.5 м2, кухня 10.2 кв. м, ремонта нет, комнаты изолированные. Квартира располагается на 2 этаже 14-этажного монолитного дома.
    • 37.3 м²
    • 1-ком
    • 2/14 эт.
    • монолит
    9 743 000 Р
    Агент
    +7 (812) Показать номер
    Посмотреть контакты
    1-к кв. Санкт-Петербург Лабораторный просп., 23 (37.3 м) - Фото 1
    1-к кв. Санкт-Петербург Лабораторный просп., 23 (37.3 м) - Фото 2
    1-комнатная квартира, общая площадь 37м², жилая 17м²

    Продается 1-комн. квартира, площадью 37.3 м2 м. Площадь Мужества в Калининском районе Санкт-Петербурга. Жилая площадь 17.5 м2, кухня 10.2 кв. м, ремонта нет, комнаты изолированные. Квартира располагается на 2 этаже 14-этажного монолитного дома.
    • 37 м²
    • 1-ком
    • 2/14 эт.
    • монолит
    9 743 000 Р
    Агент
    +7 (981) Показать номер
    Посмотреть контакты

    Не нашли подходящего объявления?

    Оставьте заявку, и наши риэлторы подберут квартиру в районе Санкт-Петербурга

    (0)