25 552 940 Р 331 600 $ или 280 700

Информация о квартире

88 м2
Площадь
42 м2
Жилая
24 м2
Кухня
3
Комнаты
7
Этаж
10
Этажность
Развернуть
Агент
+7 (911) 083-01-04
Начать чат с агентом

3-комнатная квартира: Санкт-Петербург, Парашютная улица, 79к1 (88.1 м)

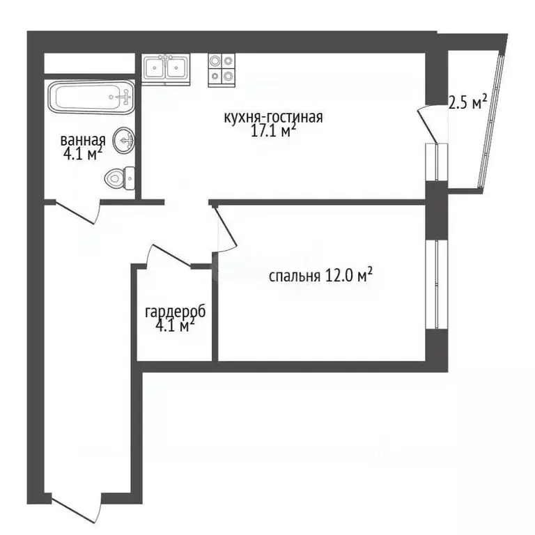
Apт.2411267. Успейте забронировать на этих условиях Предложение ограничено Стоимость квартиры указана со скидкой, ваша экономия составит 3,832,941 RUB. По всем вопросам звоните в офис продаж, наши менеджеры вам все расскажут Просторная 3-комн. квартира в ЖК VEREN NEXT Шуваловский на 7 этаже. Квартира без отделки, полностью готова к ремонту. Общая площадь: 88.1 кв.м., жилая: 42.88 кв.м., площадь просторной куxни-гостиной: 24.15 кв.м. Квартира - распашонка, без проходных комнат, окна выходят на paзные стороны дома. В квартире одна лоджия, два совмещенных санузла. Высота потолков 2.8 м. Квартира будет сдана без отделки. Установлены стеклопакеты с повышенной тепло- и шумоизоляцией, установлены элементы отопления, входная дверь, заведены все коммуникации. Вы сможете реализовать свои самые смелые планы дизайн-проекта. Дом монолитный, двухподъездный, высотой 10 этажей. Квартира находится во 2-й секции в корпусе 1. В подъезде 1 грузовой лифт. Начало строительства - 4 квартал 2019 года. В настоящее время строительство окончено, дом сдан в 3 квартале 2023 года. Оформление сделки по договору купли-продажи. С лоджией, евро-планировка, для большой семьи, куxня-гостиная, раздельный су, мастер-спальня, вид на приватный двор. ЖК VEREN NEXT шуваловский - жилой комплекс комфорткласса, расположенный в Приморском районе Санкт-Петербурга. Дома с выразительной авторской архитектурой от именитого бюро «Студия 44 . Смело сочетая материалы и формы, архитекторы разработали эффектный и запоминающийся проект, который разительно отличается от представленных в окружении. Отделка фасадов отдаёт дань одновременно и традициям, и трендам. На каждом этаже находится не более 7 квартир.Наши специалисты разработалиазличных типов планировочных решений, каждое из которых продумано с учетом требований эргономики и функциональности, где нет бесполезной площади. Общее для всех вариантов — увеличенные оконные проемы, а во многих комнатах сразу по два окна, что обеспечивает естественное освещение и ощущение простора. На верхних этажах располагаются квартиры с панорамным остеклением. Ещё больше света и панорамных видов — для тех, кто ценит красоту каждого дня Красивые парадные с витражным остеклением созданы по индивидуальному дизайн-проекту. В приватном благоустроенном дворе VEREN NEXT Шуваловский найдется место и для детских игр, и для спортивных тренировок на свежем воздухе, и для спокойного отдыха. Пространство здесь спланировано так, чтобы взрослые и малыши проводили время с комфортом. На территории комплекса предусмотрен собственный детский сад. Этот дом красив снаружи и комфортен изнутри. Правильное благоустройство и зонирование позволят каждому жильцу дома комфортно проводить свой досуг. Доступ на территорию комплекса закрыт, а пропускная система позволяет почувствовать себя дома ещё до того, как вы поднимитесь в квартиру. Здесь есть всё, чтобы сэкономить время: магазины, кафе, разнообразные бытовые услуги, подземный паркинг, колясочные и кладовые. ЖК VEREN NEXT шуваловскийасположен в одной из самых востребованных новоселами локаций города. Здесь чистые широкие улицы, новые дома, развитая инфраструктура, парки и озёра, множество возможностей для отдыха и шопинга. Рядом крупные проспекты, несколько станций метро на разных ветках, рядом КАД и ЗСД, неподалёку— федеральная трасса «Скандинавия . На автомобиле 12 минут до метро и ЗСД, 8 минут до КАД. Аккредитация в банках: ПАО Банк «ВТБ , ПАО «Газпромбанк , «Сбербанк России , ОАО «Альфа-Банк , ОАО АКБ «АК Барс и других.

Читать полностью

    Для того, чтобы купить трехкомнатную квартиру по адресу: м. Пионерская, ул. Парашютная, 79к1, позвоните по телефону +7 (911) 083-01-04. Торопитесь! Объявление №30093457241 о продаже трехкомнатной квартиры опубликовано Сегодня.

    Позвонить Написать
    25 552 940 Р331 600 $ или 280 700
    Агент
    +7 (911) 083-01-04
    Начать чат с агентом
    Похожие предложения
    2-комнатная квартира: Санкт-Петербург, Ипподромный переулок, 1к1 (70 ... - Фото 1
    2-комнатная квартира: Санкт-Петербург, Ипподромный переулок, 1к1 (70 ... - Фото 2
    2-комнатная квартира, общая площадь 70м², жилая 32м², кухня 13м²

    Арт.. Продается уютная 2-комнатная квартира в Приморском районе в шаговой доступности до метро Пионерская.Улучшенная планировка общей площадью 70 кв. м., на 10 м этаже 23 этажного кирпичного дома в отличном состоянии с ремонтом и мебелью. Все что необходимо...
    • 70 м²
    • 2-ком
    • 10/23 эт.
    25 000 000 Р
    Агент
    +7 (931) Показать номер
    Посмотреть контакты
    3-комнатная квартира: Санкт-Петербург, Коломяжский проспект, 11 (96 м) - Фото 1
    3-комнатная квартира: Санкт-Петербург, Коломяжский проспект, 11 (96 м) - Фото 2
    3-комнатная квартира, общая площадь 96м², жилая 51м², кухня 16м²

    РАССРОЧКА ИПОТЕКА ПАРКИНГ В РАССРОЧКУОсобые условия для покупки не в кредит Предлагаю к рассмотрению покупки отличной трехкомнатной квартиры в Приморском районе возле метро Пионерская - Уютная планировка на две стороны - В двух шагах парк, - 5...
    • 96 м²
    • 3-ком
    • 5/19 эт.
    25 540 000 Р
    Агент
    +7 (981) Показать номер
    Посмотреть контакты
    Продам 2-комн. квартиру 75.28 кв.м. - Фото 1
    Продам 2-комн. квартиру 75.28 кв.м. - Фото 2
    Продам 2-комн. квартиру 75.28 кв.м. - Фото 3
    Продам 2-комн. квартиру 75.28 кв.м. - Фото 4
    Продам 2-комн. квартиру 75.28 кв.м. - Фото 5
    Продам 2-комн. квартиру 75.28 кв.м. - Фото 6
    Продам 2-комн. квартиру 75.28 кв.м. - Фото 7
    Продам 2-комн. квартиру 75.28 кв.м. - Фото 8
    Продам 2-комн. квартиру 75.28 кв.м. - Фото 9
    Продам 2-комн. квартиру 75.28 кв.м. - Фото 10
    Продам 2-комн. квартиру 75.28 кв.м. - Фото 11
    Продам 2-комн. квартиру 75.28 кв.м. - Фото 12
    Продам 2-комн. квартиру 75.28 кв.м. - Фото 13
    Продам 2-комн. квартиру 75.28 кв.м. - Фото 14
    Продам 2-комн. квартиру 75.28 кв.м. - Фото 15
    2-комнатная квартира, без ремонта, общая площадь 75.3м², жилая 26.6м², кухня 27м²

    Продается 2-комн. квартира с европланировкой, площадью 75,28 м2, в 13 минутах пешком от метро Новочеркасская в Красногвардейском районе Санкт-Петербурга. Жилая площадь 26,59 м2, кухня 27,02 м2. Квартира располагается в ЖК Magnifika Residence. Жить в Magnifika...
    • 75.3 м²
    • 2-ком
    • 1/14 эт.
    • панельный
    26 000 000 Р
    Агент
    +7 (812) Показать номер
    Посмотреть контакты
    1-к кв. Санкт-Петербург Смоленская ул., 13 (51.1 м) - Фото 1
    1-к кв. Санкт-Петербург Смоленская ул., 13 (51.1 м) - Фото 2
    1-комнатная квартира, общая площадь 51м², кухня 17м²

    Возможна покупка в ипотеку по сниженной ставке 13,99 Просторная двухкомнатная квартира в современном жилом комплексе Галант готова к заселению. Объект расположен на последнем этаже, где всего три квартиры, что обеспечивает повышенный уровень приватности...
    • 51 м²
    • 1-ком
    • 14/14 эт.
    • монолит
    25 000 000 Р
    Агент
    +7 (981) Показать номер
    Посмотреть контакты
    4-к кв. Санкт-Петербург просп. Кима, 13 (88.9 м) - Фото 1
    4-к кв. Санкт-Петербург просп. Кима, 13 (88.9 м) - Фото 2
    4-комнатная квартира, общая площадь 88м², кухня 9м²

    Просторная 4-комнатная квартира на Васильевском острове -Двусторонняя планировка — окна выходят во двор и на улицу.-Большая прихожая с широким коридором — удобно для хранения и зонирования.-Мебель и бытовая техника остаётся — можно заехать и жить без...
    • 88 м²
    • 4-ком
    • 3/5 эт.
    • кирпичный
    27 000 000 Р
    Агент
    +7 (981) Показать номер
    Посмотреть контакты

    Не нашли подходящего объявления?

    Оставьте заявку, и наши риэлторы подберут квартиру в районе Санкт-Петербурга

    (0)