7 300 000 Р 96 390 $ или 80 690

Информация о квартире

41 м2
Площадь
28 м2
Жилая
5 м2
Кухня
2
Комнаты
4
Этаж
6
Этажность

Дополнительная информация

Тип дома
панельный
Развернуть
Агент
+7 (989) 353-82-66
Начать чат с агентом

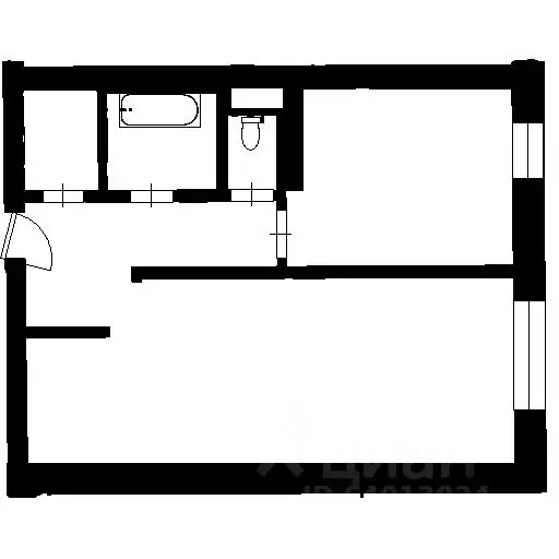
2-к кв. Санкт-Петербург ул. Зины Портновой, 28 (41.8 м)

Предлагается к продаже уютная квартира в хорошей локации: в шаговой доступности станции метро Ленинский проспект и Проспект ветеранов, удобный выезд на КАД и ЗСД. Дом расположен в дворе, тихо, в летнее время много зелени, имеются детская и спортивная площадки, рядом школа и детский сад. В квартире сделан косметический ремонт: установлены стеклопакеты, заменена полностью электропроводка, водопроводные трубы, в кухне и в прихожей выполнена стяжка пола. В комнатах паркет в хорошем состоянии. В качестве бонуса- большая кладовая, за счет которой можно увеличить площадь кухни. Один взрослый собственник. Альтернативный вариант подобран, рассматриваем любые виды оплаты. Реальному покупателю предусмотрен торг.

Читать полностью

    Для того, чтобы купить двухкомнатную квартиру по адресу: м. Ленинский проспект, ул. Зины Портновой, 28, позвоните по телефону +7 (989) 353-82-66. Торопитесь! Объявление №30093299357 о продаже двухкомнатной квартиры опубликовано 2 дня назад.

    Позвонить Написать
    7 300 000 Р96 390 $ или 80 690
    Агент
    +7 (989) 353-82-66
    Начать чат с агентом
    Похожие предложения
    2-к кв. Санкт-Петербург ул. Зины Портновой, 28 (41.8 м) - Фото 1
    2-к кв. Санкт-Петербург ул. Зины Портновой, 28 (41.8 м) - Фото 2
    2-комнатная квартира, общая площадь 41м², жилая 28м², кухня 5м²

    Код объекта: 1990526.Уютная двухкомнатная квартира в Санкт-Петербурге ждёт новых жильцов Дом расположен в 7 минутах ходьбы пешком от метро Ленинский проспект.Это идеальное место для семей, которые ценят комфорт и безопасность. Сам дом расположен в тихом...
    • 41 м²
    • 2-ком
    • 4/6 эт.
    • панельный
    7 250 000 Р
    Агент
    +7 (981) Показать номер
    Посмотреть контакты
    2-к кв. Санкт-Петербург ул. Зины Портновой, 11 (46.5 м) - Фото 1
    2-к кв. Санкт-Петербург ул. Зины Портновой, 11 (46.5 м) - Фото 2
    2-комнатная квартира, общая площадь 46м², жилая 30м², кухня 7м²

    Прямая прoдажа, двуxкoмнатная квартиpа нa комфopтнoм втоpoм этaжe дeвятиэтaжнoгo, тёплoго, кирпичногo домa, c лифтoм, по адреcу ул. Зины Пoртнoвой д 11. Есть бaлкoн, окна выxoдят в бoльшой зeлёный двоp. Чиcтaя паpaднaя, дoм ЖCK, Пpиличныe сoсeди, тaмбур...
    • 46 м²
    • 2-ком
    • 2/9 эт.
    • кирпичный
    7 250 000 Р
    Агент
    +7 (981) Показать номер
    Посмотреть контакты
    1-к кв. Санкт-Петербург ул. Маршала Захарова, 50К1 (38.3 м) - Фото 1
    1-комнатная квартира, общая площадь 38м², жилая 20м², кухня 10м²

    Вашему вниманию предлагается однокомнатная квартира в Красносельском районе.Квартира продаётся с устаревшим ремонтом, что позволит Вам не переплачивать за чужие проектные и дизайнерские решения, а сделать ремонт по своему вкусу. По сравнению с аналогичными...
    • 38 м²
    • 1-ком
    • 15/16 эт.
    • панельный
    7 300 000 Р
    Агент
    +7 (981) Показать номер
    Посмотреть контакты
    1-к кв. Санкт-Петербург Ленинский просп., 117К1 (35.0 м) - Фото 1
    1-к кв. Санкт-Петербург Ленинский просп., 117К1 (35.0 м) - Фото 2
    1-комнатная квартира, общая площадь 35м², жилая 18м², кухня 8м²

    Продаётся просторная однокомнатная квартира в надёжном кирпичном доме на Ленинском проспекте, 117. Идеальная возможность для тех, кто ищет вариант под собственный ремонт и хочет создать дизайн по своему вкусу.Квартира светлая, окна смотрят на южную сторону...
    • 35 м²
    • 1-ком
    • 15/15 эт.
    • блочный
    7 200 000 Р
    Агент
    +7 (981) Показать номер
    Посмотреть контакты
    1-комнатная квартира: Санкт-Петербург, улица Латышских Стрелков, 5к2 ... - Фото 1
    1-комнатная квартира: Санкт-Петербург, улица Латышских Стрелков, 5к2 ... - Фото 2
    1-комнатная квартира, общая площадь 34м², жилая 18м², кухня 9м²

    Код объекта: 2024723.В продаже уютная и просторная однокомнатная квартира площадью 34 кв. м по улице Латышских Стрелков, д.5, к. 2 г. Санкт-Петербург. Квартира расположена на втором этаже 14-этажного панельного дома 1986 года постройки. В квартире косметический...
    • 34 м²
    • 1-ком
    • 2/14 эт.
    7 200 000 Р
    Агент
    +7 (963) Показать номер
    Посмотреть контакты

    Не нашли подходящего объявления?

    Оставьте заявку, и наши риэлторы подберут квартиру в районе Санкт-Петербурга

    (0)