Россия, Санкт-Петербург, ЖК Глоракс Заневский
9 121 620 Р 117 800 $ или 98 640

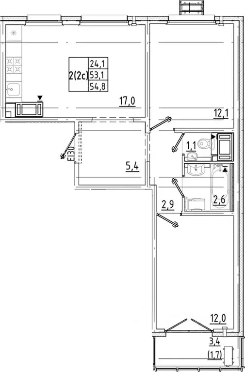
Информация о квартире

29 м2
Площадь
24 м2
Жилая
студия
Комнат
15
Этаж
15
Этажность
Развернуть
Агент
+7 (812) 383-67-94
Начать чат с агентом

Квартира-студия: Санкт-Петербург, ЖК Глоракс Заневский (29.1 м)

Продается апартамент-студия на 15-м этаже в сданном Апарт-комплексе бизнес-класса «GloraX Заневский . Ключи сразу Общая площадь лота составляет 29,77 кв. м, из которых 24,84 кв. м отведено под жилую. Номер апартамента - 1504.Преимущества:- Полная чистовая отделка- Возможность покупки меблировка и техника- Вход по ключ-карте- Прачечная на 1 этаже- Возможность дозаказа отельного сервиса- Программы доходности - Летний бар и променад- Воркаут площадка- Pet-friendlyАпартаменты «GloraX Заневский - проект бизнес-класса с развитой инфраструктурой, удовлетворяющей все потребности самых взыскательных гостей. Располагается в одном из наиболее перспективных, районов Петербурга в 2х минутах от метро Ладожская и в 10 минутах от Невского проспекта.В «GloraX Заневский есть все, что необходимо для комфортной жизни, работы и отдыха. Инфраструктура, покрывающая все потребности и ожидания собственников и арендаторов. В радиусе 150 метров находятся супермаркеты с возможностью доставки продуктов прямо до дверей апартаментов.На 1000 кв. м. общественных пространств расположится уютный лобби-бар,есторан мировой кухни на 80 человек и оборудованные коворкинги.В апартаментах «GloraX Заневский выполнена современная отделка с использованием высококачественных экологичных материалов. В проекте предусмотрен подземный отапливаемый паркинг на 100 мест, куда можно спуститься на лифте прямо от дверей апартаментов.Узнайте подробности в Отделе продаж.

Читать полностью

    Для того, чтобы купить студию по адресу: м. Ладожская, ЖК Глоракс Заневский, позвоните по телефону +7 (812) 383-67-94. Торопитесь! Объявление №30093274505 о продаже студии опубликовано 29 января 2026.

    Позвонить Написать
    9 121 620 Р117 800 $ или 98 640
    Агент
    +7 (812) 383-67-94
    Начать чат с агентом
    Похожие предложения
    3-к кв. Санкт-Петербург просп. Наставников, 13 (56.9 м) - Фото 1
    3-к кв. Санкт-Петербург просп. Наставников, 13 (56.9 м) - Фото 2
    3-комнатная квартира, общая площадь 56м², жилая 33м², кухня 5м²

    Номер объявления: 21185 - назовите его оператору. Светлая двусторонняя квартира с двумя застекленными лоджиями и панорамным видом на город. Все комнаты изолированы.В квартире установлены стеклопакеты, качественная входная дверь, новые радиаторы, заменены...
    • 56 м²
    • 3-ком
    • 9/9 эт.
    • панельный
    9 200 000 Р
    Агент
    +7 (981) Показать номер
    Посмотреть контакты
    2-к кв. Санкт-Петербург ул. Передовиков, 37 (51.4 м) - Фото 1
    2-к кв. Санкт-Петербург ул. Передовиков, 37 (51.4 м) - Фото 2
    2-комнатная квартира, общая площадь 51м², жилая 30м², кухня 8м²

    Продается 2-комнатная квартира в современном жилом комплексе — готова к сделке Уютная, светлая квартира с качественным ремонтом, выполненным профессионалами из дорогих материалов.Полностью шумоизоляция — тишина и комфорт. Рациональная планировка, без...
    • 51 м²
    • 2-ком
    • 11/14 эт.
    • панельный
    9 000 000 Р
    Агент
    +7 (981) Показать номер
    Посмотреть контакты
    2-к кв. Санкт-Петербург дор. Муринская, 25к1 (54.8 м) - Фото 1
    2-к кв. Санкт-Петербург дор. Муринская, 25к1 (54.8 м) - Фото 2
    2-комнатная квартира, общая площадь 54м², кухня 17м²

    Уютная квартира в развитом районе города Предлагаем вашему вниманию светлую квартиру с продуманной планировкой. Основные характеристики:• Чистый подъезд с грузопассажирским лифтом• Развитая инфраструктура в пешей доступности В квартире:• Свежий ремонт...
    • 54 м²
    • 2-ком
    • 9/18 эт.
    • панельный
    9 200 000 Р
    Агент
    +7 (981) Показать номер
    Посмотреть контакты
    1-к кв. Санкт-Петербург ул. Кораблестроителей, 29К1 (36.0 м) - Фото 1
    1-к кв. Санкт-Петербург ул. Кораблестроителей, 29К1 (36.0 м) - Фото 2
    1-комнатная квартира, общая площадь 36м², жилая 18м², кухня 7м²

    Арт.Предлагается уютная однокомнатная квартира площадью 36 кв. м на 8ом этаже по адресу: ул. Кораблестроителей, д. 29 корп 1, в пешей доступности от м. Приморская.Квартира светлая, уютная, аккуратная, окна выходят на солнечную сторону. Жилая комната изолирована...
    • 36 м²
    • 1-ком
    • 8/9 эт.
    • панельный
    9 000 000 Р
    Агент
    +7 (911) Показать номер
    Посмотреть контакты
    1-комнатная квартира: Санкт-Петербург, улица Кораблестроителей, 29к1 ... - Фото 1
    1-комнатная квартира: Санкт-Петербург, улица Кораблестроителей, 29к1 ... - Фото 2
    1-комнатная квартира, общая площадь 36м², жилая 18м², кухня 7м²

    Арт.Предлагается уютная однокомнатная квартира площадью 36 кв. м на 8ом этаже по адресу: ул. Кораблестроителей, д. 29 корп 1, в пешей доступности от м. Приморская. Квартира светлая, уютная, аккуратная, окна выходят на солнечную сторону. Жилая комната...
    • 36 м²
    • 1-ком
    • 8/9 эт.
    9 000 000 Р
    Агент
    +7 (966) Показать номер
    Посмотреть контакты

    Не нашли подходящего объявления?

    Оставьте заявку, и наши риэлторы подберут квартиру в районе Санкт-Петербурга

    (0)