7 600 000 Р 99 970 $ или 83 540

Информация о квартире

41 м2
Площадь
29 м2
Жилая
5 м2
Кухня
3
Комнаты
3
Этаж
5
Этажность

Дополнительная информация

Тип дома
панельный
Развернуть
Агент
+7 (981) 980-29-41
Начать чат с агентом

3-к кв. Санкт-Петербург просп. Ветеранов, 67К2 (41.9 м)

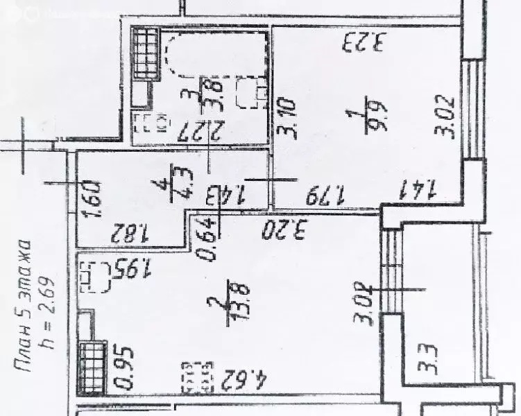
ID: 1915903Продаётся трёхкомнатная квартира, ближайшая станция метро — Ветеранов проспект , что обеспечивает удобную пешую доступность- 10 минут .Общая площадь квартиры составляет 41,9 квадратных метра. Квартира расположена на третьем этаже пятиэтажного панельного дома, построенного в 1967 году. Планировка включает совмещённый санузел, отделанный кафелем. Окна выходят две стороны во двор, что обеспечивает тишину и уют внутри квартиры.В квартире выполнен евро ремонт. Установлены стеклопакеты, что улучшает шумоизоляцию и теплоизоляцию жилого пространства. Кухня оборудована газовой варочной панелью, вытяжкой, духовым шкафом и микроволновой печью. По договорённости с продавцом в квартире может остаться холодильник и стиральная машина. Мебель, установленная в комнатах и на кухне, также остаётся. Есть большая вместительная кладовка. Дом расположен внутри двора, что снижает уровень шума от транспортных потоков. В непосредственной близости находятся школа и другие необходимые инфраструктурные объекты. Перед домом организована парковка для автомобилей жителей и гостей.Прямая продажа. Один собственник. Полная стоимость в договоре. Возможна покупка с использованием ипотечных программ.

Читать полностью

    Для того, чтобы купить трехкомнатную квартиру по адресу: м. Проспект Ветеранов, Ветеранов пр-кт., 67К2, позвоните по телефону +7 (981) 980-29-41. Торопитесь! Объявление №30093233511 о продаже трехкомнатной квартиры опубликовано 28 января 2026.

    Позвонить Написать
    7 600 000 Р99 970 $ или 83 540
    Агент
    +7 (981) 980-29-41
    Начать чат с агентом
    Похожие предложения
    1-комнатная квартира: Санкт-Петербург, улица Генерала Кравченко, 7к1 ... - Фото 1
    1-комнатная квартира: Санкт-Петербург, улица Генерала Кравченко, 7к1 ... - Фото 2
    1-комнатная квартира, общая площадь 31м², жилая 9м², кухня 13м²

    Арт.. Встречайте квартиру своей мечты: ЕВРО-двушка в европейском квартале Счастливых людей.Продуманная планировка и грамотное обустройство квартиры обеспечивает максимальное удобство живущим здесь: широкая прихожая с зеркальным шкафом, комодом, вешалкой...
    • 31 м²
    • 1-ком
    • 5/8 эт.
    7 640 000 Р
    Агент
    +7 (981) Показать номер
    Посмотреть контакты
    2-к кв. Санкт-Петербург Горелово тер., ул. Коммунаров, 118 (57.2 м) - Фото 1
    2-к кв. Санкт-Петербург Горелово тер., ул. Коммунаров, 118 (57.2 м) - Фото 2
    2-комнатная квартира, общая площадь 57м², жилая 30м², кухня 8м²

    Продается 2-комнатная квартира 57.2 м в отличном состоянии. Вся мебель и техника остаются О квартире:Светлая и достаточно просторная квартира с отличной планировкой и множеством мест для хранения. Большая гардеробная, изолированная кухня 8.2 м — идеально...
    • 57 м²
    • 2-ком
    • 4/10 эт.
    7 590 000 Р
    Агент
    +7 (981) Показать номер
    Посмотреть контакты
    1-к кв. Санкт-Петербург Петергофское ш., 72к4 (32.0 м) - Фото 1
    1-к кв. Санкт-Петербург Петергофское ш., 72к4 (32.0 м) - Фото 2
    1-комнатная квартира, общая площадь 32м², жилая 16м², кухня 8м²

    Арт.Продается 1 к квартира в ЖК комфорт-класса Английская миля , построенная в 2017 году. Преимущества квартиры: - Обременений нет. Один собственник.Материнский капитал не использовался. В квартире произведен качественным дизайнерский ремонт, остается...
    • 32 м²
    • 1-ком
    • 8/8 эт.
    • монолит
    7 580 000 Р
    Агент
    +7 (923) Показать номер
    Посмотреть контакты
    1-к кв. Санкт-Петербург просп. Народного ополчения, 141 (29.0 м) - Фото 1
    1-к кв. Санкт-Петербург просп. Народного ополчения, 141 (29.0 м) - Фото 2
    1-комнатная квартира, общая площадь 29м², жилая 14м², кухня 8м²

    Код объекта: 2005138.Идеальная квартира для жизни и инвестиций Проспект Народного Ополчения, 141 — это не просто адрес, это возможность стать владельцем квартиры в одном из самых удобных районов Санкт-Петербурга.Расположение Квартира находится в непосредственной...
    • 29 м²
    • 1-ком
    • 1/1 эт.
    • кирпичный
    7 500 000 Р
    Агент
    +7 (911) Показать номер
    Посмотреть контакты
    2-к кв. Санкт-Петербург ул. Пограничника Гарькавого, 22К2 (44.0 м) - Фото 1
    2-к кв. Санкт-Петербург ул. Пограничника Гарькавого, 22К2 (44.0 м) - Фото 2
    2-комнатная квартира, общая площадь 44м², жилая 28м², кухня 5м²

    Предлагаем уютную 2-х к.кв. в районе малоэтажной застройки в окружении нескольких парков, таких как Полежаевский , Сосновая поляна и другие. Квартира расположена на комфортном 4 (последнем) этаже, отсутствие соседей сверху дает свои плюсы. Теплый...
    • 44 м²
    • 2-ком
    • 4/4 эт.
    • монолит
    7 500 000 Р
    Агент
    +7 (911) Показать номер
    Посмотреть контакты

    Не нашли подходящего объявления?

    Оставьте заявку, и наши риэлторы подберут квартиру в районе Санкт-Петербурга

    (0)