19 200 000 Р 252 900 $ или 215 600

Информация о квартире

64 м2
Площадь
28 м2
Жилая
19 м2
Кухня
2
Комнаты
19
Этаж
20
Этажность
Развернуть
Агент
+7 (981) 913-79-29
Начать чат с агентом

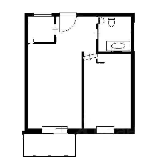
2-к кв. Санкт-Петербург ул. Архивная, 4 (64.44 м)

Продается стильная большая двухкомнатная квартира в современном жилом комплексе на ул. Архивная дом 4, Санкт-Петербург. Квартира расположена на 19 этаже 20-этажного монолитно-кирпичного дома, построенного в 2025 году. Общая площадь составляет 64.44 кв. м, жилая площадь — 28.04 кв. м, а кухня впечатляет своей просторностью — 19.02 кв. м. Высота потолков 2.77 метра создает ощущение простора и комфорта.В квартире выполнен евроремонт, что позволяет сразу заехать и наслаждаться уютом. Просторная кухня оборудована современной техникой, а из окон открывается вид во двор, поэтому, а значит, здесь всегда тихо и спокойно. Планировка включает две отдельные комнаты(одна с большой гардеробной и окном) и две ванные комнаты, что удобно для семьи. Также есть лоджия, где можно устроить небольшую зону отдыха.Дом оснащен подземной парковкой, что решает вопрос с местом для вашего автомобиля. В доме установлены как пассажирский, так и грузовой лифты, поэтому можно легко подниматься на любой этаж. Жилой комплекс поддерживается в отличном состоянии, так как он новый, и все системы работают безупречно.Рядом с домом находятся детские сады и магазины, что делает проживание здесь особенно удобным для семей с детьми. До метро Проспект Большевиков можно добраться на автомобиле всего за 6 минут, что обеспечивает хорошую транспортную доступность.Квартира продается по договору купли-продажи, возможна ипотека. Все документы подготовлены, поэтому можно быстро оформить сделку. Без обременений, один собственник. Полная цена в договореПриглашаем вас на просмотр этой замечательной квартиры Записывайтесь заранее, чтобы оценить все преимущества этого предложения.

Читать полностью

    Для того, чтобы купить двухкомнатную квартиру по адресу: м. Улица Дыбенко, ул. Архивная, 4, позвоните по телефону +7 (981) 913-79-29. Торопитесь! Объявление №30093133639 о продаже двухкомнатной квартиры опубликовано Вчера.

    Позвонить Написать
    19 200 000 Р252 900 $ или 215 600
    Агент
    +7 (981) 913-79-29
    Начать чат с агентом
    Похожие предложения
    1-к кв. Санкт-Петербург ул. Дыбенко, 8к2 (45.84 м) - Фото 1
    1-к кв. Санкт-Петербург ул. Дыбенко, 8к2 (45.84 м) - Фото 2
    1-комнатная квартира, общая площадь 45м², жилая 14м², кухня 19м²

    Код объекта: 2004297.Продаётся уютная и светлая 1-комнатная квартираОбщая площадь — 45,84 м5 этаж из 24, монолитный дом.О квартире— Высокие потолки 2,9 м — ощущение простора— Изолированная спальня с кондиционером— Просторная кухня-гостиная — удобно для...
    • 45 м²
    • 1-ком
    • 5/24 эт.
    18 250 000 Р
    Агент
    +7 (911) Показать номер
    Посмотреть контакты
    1-комнатная квартира: Санкт-Петербург, улица Дыбенко, 8к2 (45.84 м) - Фото 1
    1-комнатная квартира: Санкт-Петербург, улица Дыбенко, 8к2 (45.84 м) - Фото 2
    1-комнатная квартира, общая площадь 45м², жилая 14м², кухня 19м²

    Код объекта: 2004297.Продаётся уютная и светлая 1-комнатная квартираОбщая площадь — 45,84 м5 этаж из 24, монолитный дом.О квартире— Высокие потолки 2,9 м — ощущение простора— Изолированная спальня с кондиционером— Просторная кухня-гостиная — удобно для...
    • 45 м²
    • 1-ком
    • 5/24 эт.
    18 250 000 Р
    Агент
    +7 (963) Показать номер
    Посмотреть контакты
    2-комнатная квартира: Санкт-Петербург, Дальневосточный проспект, 19к1 ... - Фото 1
    2-комнатная квартира: Санкт-Петербург, Дальневосточный проспект, 19к1 ... - Фото 2
    2-комнатная квартира, общая площадь 65м², жилая 26м², кухня 17м²

    Срочно продаётся 3Е-квартира с двумя спальнями общей площадью 65.92 м2. в Невском районе Санкт-Петербурга. Квартира в доме комфорт-класса в районе с развитой инфраструктурой. Отличный вариант для тех, кто хочет жить в спокойном квартале в окружении природы.О...
    • 65 м²
    • 2-ком
    • 13/15 эт.
    19 930 000 Р
    Агент
    +7 (963) Показать номер
    Посмотреть контакты
    2-к кв. Санкт-Петербург ул. Дыбенко, 2 (63.2 м) - Фото 1
    2-к кв. Санкт-Петербург ул. Дыбенко, 2 (63.2 м) - Фото 2
    2-комнатная квартира, общая площадь 63м², жилая 32м², кухня 14м²

    Арт.Квартира с видом на Неву Ключевые параметрыОбщая площадь (с лоджиями): 63, м2 (без учета лоджий)Жилая площадь: 32,3 м2Кухня -гостиная с техникой: 14,8 м2Две просторные лоджии (2,8 м2 + 2,8 м2)Особенности интерьераДизайнерский ремонтКерамогранит (кухня/коридор),...
    • 63 м²
    • 2-ком
    • 2/18 эт.
    19 000 000 Р
    Агент
    +7 (911) Показать номер
    Посмотреть контакты
    4-к кв. Санкт-Петербург ул. Дыбенко, 42 (99.2 м) - Фото 1
    4-к кв. Санкт-Петербург ул. Дыбенко, 42 (99.2 м) - Фото 2
    4-комнатная квартира, общая площадь 99м², жилая 64м², кухня 11м²

    Код объекта: 1962285.В продаже прекрасная, просторная квартира в кирпичном теплом доме по адресу: ул. Дыбенко, д.42Имея эргономичную планировку, уникальную для этого дома, квартира, как пластилин, подстроится под любого заботливого владельца- подойдет...
    • 99 м²
    • 4-ком
    • 7/13 эт.
    • кирпичный
    19 800 000 Р
    Агент
    +7 (911) Показать номер
    Посмотреть контакты

    Не нашли подходящего объявления?

    Оставьте заявку, и наши риэлторы подберут квартиру в районе Санкт-Петербурга

    (0)